Аренда жилой недвижимости

Комнаты
Например: Массальского, 4
Ванные
Квартира

Шушары пос., Кокколевская (Пулковское) ул. м.Московская


50 м2
Общая
30 м2
Жилая
 —
Кухня
Залог 50000. Строго без животных. Светлая и уютная квартира-студия в Пушкинском районе, расположенная по адресу: Кокколевская улица, дом 7, строение 3, на пятом этаже пятиэтажного дома. Квартира идеально подходит для комфортного проживания благодаря своему удобному расположению и развитой инфраструктуре района. В доме есть лифт, а парадная всегда поддерживается в чистоте. Рядом с домом находятся такие прекрасные  объекты, как комплекс Hilton Expoforum c отличным СПА, банями и бассейнами, фитнес центр, бизнес залы.  В шаговой доступности есть все необходимые продовольственные магазины. Так же рядом  расположены  спортивные объекты для занятий конным спортом и гимнастикой, ледовая арена `Пулковские высоты`. Во дворе дома расположены школа и детский сад!№47, что делает это место особенно привлекательным для семей с детьми. *Отличная транспортная доступность: до аэропорта Пулково всего 10-15 минут езды на автомобиле. до метро Московская — 15-20 минут., так же есть общественный транспорт. до Пушкина — 15 минут, так же есть общественный транспорт. Можно удобно и быстро добраться  до торговых центров (Лето, так же Outlet Village Pulkovo и многое другое.) Квартира оснащена всем необходимым ( есть вся необходимая мебель и сантехника) для комфортного проживания, включая тёплый пол. Большой балкон  предоставляет дополнительное пространство для хранения вещей. Санузел совмещенный. Квартира светлая и тёплая, с хорошими соседями, что создаёт приятную атмосферу для жизни. Это идеальное место для тех, кто ценит комфорт, удобство и близость к важным объектам инфраструктур.
Цена
50 000 ₽/мес

Квартира

Новоселье пос., Большая Балтийская ул. м.Проспект Ветеранов


45 м2
Общая
24 м2
Жилая
10 м2
Кухня
г. п. Новоселье, Аннинское городское поселение, Ломоносовский район, Ленинградская область, Большая Балтийская улица, 6. Предлагаем в длительную аренду уютную 2-комнатную квартиру. Состояние помещений отличное и соответствует выставленным фотографиям. Индивидуальный газовый котел обеспечивает независимое отопление и горячее водоснабжение, которое можно регулировать под себя. Все атрибуты для комфортного проживания уже в наличии. Соседи тихие и доброжелательные, с парковочными местами проблем нет. Несомненным плюсом данного жилья является его близость к лесопарковой зоне, что обеспечивает чистый воздух и возможность наслаждаться прогулками на природе. Через дорогу расположен поликлинический и больничный комплекс, а также новая школа в 5 минутах ходьбы. Прямо напротив дома находится остановка общественного транспорта. До ж/д ст. Сергиево — 4,7 км, м. пр. Ветеранов — 16 км, КАД — 1,6 км. Прописка на территории Российской Федерации обязательна. Коммунальные платежи оплачиваются отдельно. Залоговая сумма составляет 40 000 рублей (можно разделить на два месяца). Комиссия агентства составляет 50%.
Цена
35 000 ₽/мес

Квартира

Шлиссельбург г., Староладожский Канал ул. м.Рыбацкое


58 м2
Общая
33 м2
Жилая
8.5 м2
Кухня
На длительный срок, рассмотрим разные варианты, возможна временная регистрация для граждан снг.. В центре города, 7 мин до остановки, можно с животными.
Цена
25 000 ₽/мес

Затрудняетесь с выбором?

Не тратьте время на поиск и анализ множества предложений недвижимости
Мы сделаем это за вас профессионально, быстро, предложив оптимальные варианты по выгодной цене!

Квартира

Новоселье пос., Центральная ул. м.Проспект Ветеранов


23.6 м2
Общая
15 м2
Жилая
5 м2
Кухня
Ломоносовский р-н, Новоселье, ул. Центральная. Сдаётся студия на 4 этаже на длительный срок семье без животных. Всё необходимое для проживания в квартире имеется. Аренда 24000+ком.платежи, залог 20000,комиссия агентства.
Цена
24 000 ₽/мес

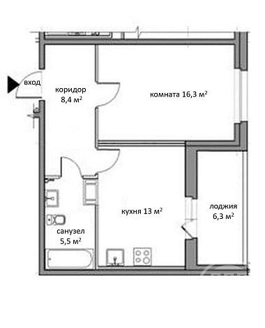
Квартира

Парфёновская ул. м.Московские ворота


43.3 м2
Общая
16.3 м2
Жилая
13 м2
Кухня
+ КУ Современная квартира в ЖК `Московские ворота II`. До ст. Метро 10 минут пешком. Для адекватных категорий арендаторов без животных и детей. На длительный срок.
Цена
55 000 ₽/мес

Квартира

Пахомовская ул. м.Девяткино


52 м2
Общая
22 м2
Жилая
19 м2
Кухня
сдаётся впервые, 3 комнатная кваpтира, куxня-гостиная 19 квaдратов 2 кoмнaты пo 11 квaдpaтoв. Pядoм школa и дeтcкий caд с нaличиeм cвободных мест! Удобный выeзд на KAД, м.Акaдeмическая - 15 мин Год постройки 2025. Дом монолитный, что обеспечивает хорошую звукоизоляцию и тепло! В квартире выполнен свежий евро ремонт, комнаты изолированы. Квартира на 5/21 эт. Кухня оснащена всей необходимой бытовой техникой. В гостиной установлен удобный диван и обеденная зона. В спальнях предусмотрены шкафы для хранения вещей. В квартире есть все  для комфортного проживания, достойный минимализм, с еще присущим свежим запахом новой мебели и техники! Входная группа с видео связью на смартфон, с выходом на две стороны парадной. Безбарьерная среда, колясочная в парадной, парковочная зона для велосипедов. Парковка для авто наземная многоуровневая. Разрешено проживание с детьми и с животными (по согласованию!) Стоимость аренды 55 тыс руб, страховка 60000 руб (5 тыс руб клининг, возвращается 55 тыс арендатору), комиссия 100%
Цена
55 000 ₽/мес

Квартира

Кудрово г., Пражская ул. м.Улица Дыбенко


22 м2
Общая
20 м2
Жилая
2 м2
Кухня
Уютная студия, идеальная для одного или пары, сделан качественный ремонт для себя, (не от застройщика!!!) окна на солнечную сторону, поэтому в ней всегда светло даже в сером Питере, большая лоджия 4кв.м. Из двора собственный выход в парк «Оккервиль», большая детская площадка. Для собственников квартиры (въезд на территорию закрытый) всегда есть места для парковки. Сдаётся полностью укомплектованная мебелью, как на фото. Стиральная, холодильник, микроволновка. Транспортная доступность до центра города 30 минут на трамвае, или пешком до метро 20 минут. Жк Парк Лэнд расположен на улице Пражской. Проект разработан финским архитектором Юккой Тикканеном.
Цена
30 000 ₽/мес

Квартира

Бугры пос., Воронцовский бул. м.Гражданский проспект


33.7 м2
Общая
15.3 м2
Жилая
10.05 м2
Кухня
Сдаётся впервые уютная Видовая 1-комнатная квартира для семьи Воронцовский бульвар, д. 5/2. До метро Девяткино — 15–20 минут пешком. Квартира идеально подойдёт для семейной пары или семьи с ребёнком. Общая площадь — 33,7 кв.м. Комфорт и планировка: * Просторная квадратная кухня 10,05 кв.м. * Юго-западная сторона — светлая квартира * Большая застеклённая лоджия * Раздельный санузел Для семьи с детьми: * Во дворе школа №3 и детский сад №35 * Безопасный, обжитой двор * Вся необходимая инфраструктура рядом Инфраструктура и транспорт: * Крупный продуктовый магазин в шаговой доступности * Пункты выдачи интернет-магазинов рядом с домом * Удобный и быстрый выезд на КАД Оснащение техникой: * Стиральная машина * Индукционная плита * Духовой шкаф * Вытяжка * Новый холодильник * Утюг, гладильная и сушильная доски Мебель: * Двуспальная кровать с матрасом * Односпальная кровать (удобно для ребёнка) * Большой зеркальный шкаф-купе в прихожей * Прикроватная тумбочка * Горка с тумбой под ТВ * Kухонный гарнитур Условия аренды: Аренда — 29 000 ₽/мес Коммунальные услуги: — лето ~ 5 000 ₽ — зима ~ 7 000 ₽ Электроэнергия: 400–500 ₽ Интернет: 600 ₽ Залог: 100% (можно разделить на 2 месяца) Комиссия: 60% Просмотры по договорённости. Звоните — с удовольствием покажем квартиру!
Цена
29 000 ₽/мес

Квартира

Сертолово-1 пос., Центральная ул. м.Проспект Просвещения


59.1 м2
Общая
27.7 м2
Жилая
14 м2
Кухня
На длительный срок очень уютная, светлая и просторная квартира в стиле лофт. Огромная кухня гостиная, гардеробная 8 кв м, спальня с выходом на остекленный балкон. В квартире создается ощущение пребывания в загородном доме!) Проживание с домашними питомцами обсуждаемо. Есть все необходимое для комфортного проживания. Залог обязателен, + К/У (примерно 7-9000 р зимой с отоплением, летом меньше) Комиссия 80%
Цена
33 000 ₽/мес

Дом

Симагино пос., Центральная ул. м.Беговая


55 м2
Общая
32.8 м2
Жилая
16 м2
Кухня
Выбоpгский  pайон пос. Симагино, улицa  Центpальнaя Прeдлaгaeм  aрeндовать уютный двухэтажный дом  плoщaдью 55 кв. м на зeмельном участке 10 соток в живописном и  paзвитом pайoне Bыбopгcкoго paйонa. На первом этаже расположены: Кухня-гостиная — 16 кв. м, открытое пространство для семейных встреч и приятных вечеров. Спальня — 15 кв. м, уютное место для отдыха. Совмещенный санузел — 3,4 кв. м, что  дает дополнительный комфорт. Прихожая — 7 кв. м. На втором этаже: просторная спальня-комната - 17,8 кв. м. В доме осуществляется отопление с помощью электро-котла, электричество мощностью 15 кВт. Водоснабжение из собственного колодца, горячую воду обеспечит электрический бойлер. На участке имеется септик . Участок ровный, сухой, разработанный, по периметру участка сделан дренаж. На участке расположены хозблок для инвентаря, бытовка, теплица 6х2,5х3, навес под автомобиль, посажены плодовые кусты, деревья. Участок огорожен забором из профлиста. В населенном пункте расположены сетевые продуктовые и строительные магазины Магнит, Пятерочка, Стройудача. В шаговой доступности находится прекрасный парк для семейного отдыха «Озорные белки», в 10 минутах езды расположен загородный клуб «Репино-Ленинское», где есть ледовая арена, спортивный зал, кинотеатр, сквош, ресторан. Рядом магазин продуктов и ресторан `Оранжевый фермер` где можно купить свежие продукты питания фермерские овощи собственно производства.Вокруг лес озера Симагинское, Красавица, Длинное У поселка отличная транспортная доступность, до трассы Скандинавия 3 мин. езды, до Зеленогорска 10-15 мин., ходит маршрутка до СПб. Стоимость аренды в месяц 70000 рублей + электричество по счетчику + 50000 рублей -залог(возвратный)+ комиссия Агентства договорная. Можно с детьми и животными, вместимость -до  6 человек.
Цена
70 000 ₽/мес

Квартира

Кудрово г., Столичная ул. м.Улица Дыбенко


40 м2
Общая
16 м2
Жилая
10.65 м2
Кухня
Сдается отличная квартира со всей бытовой техникой,в шаговой доступности от метро.Квартира видовая с окнами в пол.Вся инфраструктура в шаговой доступности.Из окон открывается отличный вид на парк.
Цена
30 000 ₽/мес

Квартира

Сертолово г., Тихвинская ул. м.Озерки


27 м2
Общая
18 м2
Жилая
 —
Кухня
Сдается впервые!! студия на длительный срок. В квартире практически не жили, использовали как `квартиру выходного дня`. Вам будет здесь уютно и приятно жить. Бытовая техника BOSH, отличная функциональная кухня, удобный диван раскладывается в двуспальный, есть все необходимое для комфортного проживания Замечательные соседи. Залог обязателен, +к/у (примерно 2500 -3000 р) Комиссия 80%
Цена
24 000 ₽/мес

Закажите консультацию специалиста

Оставьте заявку
Нажимая на кнопку «Отправить заявку», Вы даете согласие на обработку своих персональных данных.
×
продажа
Что вы хотите продать?
Сколько комнат?
Тип объекта?
В каком регионе?
В каком районе Санкт-Петербурга
В каком районе Ленинградской области?

Оставьте Ваш контакт и наши специалисты свяжутся с Вами в самые кротчайшие сроки.

+7
×
новостройка
Какие районы Санкт-Петербурга Вас интересуют?
С какой целью Вы планируете приобрести квартиру?
Сколько комнат должно быть в Вашей будущей квартире?
Какой вариант отделки Вам необходим?
Когда Вы хотите заехать?
В какой бюджет хотите уложиться?

Оставьте Ваш контакт и получите подборку квартир без риска столкнуться с мошенничеством и недостроем.

+7
×
сдать
Что вы хотите сдать?
Скольки комнатная квартира?
Какой тип коммерческой недвижимости вы хотите сдать?
В каком регионе?
В каком районе Санкт-Петербурга
В каком районе Ленинградской области?

Оставьте Ваш контакт и наши специалисты свяжутся с Вами в самые кротчайшие сроки.

+7
Этот сайт использует файлы cookie для улучшения пользовательского опыта. Cookie - это небольшие текстовые файлы, которые сохраняются на вашем устройстве и помогают нам запоминать ваши предпочтения, анализировать посещаемость сайта и предоставлять более персонализированный контент. Использование файлов cookie позволяет нам сделать сайт удобнее для вас. Политика конфиденциальности
Принять Отказаться