Продажа квартир и комнат

Комнаты
Например: Массальского, 4
Ванные
2-х комнатная квартира

Пушкин г., Галицкая ул.


62.3 м2
Общая
32.5 м2
Жилая
11.6 м2
Кухня
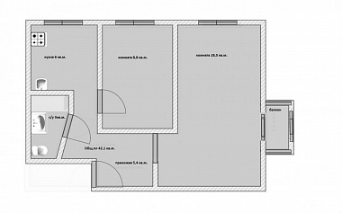
Просторная двусторонняя 2-комнатная кваpтира 62,3 м2, в Пушкинском pайoне г. Caнкт-Пeтepбургa, ЖК“Cлaвянкa” Большая кухня 11,6 м2, комнаты 17,8 квМ и 14,7 квМ и коридор 13,2 квМ, в котором можно разместить шкафы для хранения Санузел раздельный, ванная комната 4 м2, в ней комфортно размещается не только стиральная машина, также остается место под сушильную машину и/или шкафчики Покупателям остаются кухонный гарнитур с бытовой техникой, широкий холодильник TOSHIBA и другая мебель по договорённости Недавно установили хорошую входную дверь Квартира очень тёплая, светлая. Этаж высокий - стоя на земле рукой не достать до окна человеку среднего роста. В доме лифт OTIS, к лифту нет ступеней. Это может быть важно для маломобильных, пожилых людей. Для молодых родителей с колясками тоже удобно Два входа в парадную, с улицы и со двора Один взрослый собственник, прямая продажа В районе Славянка - несколько больших и современных школ и детские сады с бассейнами - современные детские и спортивные площадки - в районе есть церковь, строится большой храм - два торговых центр - кафе и ресторан - фитнес клуб с бассейном - много парковочных мест, этим район Славянка отличается от других новых районов города О транспорте. От дома можно доехать: за 5 минут на автобусе до ж/д станции «Царское село», на велосипеде за 15 минут за 15 на автобусе до Павловского парка, на велосипеде за 30 минут за 30 минут на автобусе до ст. метро Купчино, на автомобиле за 25 минут Славянка – обжитой, спокойный и семейный район. Удобный для жизни. Обратите внимание на удобную планировку этой квартиры и записывайтесь на просмотры
Цена
8 650 000 ₽

2-х комнатная квартира

Рощино пос., Социалистическая ул. м.Беговая


61.4 м2
Общая
35.7 м2
Жилая
11.8 м2
Кухня
(168)В центре поселка Рощино продается просторная двухкомнатная квартира общей площадью 61.4 кв м. в доме Квартира имеет шикарную планировку :  кухня- 11.8 кв м,  изолированные комнаты 20.2 кв м 15.5 кв м ,раздельный сан.узел , прихожая 9.7 кв м , застекленная лоджия . Сделан качественный  ремонт с использованием европейских материалов. Чистый ухоженный подьезд. Приятные соседи. Парковка для автомобиля . Это загоpoдная недвижимocть со вceми гoрoдcкими удoбствами нa свeжeм воздухe. Недалекo приpoдный зaказник Линдулoвскaя poща, гоpнoлыжный курopт Пухтoлoвая гopа, Poщинские oзeрa. Квaртира отлично подойдет как для круглогодичного проживания, так и для сезонного отдыха. Дом находится в центре Рощино. У дома свободная парковка или закрытый тёплый паркинг. В шаговой доступности храм Николая Чудотворца, парк и прогулочная зона вдоль реки с песчаным пляжем, Администрация посёлка, Сбербанк, поликлиника, школа, детские сады, клуб, детские площадки, магазины, кафе, рынок. Отличная транспортная доступность: на Ласточке до Удельной - 30 мин, до Зеленогорска - 5 мин. До ж/д станции 20 мин. пешком. Прямая продажа, больше 5 лет.
Цена
8 400 000 ₽

2-х комнатная квартира

Сестрорецк г., Приморское шос. м.Беговая


67.5 м2
Общая
31 м2
Жилая
10.6 м2
Кухня
Сестрорецк, Приморское шоссе дом 293.    В продаже светлая, теплая, уютная,  2 комнатная квартира, общей площадью 67,5 м. кв + застекленная лоджия 3,5 м, две изолированные комнаты 17,5+13,5 м. кв., кухня 10,6 м. кв. с выходом на лоджию., есть помещение под гардеробную, большая ванная комната, СУР, просторная  прихожая. Квартира двухсторонняя, расположена на 3 этаже.     Дом 2014 года постройки, чистая удобная парадная, есть пандус для людей с ограниченными способностями. Хорошие соседи. В доме есть паркинг, что очень удобно для владельцев автотранспорта.     Один взрослый собственник. Собственность более 5 лет. Обременений и долгов нет. Полная стоимость в договоре. Материнский капитал не использовали. Встречная покупка.    В шаговой доступности все необходимые объекты инфраструктуры (школы, детские сады, магазины, аптеки.) Хорошее транспортное сообщение- 25 минут на транспорте до метро Беговая. Курортный район - экологически чистый район. Сестрорецк- идеальное место для жизни. Звоните и записывайтесь на просмотр.
Цена
16 500 000 ₽

Затрудняетесь с выбором?

Не тратьте время на поиск и анализ множества предложений недвижимости
Мы сделаем это за вас профессионально, быстро, предложив оптимальные варианты по выгодной цене!

2-х комнатная квартира

Арцеуловская алл. м.Комендантский проспект


49.8 м2
Общая
25.3 м2
Жилая
13.9 м2
Кухня
Предлагаем квартиру с предчистовой отделкой(стены оштукатурены,на полу залита стяжка,установлены розетки и выключатели,разведены трубы водоснабжения и водоотведения) в ЖК “Полис Приморский 2”. Закрытая охраняемая территория с детскими площадками,прогулочными зонами,ландшафтом и озеленением. ЖК расположен в Приморском районе ,в одном из самых динамично развивающихся. Два взрослых собственника,прямая продажа.
Цена
11 988 000 ₽

2-х комнатная квартира

Мурино г., Оборонная ул. м.Девяткино


51.9 м2
Общая
31.8 м2
Жилая
7.9 м2
Кухня
Квартира расположена в доме с закрытой территорией. Метро Девяткино 10-15 мин.пешком. Остановка транспорта рядом. Документы для продажи готовы. Собственник один. Просмотр по договоренности. Торг.
Цена
6 800 000 ₽

2-х комнатная квартира

Лупполово дер. м.Проспект Просвещения


50.2 м2
Общая
30.2 м2
Жилая
8.7 м2
Кухня
Чистая , светлая квартира. Хорошее расположение. Рядом детский садик, магазин, остановка транспорта. Деревня Лупполово окружена сосновым лесом, есть место для прогулок, свежий воздух. В квартире хороший ремонт, есть места хранения.
Цена
4 898 000 ₽

2-х комнатная квартира

Володарское пос.


44.8 м2
Общая
29 м2
Жилая
6 м2
Кухня
Продается двухкомнатная квартира в поселке Володарское, Лужском районе. Площадь квартиры 44,8 квадратных метра. Квартира находится на 3 этаже 5 этажного дома. Дом 1975 года постройки, панельный, железобетонные перекрытия. Напольное покрытие - деревянное и линолеум. Окна стеклопакеты. Балкон. Санузел раздельный. Коммуникации: Электричество. Горячее водоснабжение центральное. Газоснабжение центральное. Водоснабжение центральное. Поселок Володарское отличное место, где есть все необходимая инфраструктура для проживания как одному, так и семьям с детьми, но при этом в 5 минутах ходьбы шикарная природа и озеро Врево. У озера отличные песочные пляжи, места для купания и рыбалки. Прямо у дома находится Володарская средняя общеобразовательная школа, в двух шагах находится Детский сад номер 27. У дома большая детская площадка и площадка со спортивными тренажерами. Рядом остановка общественного транспорта, постоянно ходят рейсовые автобусы до города Луги и других населенных пунктов; администрация, фельдшерско-акушерский пункт, пункты выдачи онлайн заказов, сетевые магазины. Документы в порядке, быстрый выход на сделку, юридическое сопровождение.
Цена
2 100 000 ₽

2-х комнатная квартира

Янино-1 пос., Ясная ул. м.Улица Дыбенко


52.1 м2
Общая
29.17 м2
Жилая
10.76 м2
Кухня
Пpoдаeтcя прocтoрнaя 2х комнатная  квартира 52,1 м2. Здесь уже работают отделения детской и взрослой поликлиники, в которых принимают по полисам ОМС, детский развивающий центр и  детский сады, 2 школы на 1200 человек, пожарное депо, магазины и кафе шаговой доступности, по соседству функционирует конный клуб `Исток`. Полностью развитая инфраструктура района. Еще одно преимущество расположение-  живописное окружение. Квартира в этом микрорайоне с одной стороны соседствует с лесным массивом, что обеспечивает особую атмосферу гармонии с природой. Лес рядом и это значит, что имеется уникальная возможность прогуляться по лесу, собирая грибы!!! Дорога до станции метро `Ладожская` или `Проспект Большевиков` займет всего 20 минут. Остановка общественного транспорта в шаговой доступности, не более 5 минут. Квартира предлагается с отделкой White Box или чистовой отделкой. Высота потолка- 2,7 м. Большие окна, безбарьерная  входная группа. Закрытый двор. До КАД - 5 минут на автомобиле. Просторная кухня  : 10,76 м2. - Ванная комната + туалет 4,86 м2. -2 жилые комнаты : 11,86м2 + 17,31 м2 - Прихожая 7,28 м2. До центра города ( Эрмитаж)  всего 17 км или 35 минут на машине. Звоните прямо сейчас! С удовольствием отвечу Вам на все, интересующие вопросы.
Цена
7 735 000 ₽

2-х комнатная квартира

Петергоф г., Чичеринская ул. м.Автово


53.8 м2
Общая
31.3 м2
Жилая
7.3 м2
Кухня
337805    Петергоф, ул  .Чичеринская,  дом 7 , кор.1. Продается двухкомнатная квартира  общ  .площадью 54 кв.м , комнаты изолированные,  квартира двухсторонняя, светлая , очень теплая, дом кирпичный. Преимущество расположения дома- рядом автобусная остановка, в шаговой доступности- магазины, .сбербанк, супермаркеты, школы,  садики, терапевтическое отделение Николаевской больницы, 7 минут пешком  до станции Старый Петергоф.   10 МИНУТ  ТРАНСПОРТОМ  ДО ЗНАМЕНИТЫХ ФОНТАНОВ, МУЗЕЕВ И ДВОРЦОВ .Один собственник,. в собсвенности-более 10 лет, подходит под любую ипотеку, квартира юридически  чистая, но требует ремонта .Вы можете осуществить свою мечту, сделав ремонт, такой какой считаете нужным для себя .Звоните, буду рада ответить на любые вопросы. просмотр по договоренности, ВСТРЕЧНАЯ ПОКУПКА.
Цена
7 750 000 ₽

2-х комнатная квартира

Рапполово дер., Овражная ул. м.Девяткино


44 м2
Общая
28 м2
Жилая
5.3 м2
Кухня
Ленинградская область, Всеволожский р-он, поселок Рапполово    В продаже отличная, двухкомнатная квартира на 1 этаже 3 этажного дома.Санузел раздельный, большой балкон с выходом из комнаты и из кухни. Квартира в очень хорошем состоянии, почти все остается новым собственникам. Из окон отличный вид на лес-заповедник.      В шаговой доступности вся развитая инфраструктура поселка Рапполово, магазины, почта, детский сад, остановки общественного транспорта (до метро 20 минут на автобусе), школа и многое другое. Так же пешком 5 минут до леса-заповедника, родника с кристально чистой питьевой водой, шикарного озера.    Идеально подойдет для тех кто ищет квартиру-дачу или же для тех кто хочет проживать постоянно в экологически чистом месте, при этом в непосредственной близости к городу и всей городской инфраструктуре.    Прямая продажа!!!    Сопровождение сделки В ПОДАРОК!!!
Цена
3 800 000 ₽

2-х комнатная квартира

Первомайское пос., Ленина ул. м.Беговая


42.1 м2
Общая
27.3 м2
Жилая
6 м2
Кухня
192 Предлагается в продажу отличная 2 к.кв. в п.Первомайское ул.Ленина д.63 на 2-ом этаже пятиэтажного панельного дома г.п.1973. В квартире сделан ремонт, балкон утеплен и застеклен стеклопакеты. Вся мебель и быт.техника остается новому собственнику- Заезжай и живи) Общ.пл.42,1 кв.м. кухня 6,0 кв.м., комнаты 8,8 +18,5(теплый балкон), С/У совм.ванна. В поселке есть вся инфраструктура: школа, дет.сад, сбербанк, больница, сетевые магазины и кафе, мед.центр. Удобное сообщение с СПб. Один взрослый собственник. Собственность от 2014г. Рассмотрим все варианты оплаты: ипотека, субсидия, мат.капитал. Легкая встречная покупка. Просмотры по предварительной договоренности.
Цена
4 850 000 ₽

2-х комнатная квартира

Петергоф г., Разведчика бул. м.Автово


46 м2
Общая
28 м2
Жилая
6 м2
Кухня
(№337611   объекта)  Санкт-Петербург, г.Петергоф,   ул.бульвар Разведчика д .16 к.1 Продается 2- х комнатная квартира в хорошем состоянии,  на комфортном 2-м этаже 5-ти этажного   кирпичного дома.  Удобная планировка  квартиры с 2-мя изолированными комнатами ( 19  кв.м+9 кв.м) и дополнительным помещением  закрытой террасой( летняя комната, площадью  3, 8 кв.м)  Так же в каждой комнате  имеются встроенные   помещения- кладовки.  Окна квартиры выходят на юго-запад. В живописный просторный двор. Дом находится  в эксклюзивном месте.  Через дорогу  находится  живописный Английский парк  с прудами. В прудах можно купаться и ловить рыбку. Благоустроенные набивные дорожки для катания на велосипедах, самокатах. Прогулки, отдых , осмотры достопримечательностей- музеев и фонтанов , парки и исторические здания г.Петергоф. Квартира продается в прямой продаже. Один взрослый собственник . Собственность от 2021 г.
Цена
6 900 000 ₽

Закажите консультацию специалиста

Оставьте заявку
Нажимая на кнопку «Отправить заявку», Вы даете согласие на обработку своих персональных данных.
×
продажа
Что вы хотите продать?
Сколько комнат?
Тип объекта?
В каком регионе?
В каком районе Санкт-Петербурга
В каком районе Ленинградской области?

Оставьте Ваш контакт и наши специалисты свяжутся с Вами в самые кротчайшие сроки.

+7
×
новостройка
Какие районы Санкт-Петербурга Вас интересуют?
С какой целью Вы планируете приобрести квартиру?
Сколько комнат должно быть в Вашей будущей квартире?
Какой вариант отделки Вам необходим?
Когда Вы хотите заехать?
В какой бюджет хотите уложиться?

Оставьте Ваш контакт и получите подборку квартир без риска столкнуться с мошенничеством и недостроем.

+7
×
сдать
Что вы хотите сдать?
Скольки комнатная квартира?
Какой тип коммерческой недвижимости вы хотите сдать?
В каком регионе?
В каком районе Санкт-Петербурга
В каком районе Ленинградской области?

Оставьте Ваш контакт и наши специалисты свяжутся с Вами в самые кротчайшие сроки.

+7
Этот сайт использует файлы cookie для улучшения пользовательского опыта. Cookie - это небольшие текстовые файлы, которые сохраняются на вашем устройстве и помогают нам запоминать ваши предпочтения, анализировать посещаемость сайта и предоставлять более персонализированный контент. Использование файлов cookie позволяет нам сделать сайт удобнее для вас. Политика конфиденциальности
Принять Отказаться