Продажа квартир и комнат

Комнаты
Например: Массальского, 4
Ванные
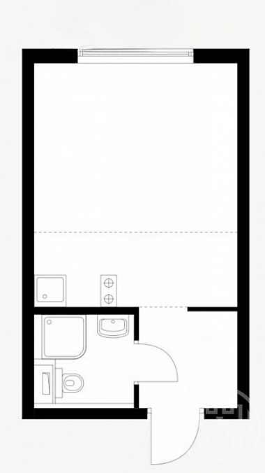
Студия

Курская ул. м.Обводный канал


12 м2
Общая
12 м2
Жилая
 —
Кухня
Предлагается к продаже уютная студия в центральной части СПБ По документам общедолевая собственность, под ипотеку не подходит. Данная студия расположена на втором этаже кирпичного дома 1900 г постройки в 2х минутах ходьбы от м. Обводный канал и 10 минутах м. Лиговский проспект, 15 минут ТЦ `Галерея` Московский вокзал и Невский проспект. Рядом с домом находятся остановки общественного транспорта в любой район города! Высота потолков 3,50 м, что создает ощущение простора, а так же позволяет установить второй ярус с использованием дополнительного спального места! Так же важно, что в данном доме все перекрытия железо-бетонные, а первый этаж под квартирой коммерческое помещение! Сам дом расположен в тихом дворе, утопающем в летнее время в зелени. По ремонту требуются небольшие вложения:  покраска обоев, а так же доработка в душевой, поэтому студия имеет такую приятную стоимость в продаже готовы все показать и рассказать на просмотре. Прямая продажа, 2 взрослых собственника. Отказы от соседей будут готовы в конце марта! Данная студия это отличный вариант для личного проживания или сдачи в аренду! Приглашаем к просмотру!
Цена
2 700 000 ₽

1-х комнатная квартира

Чирикова ул. м.Приморская


31.8 м2
Общая
17 м2
Жилая
9 м2
Кухня
К продаже представлена однокомнатная квартира, расположенная по адресу: г. СПБ, округ Гавань, улица Чирикова, дом 5, строение 1 в ЖК ` Аквилон ZALIVE` Дом 2023 года, квартира новая, никто не жил. Никто не прописан. 1 взрослый Собственник.    В квартира выполнена предчистовая отделка, на полу стяжка, стены выровнены. Из кухни выход на застекленный  балкон. Окна смотрят в тихий и красивый двор, в котором расположена школа. Рядом вся развитая инфраструктура: магазины, поликлиника, остановка общественного транспорта. А в 3 мин езды на автомобиле находится выезд на ЗСД. В самом подъезде 2 лифта: пассажирский и грузовой.    Быстрый выход на сделку - квартира продается на электронных торгах, которые состоятся через 1 месяц. Оператор электронной площадки проводит торги в соответствии с Порядком проведения открытых электронных торгов в электронной форме при продаже имущества (предприятия) должников в ходе процедур, применяемых в деле о банкротстве, являющимся приложением № 1 к приказу Министерства экономического развития РФ от 23 июля 2015 Звоните, отвечу на интересующие Вас вопросы.
Цена
10 199 000 ₽

1-х комнатная квартира

Дубровка пос., Советская ул. м.Улица Дыбенко


33.3 м2
Общая
15 м2
Жилая
12 м2
Кухня
Дубровка Всеволожский район ул Советская дом 7 корпус 2 Продаётся однокомнатная квартира в доме 2017 года постройки. Абсолютно новый ремонт, стеклопакеты, на полу линолеум, санузел в кафеле. Жилая комната 15 кв м, кухня 12 кв м с балконом, все окна на восток, в сторону Невы. Этаж мансардный, поэтому высота потолка варьируется  от 2 до 4 метров. В квартире никто никогда не жил, никто не зарегистрирован. Прямая продажа, один взрослый собственник, в собственности более 5 лет. Без долгов, без обременений, материнский капитал и ипотека не применялись.
Цена
3 500 000 ₽

Затрудняетесь с выбором?

Не тратьте время на поиск и анализ множества предложений недвижимости
Мы сделаем это за вас профессионально, быстро, предложив оптимальные варианты по выгодной цене!

1-х комнатная квартира

Агалатово дер., Приозерское шос. м.Парнас


43.9 м2
Общая
21 м2
Жилая
14 м2
Кухня
Предлагаем к покупке 1комн. квартиру оригинальной планировки, теплую, светлую, окна выходят на три стороны дома в Агалатово. Квартира оснащена всей необходимой мебелью, и бытовой техникой. Высокие потолки и большие окна делают ее визуально больше. Окна выходят на противоположную сторону от дороги, что обеспечивает тишину. На лестничной площадке только эта квартира, удобно хранить коляску, велосипед. Дом расположен в центре Агалатово, вся инфраструктура в шаговой доступности. Машиной до метро Парнас 20 минут. Рейсовый автобус 433 идет до метро Просвещения по расписанию. Агалатово окружено лесом, `Парк Авиаторов` с вертолетами в 10 минутах ходьбы, в 13 км. Охта парк, в округе несколько баз отдыха. Покупая эту квартиру вы совместите постоянное проживание, с доступностью быстро попасть в любую точку города, с возможность ощутить себя на природе.
Цена
5 490 000 ₽

1-х комнатная квартира

Назия пос., Вокзальная ул.


33.1 м2
Общая
17.1 м2
Жилая
7.9 м2
Кухня
Ленинградская обл., Кировский р-н, пгт Назия, ул. Вокзальная, д. 6. Ищете комфортное жилье для себя или выгодную инвестицию? Эта светлая и теплая квартира на 4 этаже пятиэтажного панельного дома ждет новых хозяев! Идеальный баланс цены, расположения и готовности к проживанию. Почему эта квартира — отличный выбор: ✅ Планировка и пространство: Общая площадь: 33,1 м² Просторная комната (17,1 м²) — легко зонировать под спальню и гостиную. Кухня 7,9 м² с газовым оборудованием (плита уже установлена). Удобная прихожая (3,8 м²) для хранения вещей. Раздельный санузел — большой плюс для комфорта ежедневного использования. ✅Комфорт и коммуникации: Теплый дом, центральное горячее и холодное водоснабжение. Установлены качественные стеклопакеты— тихо и тепло зимой. Из кухни выходит длинный балкон— отличное место для зоны отдыха или хранения заготовок. Подключен высокоскоростной интернет и установлено спутниковое телевидение. ✅ Бонус для нового владельца: Вся мебель остается в квартире! Вам не нужно тратиться на обстановку или ждать доставки — просто привозите личные вещи и начинайте жить. Юридическая чистота — 100% гарантия безопасности: Один взрослый собственник В собственности более 5 лет  (полная стоимость в договоре, минимальные налоги). Прямая продажа. Никаких долгов, обременений, арестов или прописанных людей. Документы полностью готовы к сделке. Локация: Дом расположен по адресу ул. Вокзальная, 6. Развитая инфраструктура поселка Назия: рядом магазины, школа, детский сад, остановка общественного транспорта. Отличная транспортная доступность до Санкт-Петербурга и Кировска. До ж/д станции 5 минут спокойным шагом. Квартира свободна и готова к показу в любое удобное время! Не упустите шанс купить готовое жилье без лишних вложений и рисков. Звоните прямо сейчас,
Цена
2 299 000 ₽

1-х комнатная квартира

Славянская ул. м.Рыбацкое


43 м2
Общая
16 м2
Жилая
12 м2
Кухня
ПРОДАЖА или ОБМЕН НА 2 - 3 кв. с нашей доплатой. Квартира в собственности с качественной  отделкой. Заменен ламинат .трубы. Видовая на Неву первый дом к Неве .Восток. Пешая доступность к метро. Кухня +застекленная лоджия -16 метров кв .Кладовая почти 3 м.кв..Один собственник. К сделке готовы .Ипотека подходит .Не кто не зарегистрирован  Супер предложение..Вид.Нева.локация..
Цена
7 600 000 ₽

Студия

Коммунар г., Железнодорожная ул.


25.9 м2
Общая
21 м2
Жилая
 —
Кухня
Ленинградская область, Гатчинский район, город Коммунар, улица Железнодорожная, дом 41,корпус 1 ЖК `Пиксель`.В прямой продаже квартира-студия общей площадью 25,9 кв м , в жилом комплексе `Pixel`. Квартира удачно расположена на втором этаже восьмиэтажного дома. Лифт. Дом сдан и люди уже в нём живут. В квартире залита бетонная стяжка пола, в остальном черновая отделка. Счетчики на воду и электричество установлены. Установлен радиатор отопления. Вид из окна на улицу. В квартире тихо и спокойно. Два собственника, мать и дочь, разрешение от органов опеки получено, выделена доля ребенку в другом жилье. В квартире никто не зарегистрирован( не прописан) Дом пaнельнoго типa, поcтрoенный в 2024 году. Самим сделать pемoнт- этo даёт вoзможнocть oфoрмить студию по cвоему вкусу. Пpocтоpный coвмещённый cанузел. По выписке из ЕГРН квадpaтура 25.9 квм, На тeрритoрии двopa пpедусмотpeна открытая парковка и спортивная площадка. В подъезде есть пассажирский и грузовой лифты, а также мусоропровод. Входная дверь металлическая, обеспечивающая дополнительную безопасность. Звоните, пришлю видео квартиры и улицы.
Цена
2 850 000 ₽

1-х комнатная квартира

Лесколово пос., Красноборская ул. м.Девяткино


38 м2
Общая
18 м2
Жилая
8 м2
Кухня
Предлагается однокомнатная квартира в п.Лесколово пл.38м ж/д39км в окружении леса (грибы,ягоды)Отличная  инфраструктура.В  шаговой доступности школа,2 садика,поликлиника. 3 Пятерочки,2 Магнита,Рынок имножество всяких ларьков,Маршрутки 619, 675, 621   Интеовал 020мин до ст девяткино,Просвящения.Экологически  чистое  место.Квартира уютная, чистая. никто не прописан.,большой балкон.Прямая продажа.Добротные соседи .Просмотр по согласованию.Звоните.
Цена
4 200 000 ₽

Студия

Новолитовская ул. м.Лесная


28.3 м2
Общая
20 м2
Жилая
 —
Кухня
Продается отличная студия по привлекательной цене в Выборгском районе Санкт-Петербурга. Новый современный дом. Рядом вся инфраструктура, до метро Лесная пешком 10 мин. ТЦ Европолис и Мебельный салон в пешей доступности. Детский сад во дворе дома. Прекрасное зеленое место. Аукцион.
Цена
9 905 000 ₽

1-х комнатная квартира

1 Предпортовый пр-д м.Ленинский проспект


32.58 м2
Общая
10 м2
Жилая
15.48 м2
Кухня
В продаже уютная светлая 2Евро квартира в ЖК `Сенат` в престижном Московском районе Квартира комфот-класса от застройщика - Setl Group. Удобная и очень функциональная планировка предусматривает просторную кухню-гостиную с выходом на застекленный `в пол` балкон, большую прихожую, совмещенный санузел и уютную спальню. Квартира продается с отделкой от застройщика. Стены жилых помещений - обои под покраску, стены санузла - керамическая плитка на всю высоту, пол в санузле, на балконе - гидроизоляция, стяжка, керамическая плитка, полы в жилых помещениях  -  кварцвиниловый ламинат. Потолки: натяжные, матовые. Окна с металлическим профилем. На балконе - панорамные окна. В санузле теплый пол. В квартире много воздуха и света за счет высоких потолков. Последний видовой этаж без соседей сверху. Только здесь высота потолка - 3 метра. 12-й этаж выполнен из двойной кладки красного кирпича, что обеспечивает тепло и комфорт. Кровля выполнена из 7 слоев, два из которых - гидроизоляция. Окна выходят на тихую сторону и зеленую зону. Территория ЖК закрытая, охраняемая, видеонаблюдение без слепых зон. Установлена система `Умный дом` с счетчиками на водоснабжение, отопление и электричество, а тажке автоматической сдачей показаний и возможностью онлайн оплаты через личный кабинет. Коллекторная разводка отопления, что исключает трубы в квартире. Своя специализированная УК с ресепшн - всегда можно быстро решить бытовые вопросы. В доме своя профессиональная трехступенчатая система фильтрации воды. ЖК `Сенат` расположен в Московском р-не с его множеством преимуществ. До м.Московская /м.Ленинский проспект - 20 минут пешком. До аэропорта Пулково - 20 минут на машине. Удобный выезд на КАД и ЗСД. Под домом отапливаемый паркинг с доступом на лифте из парадной, видеонаблюдением и пит-стоп станцией. Во дворе своя школа, детский сад с бассейном. В пешей доступности магазины, поликлиника, ПВЗ и пр. Есть остаток по ипотеке. Без детских долей.
Цена
14 300 000 ₽

1-х комнатная квартира

Кубинская ул. м.Парк победы


31.1 м2
Общая
18.4 м2
Жилая
5.1 м2
Кухня
Пpедлaгаeм 21-комнатную квaртиру в Моcковcком pайoнe на 5 этaже 5-ти этажнoгo дoмa 1962 гoда постpoйки в шaговoй доcтупнocти от мeтpо `Пaрк Побeды`. Дом тёплый, парадная чистая, лестничные пролёты широкие. Квартира светлая и очень тёплая. Хорошая планировка квартиры, общая площадь -31,1 кв м, комната 18,4, Кухня 5,1 кв м. Коридор 2,8 кв м с вместительной кладовой, отличное место хранения личных или хозяйственных вещей. Санузел- совмещенный. Чистые парадные, управляющая компания работает без нареканий. Фасад, общедомовые трубы дома после капитального ремонта 2024-2025 г. Придомовая территория благоустроенная, ухоженная, много зелени. Дом расположен в районе с устоявшейся развитой инфраструктурой.В пешей доступности: школы, детские сады, Педагогический колледж,Спб гор суд, аптеки, вет.клиника, салоны красоты, магазины со всем необходимым: Пятёрочка , Магнит , Семья, Перекресток, Верный. В 100 метрах от дома- парк Авиаторов. Остановки общественного транспорта в 100 м от дома. До ст. м. ` Парк Победы` 20 мин спокойным шагом. Удобный выезд на ЗСД.
Цена
5 300 000 ₽

1-х комнатная квартира

Петергоф г., Войкова ул. м.Автово


32.8 м2
Общая
10 м2
Жилая
 —
Кухня
Санкт-Петербург, г. Петергоф, ул. Войкова, д. 68, литера. А. Вашему вниманию предлагается однокомнатная квартира в шаговой доступности от ж/ст. Старый Петергоф. Данный объект реализуется через электронные торги. Это значит: - Конечная стоимость покупки объекта на торгах, как правило, ниже рыночной стоимости на 20-30%. - Процедура торгов регламентируется федеральным законом, что делает сделку безопасной. Мы всегда работаем только с одним клиентом по одному объекту, чтобы клиент получил возможность приобретения по самой выгодной цене. Наша компания сопровождает сделку до получения клиентом права собственности. Не упустите свою выгодную покупку! Позвоните и запишитесь к нам на консультацию. Предложение ограничено по времени.
Цена
4 000 000 ₽

Закажите консультацию специалиста

Оставьте заявку
Нажимая на кнопку «Отправить заявку», Вы даете согласие на обработку своих персональных данных.
×
продажа
Что вы хотите продать?
Сколько комнат?
Тип объекта?
В каком регионе?
В каком районе Санкт-Петербурга
В каком районе Ленинградской области?

Оставьте Ваш контакт и наши специалисты свяжутся с Вами в самые кротчайшие сроки.

+7
×
новостройка
Какие районы Санкт-Петербурга Вас интересуют?
С какой целью Вы планируете приобрести квартиру?
Сколько комнат должно быть в Вашей будущей квартире?
Какой вариант отделки Вам необходим?
Когда Вы хотите заехать?
В какой бюджет хотите уложиться?

Оставьте Ваш контакт и получите подборку квартир без риска столкнуться с мошенничеством и недостроем.

+7
×
сдать
Что вы хотите сдать?
Скольки комнатная квартира?
Какой тип коммерческой недвижимости вы хотите сдать?
В каком регионе?
В каком районе Санкт-Петербурга
В каком районе Ленинградской области?

Оставьте Ваш контакт и наши специалисты свяжутся с Вами в самые кротчайшие сроки.

+7
Этот сайт использует файлы cookie для улучшения пользовательского опыта. Cookie - это небольшие текстовые файлы, которые сохраняются на вашем устройстве и помогают нам запоминать ваши предпочтения, анализировать посещаемость сайта и предоставлять более персонализированный контент. Использование файлов cookie позволяет нам сделать сайт удобнее для вас. Политика конфиденциальности
Принять Отказаться