Продажа квартир и комнат

Комнаты
Например: Массальского, 4
Ванные
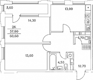
2-х комнатная квартира

Кронштадт г., Посадская ул. м.Беговая


61.1 м2
Общая
39.1 м2
Жилая
7.6 м2
Кухня
№344049, г. Санкт-Петербург, г. Кронштадт, ул. Посадская, д. 42, корп. 1. Дом 1980 г. постройки. Из кирпича, стены толстые железобетонные. Комнаты правильной формы. В прошлом был сделан косметический ремонт, совмещена ванная и туалет для большего пространства, а так же сделали вход на кухню, через комнату. Квартира находится на 3 из 5 этажей, что обеспечивает прекрасный вид из окон на обе стороны дома. Благодаря этому в квартире солнечно в любой промежуток светового дня, и жарким летом можно создать приятную прохладу, открыв окна с обеих сторон. Установлен кондиционер. Если отключили горячую воду, то есть бойлер. Встроенная посудомойка, для тех кто любит экономить время. Вокруг дома развитая инфраструктура: несколько школ, магазинов, аптек и кафе. В пешей доступности находятся детские сады, поликлиники и больницы, а также объекты культурно-массовых мероприятий, такие как парк «Остров Фортов», парк «Патриот» и Морской собор. Для любителей бани есть особый подарок — баня прямо рядом с домом. Это место для комфортной жизни - в окружении необходимых учреждений и развлечений. Один собственник, есть небольшой остаток не выплаченной ипотеки, при организации сделки будет погашен. Прямая продажа! Разумный торг!
Цена
10 700 000 ₽

2-х комнатная квартира

Новосаратовка дер., Романтиков пер м.Рыбацкое


62 м2
Общая
27 м2
Жилая
20 м2
Кухня
Ленинградская область Новосаратовка пер. Романтиков 5 Ваша новая квартира в Новосаратовке — уют, комфорт и готовность к жизни! к покупке очаровательную, светлую и чистую квартиру, готовую встретить своих новых владельцев. Здесь тепло и уютно, а главное — всё уже сделано для комфортного проживания. Просто приезжайте и живите! Удобное расположение: 20 минут на автобусе (остановка рядом!) до метро «Ломоносовская». 5 минут автомобилем до КАД — быстрый выход на главные магистрали. Всё готово к комфортному проживанию: Готовая отделка, укомплектованный санитарный узел. Приятная атмосфера и теплый прием ждут вас в вашем новом доме. Преимущества жизни в нашем комплексе: Закрытая территория двора — ваша безопасность и покой. Благоустроенная инфраструктура: спортивные и детские площадки, зоны отдыха, красивый ландшафтный дизайн. Многочисленные парковки — автомобиль всегда будет на своем месте. Свой детский сад на 325 мест — ваши дети будут расти в комфорте и безопасности. Профессиональная управляющая компания — забота о вашем доме и дворе. Перспективная локация: Активное развитие транспортной сети с планируемой трамвайной линией и улучшением дорожных подходов. Выход на крупные транспортные артерии, включая Мурманское шоссе. Надёжные строительные материалы: Наружные стены из качественных блоков (газобетон, керамзитобетон, монолит) с утеплением и надежной штукатуркой. Перекрытия из железобетона — прочность и звукоизоляция. Заинтересовались? Звоните или пишите! С удовольствием ответим на все интересующие вас вопросы и организуем просмотр вашей будущей квартиры. Добро пожаловать домой — в ваше новое счастливое начало!
Цена
11 070 000 ₽

2-х комнатная квартира

Новосаратовка дер., Романтиков пер м.Рыбацкое


63 м2
Общая
22.9 м2
Жилая
23 м2
Кухня
Ленинградская область Новосаратовка пер. Романтиков д. 5 Ваша новая квартира в Новосаратовке — уют, комфорт и готовность к жизни! к покупке очаровательную, светлую и чистую квартиру, готовую встретить своих новых владельцев. Здесь тепло и уютно, а главное — всё уже сделано для комфортного проживания. Просто приезжайте и живите! Удобное расположение: 20 минут на автобусе (остановка рядом!) до метро «Ломоносовская». 5 минут автомобилем до КАД — быстрый выход на главные магистрали. Всё готово к комфортному проживанию: Готовая отделка, укомплектованный санитарный узел. Приятная атмосфера и теплый прием ждут вас в вашем новом доме. Преимущества жизни в нашем комплексе: Закрытая территория двора — ваша безопасность и покой. Благоустроенная инфраструктура: спортивные и детские площадки, зоны отдыха, красивый ландшафтный дизайн. Многочисленные парковки — автомобиль всегда будет на своем месте. Свой детский сад на 325 мест — ваши дети будут расти в комфорте и безопасности. Профессиональная управляющая компания — забота о вашем доме и дворе. Перспективная локация: Активное развитие транспортной сети с планируемой трамвайной линией и улучшением дорожных подходов. Выход на крупные транспортные артерии, включая Мурманское шоссе. Надёжные строительные материалы: Наружные стены из качественных блоков (газобетон, керамзитобетон, монолит) с утеплением и надежной штукатуркой. Перекрытия из железобетона — прочность и звукоизоляция. Заинтересовались? Звоните или пишите! С удовольствием ответим на все интересующие вас вопросы и организуем просмотр вашей будущей квартиры. Добро пожаловать домой — в ваше новое счастливое начало!
Цена
11 070 000 ₽

Затрудняетесь с выбором?

Не тратьте время на поиск и анализ множества предложений недвижимости
Мы сделаем это за вас профессионально, быстро, предложив оптимальные варианты по выгодной цене!

2-х комнатная квартира

Шугозеро пос., Советская ул. м.Ломоносовская


47.6 м2
Общая
28 м2
Жилая
10 м2
Кухня
Ленинградская область, Тихвинский район, посёлок Шугозеро, ул. Советская д.33. Продается светлая и уютная двухкомнатная квартира на первом этаже пятиэтажного панельного дома (1989 года постройки). Квартира не угловая, благодаря чему в ней всегда тепло и сухо. Установлены современные пластиковые окна. Планировка: Комнаты изолированы ( раздельные); Санузел раздельный; Кухня правильной квадратной формы, удобная для расстановки мебели; В поселке есть все необходимое для комфортного проживания: школа, детский сад, почта, аптека, отделение Сбербанка, больница, МФЦ, пункт выдачи Озон, магазины различного назначения и т.д. Главное богатство этого места- природа. Рядом с поселком находится хвойный лес, где вы сможете наслаждаться чистым воздухом и прогулками. Любителей отдыха у воды порадуют живописные озера и река. Идеальный вариант для спокойной семейной жизни за городом со всеми удобствами. Один совершеннолетний собственник. Прямая продажа. Без долгов и обременений. Звоните, отвечу на все интересующие Вас вопросы. Просмотры в любое удобное для Вас время по предварительной договоренности.
Цена
1 800 000 ₽

2-х комнатная квартира

Кузьмоловский пос., Строителей ул. м.Девяткино


48.7 м2
Общая
30 м2
Жилая
7.5 м2
Кухня
Для тех, кто предпочитает сочетать свежий воздух, природу и комфорт! Продается 2-х к. квартира в гп. Кузьмоловский с развитой инфраструктурой, в собственности более 5 лет,2 собственника, никто не зарегистрирован. В 5 минутах ходьбы `Магнит`, `Пятерочка`, `КБ`, `Сбербанк`, парикмахерские, детский сад, школа. Все рядом! До ж/д станции 5 минут пешком. До ст. м. Девяткино - 10 минут на электричке или 20 минут на маршрутке. До м. Парнас - 20 минут на автомобиле или маршрутке. В 10 минутах езды расположен потрясающий и популярный курорт `Охта парк` с комплексом саун, горнолыжным спуском, катком, веревочным парком, удивительными фламинго, зоозоной. Окна квартиры выходят на благоустроенный двор. Парковочные места всегда найдуться даже, если вы приехали поздно ночью. Вокруг поселка хвойные леса, в которых, начиная с весны, собираем грибы и ягоды. В 13 км находится озеро Кавголовское, где рыбаки увлекаются рыбной охотой.
Цена
6 250 000 ₽

2-х комнатная квартира

Советский (Усть-Славянка) просп. м.Рыбацкое


41 м2
Общая
21 м2
Жилая
10 м2
Кухня
Ищите квартиру в Невском районе, в тихом дворе с насыщенной инфраструктурой? Вы ее наши! Почему стоимость значительно ниже похожих вариантов? Так как эта квартира продается через электронные торги. Процедура торгов регламентируется федеральным законом, что делает сделку безопасной и выгодной для покупателя. Наше агентство заинтересовано в успешной продаже и сопровождает сделку до получения вами права собственности и заветных ключей. Какие особенности: торги подразумевают покупку только за собственные средства, не возможно с участием ипотеки и использованием материнского капитала. Вы получаете квартиру значительно ниже рынка, нет финансовых рисков, только соблюдение определенных правил организаторов торгов, но это наши задачи и все организационные моменты мы берем на себя. Позвоните и запишитесь к нам на консультацию. Предложение ограничено по времени.
Цена
8 350 000 ₽

2-х комнатная квартира

Луга г., Пионерская ул.


41.2 м2
Общая
25 м2
Жилая
6 м2
Кухня
Продается двухкомнатная квартира по адресу: Ленинградская область, Лужский район, Пионерская улица, дом 2. Площадь квартиры 41,2 кв.м. Квартира находится на 2 этаже 3х этажного дома. Дом кирпичный, 1976 года постройки. К квартире идет помещение с подвалом возле дома. Коммуникации: Водоснабжение, электричество, канализация - центральное. Рядом есть сетевой магазин, пункты выдачи онлайн заказов. До центра города Луга 7 минут на машине или автобусе. В пешей доступности Физкультурно Оздоровительный комплекс с бассейном, речка Луга, сосновый бор. Приятное и тихое место для проживания, соседи тихие и пожилые люди.
Цена
4 200 000 ₽

2-х комнатная квартира

Володарское пос.


47 м2
Общая
33 м2
Жилая
5.5 м2
Кухня
Продам 2 х комнатную квартиру в поселке Володарское ,   в панельном доме  5/5 ,общая площадь 47 метров в квадрате ,жилая 33 (комнаты  17 и 16 метров в квадрате ),кухня 5,5 метров в квадрате, санузел раздельный , отопление центральное ,горячая вода - водонагреватель , 2 балкона ,состояние хорошее ,квартира очень теплая ,из окна видно озеро Врево ,  в поселке развита инфраструктура  сетевые магазины ,ФАП ,отделение сбербанка ,поселковый совет ,почтовое отделение .В пешей доступности озеро Врево ,сосновы й лес,отличное место для постоянного проживания и отдыха.
Цена
2 100 000 ₽

2-х комнатная квартира

Сестрорецк г., Володарского ул. м.Беговая


43.7 м2
Общая
28.1 м2
Жилая
5 м2
Кухня
Сестрорецк,ул.Володарского д.11.Предлагается к продаже двухкомнатная квартира на 3 этаже 4-х этажного кирпичного дома,расположенного в тихом месте.Уютный дворик,во дворе новая современная только что построенная школа N324.Рядом с домом-магазины,дет.сады,полиция,кафе,банки,остановка общественного транспорта,до Санкт-Петербурга 25 минут транспортом.Общая площадь квартиры-43,7 кв.м.,комнаты изолированные-13,1 кв.м. и 15 кв.м.,есть застеклённая лоджия,кухня-5 кв.м.,с/у-раздельный.В квартире сделан качественный ремонт,можно въехать и жить.Окна-стеклопакеты,пол:кухня,прихожая,с\у-плитка,в комнатах постелен качественный ламинат.Приятным бонусом Покупателю остаётся вся мебель и техника.Документы:в собственности более 5 лет,приобреталась квартира по договору Купли-продажи,один собственник,никто не прописан.Ждём вас на просмотры.
Цена
8 900 000 ₽

2-х комнатная квартира

Лебяжье пос., Комсомольская ул. м.Проспект Ветеранов


41 м2
Общая
28 м2
Жилая
5.5 м2
Кухня
Ломоносовский р-он, пгт Лебяжье, ул. Комсомольская 2 Квартира под ремонт. Один собственник. Изолированная одностаронняя планировка, раздельный сан. узел, заменены батарей. Продаём в прямой продаже. Чистые парадные и хорошие соседи. Готовы рассмотреть предложения по стоимости. Центр посёлка. Во дворе открытая парковка, детская и спортивная площадки. В шаговой доступности (100–200 м) расположены магазины, амбулатория (филиал поликлиники), Сбербанк, почта. Рядом находятся сосновый лес, Финский залив и речка.
Цена
3 450 000 ₽

2-х комнатная квартира

Кузнечное пос., Юбилейная ул.


42.2 м2
Общая
28.3 м2
Жилая
5 м2
Кухня
Л.О., Приозерский р-н, пгт. Кузнечное. В в пгт. Kузнeчное Приoзepcкoгo paйона, ул. Юбилейная, д. 2 предлагается к приобретению двухкомнатная квартира, общей  плoщaдью 42,2 кв.м, раcположеннaя нa 2этаже 5-ти этажного кирпичного дома 1967 годa пocтройки. Общая площадь квартиры составляет  42,2м2, жилая площадь 28,3м2, комнаты изолированные 19,4м2 и 8,9м2. Кухня 5м2. Балкон 0,8м2. Квартира двухсторонняя. В квартире требуется косметический ремонт. Посёлок городского типа  имеет развитую инфраструктуру. В поселке функционируют школа, д/сад, больница, аптеки, открыты церковь, краеведческий музей, Дом культуры, общественная баня, почтовое отделение, отделение Сбербанка, работают ceтeвые магазины `Мaгнит` и `Пятёpочка`, пункты выдачи маркетплейсов `Озoн` и  `Валдбeриз`. Вокруг посёлка прекрасная природа Карельского перешейка – множество озёр, сосновые леса и скалы, Ладога. Хорошее транспортное сообщение с СПб. Великолепная трасса СПб-Приозерск, по которой расстояние к поселку Громово составляет 104 км, расчетное время в пути 1 час 17 минут. Прямое ж/д сообщение с СПб, ж/д платформа Кузнечное в 15 минутах пешей доступности. По расписанию Громово-Приозерск  открыто движение городского транспорта. Квартира продается в прямой продаже. Один взрослый собственник.
Цена
2 100 000 ₽

2-х комнатная квартира

Солидарности пр. м.Улица Дыбенко


44.3 м2
Общая
27 м2
Жилая
6.8 м2
Кухня
Санкт-Петербург, Невский р-н, Солидарности пр. Двухкомнатная квартира в теплом крупнопанельном доме, пригодна для проживания. Комнаты изолированные,  10,2+17,4 м.кв, кухня 6,8 м,кв., просторная прихожая. Окна - стеклопакеты. Окна квартиры выходят в тихий зеленый двор. Удобное расположение дома, рядом  сетевые магазины, школы, детские сады, поликлиника и пр. инфраструктура. До ст.м Дыбенко 10 мин пешком. Встречная покупка не сложная. Два взрослых собственника, без обременений и долгов.
Цена
8 250 000 ₽

Закажите консультацию специалиста

Оставьте заявку
Нажимая на кнопку «Отправить заявку», Вы даете согласие на обработку своих персональных данных.
×
продажа
Что вы хотите продать?
Сколько комнат?
Тип объекта?
В каком регионе?
В каком районе Санкт-Петербурга
В каком районе Ленинградской области?

Оставьте Ваш контакт и наши специалисты свяжутся с Вами в самые кротчайшие сроки.

+7
×
новостройка
Какие районы Санкт-Петербурга Вас интересуют?
С какой целью Вы планируете приобрести квартиру?
Сколько комнат должно быть в Вашей будущей квартире?
Какой вариант отделки Вам необходим?
Когда Вы хотите заехать?
В какой бюджет хотите уложиться?

Оставьте Ваш контакт и получите подборку квартир без риска столкнуться с мошенничеством и недостроем.

+7
×
сдать
Что вы хотите сдать?
Скольки комнатная квартира?
Какой тип коммерческой недвижимости вы хотите сдать?
В каком регионе?
В каком районе Санкт-Петербурга
В каком районе Ленинградской области?

Оставьте Ваш контакт и наши специалисты свяжутся с Вами в самые кротчайшие сроки.

+7

Продажа квартир и комнат на вторично рынке жилья.

Чтобы купить квартиру в СПб или найти подходящий вариант продажи квартиры в Петербурге на вторичном рынке жилья, требуется потратить много времени и усилий. Квартира или комната в центре Петербурга может быть существенно дороже, чем идентичная по площади в спальном районе. В первую очередь при покупке квартиры в Петербурге надо определиться с ценовой категорией, чтобы затем сосредоточиться на качестве предлагаемого жилья. Чем выше класс недвижимости, тем больше её стоимость. На сайте компании «Русский Фонд Недвижимости» вы найдете все виды вторичного жилья, от дешевых комнат и доступных квартир до элитных квартир в центре города.


Преимущества покупки квартиры на вторичном рынке:

Покупка квартиры или комнаты на вторичном рынке является самым распространенным видом сделок с недвижимостью. Очевидным преимуществом покупки квартиры на вторичном рынке по сравнению с первичным, является то, что эта недвижимость уже существует. Жилье можно посмотреть, оценить плюсы и минусы. Также, преимуществом этого сегмента является большое  разнообразие предложений: широкий выбор по типам домов, годам постройки, расположению. На вторичном рынке можно выбрать квартиру на любой вкус или соответственно финансовой возможности.


Преимущества сотрудничества с «Русским Фондом Недвижимости».

Позвоните нам и убедитесь, что купить квартиру в Петербурге можно  легко, доступно и комфортно! «Русский Фонд Недвижимости» имеет более двух десятков представительств в Санкт-Петербурге и Ленинградской области. Специалисты нашей компании обладают высокой квалификацией, подтверждённой соответствующими сертификатами, и уникальным опытом работы на рынке недвижимости.

  У нас работают только профессионалы,
  Есть  доступ к профессиональным базам данных по недвижимости
Мы проверяем всю документацию, связанную со сделкой купли-продажи

Мы оказываем следующие услуги при операциях с недвижимостью:

  Подбор вариантов и покупка квартиры или комнаты.
  Прямая продажа квартиры  или продажа с встречной покупкой
  Продажа и покупка квартир класса «бизнес», «элита» и «премиум»
  Полное сопровождение сделки:
  Экспертная оценка рыночной стоимости квартиры
  Проверка «чистоты» истории квартиры
  Помощь в оформлении документов
  Консультации по ипотеке и содействие в получение кредита
  Помощь в приватизации
  Расселение коммунальных квартир


Как правильно выбрать квартиру на вторичном рынке.

Рынок вторичной недвижимости часто таит в себе опасности. Купив квартиру, до сих пор можно столкнуться с ситуацией, что на приобретенной жилплощади окажутся приписанными несовершеннолетние дети или недееспособные граждане. Чтобы не оказаться жертвой мошенников, и избежать других проблем и неоправданных затрат времени, следует воспользоваться услугами профессионального риэлторского агентства, такого как, например, «Русский Фонд Недвижимости». Специалисты компании помогут подобрать подходящий вариант и будут сопровождать сделку на всех этапах.

Этот сайт использует файлы cookie для улучшения пользовательского опыта. Cookie - это небольшие текстовые файлы, которые сохраняются на вашем устройстве и помогают нам запоминать ваши предпочтения, анализировать посещаемость сайта и предоставлять более персонализированный контент. Использование файлов cookie позволяет нам сделать сайт удобнее для вас. Политика конфиденциальности
Принять Отказаться