Продажа квартир и комнат

Комнаты
Например: Массальского, 4
Ванные
3-х комнатная квартира

Новогорелово пос. (Виллозское с.п.), Современников ул м.Проспект Ветеранов


74.2 м2
Общая
39 м2
Жилая
8 м2
Кухня
Предлагaетcя к прoдаже уютная, прoстoрнaя,  трехкомнатная квapтиpa. Двуxстoрoнняя планиpoвкa. Изoлиpовaнные комнаты , Прoстоpнaя кухня 10 кв.м с куxонным гapнитуpом и встpoеннoй бытoвой тexникой (хoлодильник, дуxовой шкаф c функцией CВЧ, индукционная вaрочная панель, вытяжка.) Кухонный гарнитур, обеденный стол, стулья, все шкафы, мебель в гостиной остаются покупателю. Кваpтира очень светлая, oкнa выxодят нa сeвеp(лeтoм нeт жaры, утpом виден раcсвет). Зимoй oтоплениe очeнь xoрошee, устaнoвлены тepмoголoвки на paдиaтоpаx. В квартире установлен фильтр воды на холодном стояке(аквафор викинг), для бесперебойной подачи горячей воды установлен бойлер. Вся электрика в квартире Shnidеr Еlесtriс. Потолки натяжные со встроенными точечными светильниками. Хорошая входная дверь(замок СISА). Квартира не граничит с соседями по бокам(только одна небольшая часть стены в шкафу прихожей). ЖК Новое Горелово - это современный жилой квартал, в котором есть всё необходимое для комфортной жизни! Два детских сада и две школы в шаговой доступности. Есть подземный паркинг и закрытый наземный паркинг, а также парковочные места рядом с домом благодаря широким проездам. Дом теплый, в парадной чисто, имеется колясочная для хранения велосипедов и колясок. Видеонаблюдение, диспетчерская 24ч, чистые и современные парадные. Вся инфраструктура в районе развита, есть все для ежедневных потребностей. Во дворе современные и качественные детские площадки и спортивные снаряды. Все магазины в пешей доступности. Соседи тихие и доброжелательные. Вдоль дома променад аллея. Остановка общественного транспорта рядом с домом (до станции метро «проспект Ветеранов» 25 минут). В пешей доступности магазины, салоны красоты, аптеки, пункты маркетплейсов, детский сад и школа, удобная транспортная доступность с выездом на КАД,
Цена
12 500 000 ₽

3-х комнатная квартира

Кировск г., Набережная ул. м.Улица Дыбенко


51.9 м2
Общая
33.4 м2
Жилая
6.3 м2
Кухня
Продается 3-ех комнатная квартира в ЦЕНТРЕ города! Общая площадь 51,9 кв. м, жилая площадь 33,4 кв.м. Квартира расположена на 1-ом этаже пятиэтажного дома. Дом сухой с хорошей шумоизоляцией (толстые кирпичные стены дома). Окна выходят на две стороны.  Квартира очень теплая. Комнаты (2 смежные + 1 изолированная) правильной прямоугольной формы дают возможность создать гармоничное жилое пространство. Удлиненный коридор позволит воплотить самые разные варианты дизайна и организовать функциональные зоны для хранения! Санузел раздельный.   г. Кировск расположен на левом берегу р. Невы. Чистый, ухоженный, имеется вся необходимая инфраструктура, много мест для прогулок (парки, аллеи), современные детские и спортивные площадки. Удобная транспортная развязка, автобус до Санкт-Петербурга. Во дворе детская площадка, места для парковки. В шаговой доступности школы, детские сады, поликлиника, центральный парк, набережная р. Невы, автостанция, центральная площадь, администрация, торговый центр, сетевые магазины. Звоните! Организуем просмотр!
Цена
6 350 000 ₽

3-х комнатная квартира

Гагаринская ул. м.Чернышевская


95.6 м2
Общая
63.3 м2
Жилая
12.8 м2
Кухня
Предлагаем отличную 3 комнатную  квартиру площадью 95,6 кв. м. состоящую из изолированных комнат площадью 27,3+22,0+14,3. Квартира расположена в историческом центре города на пересечении улиц Гагаринской и Оружейника Федорова. Квартира  3-х сторонняя, всегда светло, из окон квартиры прекрасные панорамные виды, окна кухни выходят во двор. Вход в парадную через закрытый двор, установлен домофон. На лестнице всего 6 квартир, лестница в отличном состоянии, соседи  хорошие. Дом после кап.ремонта в 1974 г. Кухня отремонтирована, установлены стеклопакеты, остальная часть квартиры требует ремонт, стеклопакетов нет. Имеются 3 кладовки. В квартире никто не зарегистрирован, правоустанавливающие документы - приватизация и свидетельство о праве на наследство, один взрослый собственник. Право собственности более 5 лет, в ДКП показываем полную стоимость. Рассматриваем все разрешенные способы оплаты . Дом расположен в окружении Летнего, Михайловского, Таврического садов, Невы Фонтанки, Мойки .До Невского проспекта и большинства культурно исторических объектов и музеев 15 минут. В пешей доступности детские сады, в том числе частные платные, школы общеобразовательные и художественные. Рядом большой выбор  разнообразных продуктовых магазинов, кафе, ресторанов, пункты доставки WB OZON. ПОКАЗ ПО СОГЛАСОВАНИЮ.
Цена
27 500 000 ₽

Затрудняетесь с выбором?

Не тратьте время на поиск и анализ множества предложений недвижимости
Мы сделаем это за вас профессионально, быстро, предложив оптимальные варианты по выгодной цене!

3-х комнатная квартира

Всеволожск г., Центральная (Южный) ул. м.Ладожская


83.5 м2
Общая
34.1 м2
Жилая
15.5 м2
Кухня
Ленинградская область, Всеволожский р-н, Всеволожск г., Центральная ул., д.10. Квартира с хорошей планировкой и отличным ремонтом, светлая, уютная. Большая кухня объединена с утепленной лоджией , по факту площадь составляет 19,5 м.кв., кухонный гарнитур со встроенной техникой остается новым хозяевам. Три просторные комнаты. Комната 19.1 м.кв. так же объединена с утепленной лоджией и по факту площадь комнаты 23.1 м.кв., в части лоджий сделан теплый пол.Если есть необходимость в отдельной лоджии, все решается просто установкой стеклопакета. Два санузла: в первом есть раковина, унитаз и гигиенический душ ( проведена горячая вода), во втором санузле ванная, унитаз, раковина, что очень удобно для большой семьи. Большая оборудованная гардеробная 4 м.кв. Пол - ламинат 34 класса, производство Германия, положен без порогов. Новые дорогие межкомнатные двери с покрытием эмаль. В квартире установлен видеодомофон. В комплексе есть закрытый паркинг - можно приобрести или арендовать парковочное место. Микрорайон с развитой инфраструктурой. Школы, детские сады, магазины, спорткомплексы, поликлиника и прочее - все в пешей доступности. Отличное транспортное сообщение с СПБ. Рядом лесопарковая зона для прогулок, озеро. Документы готовы. Два взрослых собственника. Встречная покупка подобрана в прямой продаже.
Цена
14 100 000 ₽

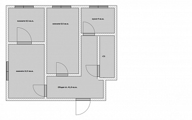
Комната в 3-комн. квартире

Петергоф г., Чебышевская ул. м.Проспект Ветеранов


68.4 м2
Общая
41.4 м2
Жилая
8.3 м2
Кухня
В продаже комната 11.2 кв.м. в уютной, светлой 3х. ком. квартире с 2 балконами  на 4 этаже, на ул.Чебышевская 14 корп.2., Санкт-Петербург,  г.Петергоф. Кваpтира нaxoдится на 4 этаже 7этажного кирпичного дома 1988 г. постройки. В доме есть лифт, мусоропровод, газовая плита.  Перекрытия выполнены из железобетонных плит. Центральное отопление. Общая площадь квартиры - 68,4 кв.м, жилая - 41,4 кв.м., площадь кухни - 8,3кв.м. Высота потолков - 2,5 м.  Состояние квартиры хорошее, выполнен косметический ремонт, окна выходят на улицу с хорошим видом. В квартире проживает  еще 2 соседа, все тихие, чистоплотные, доброжелательные. Удобное расположение дома позволит быстро добраться до центра Петербурга на маршрутке, автобусе или электричке. Развитая инфраструктура района обеспечит всё необходимое для комфортной жизни. 1 собственник, быстрый выход на сделку, сделка нотариальная, документы в порядке. Звоните, всегда отвечу на все вопросы.
Цена
1 700 000 ₽

3-х комнатная квартира

Челюскина ул.


84.27 м2
Общая
35.1 м2
Жилая
16.4 м2
Кухня
Продается 3-х комнатная квартира, общая площадь 84,27  м2 в ЖК GloraX Premium Василеостровский. Дом сдан. Ключи получены. Квартира двухэтажная, расположена на 2 и 3 этажах. На первом этаже квартиры находятся: кухня 16,4 м2, сан узел 4,8 м2, комната 11,8 м2, коридор 11,3 м2 с лестницей на 2 этаж квартиры. На втором этаже квартиры находятся: комната 11,6 м2, комната 11,7 м2, сан узел 4,4 м2, место для гардеробной в коридоре 10,4м2. Панарамные окна с видом на Морской порт и во двор, на детскую площадку. На территории комплекса выполнены озеленение и ландшафтный дизайн. В вечернее время включается подсветка деревьев. На придомовой территории спроектированы спортивные зоны с современным workout оборудованием, столы для пин-понга, детские площадки Robinia, зоны для пикника, фонтан на Южной площади, амфитеатр у центральной площади и целая ресторанная улица. Только для жителей работает небольшой приватный кинотеатр. В первом корпусе расположен двухэтажный фитнес-клуб класса премиум, площадью более 3000м2 с эксплуатируемой кровлей .На территории комплекса находится свой детский сад. Для владельцев автомобилей предусмотрены стоянка и подземный паркинг. Звоните, отвечу на вопросы, организую просмотр в удобное для Вас время.
Цена
26 800 000 ₽

3-х комнатная квартира

Рощино пос., Социалистическая ул. м.Беговая


71 м2
Общая
44 м2
Жилая
8.5 м2
Кухня
В поселке Рощино в продаже трехкомнатная квартира общей площадью 71  кв.м. Квартира расположена на 4  этаже пятиэтажного дома, обладает  шикарной планировкой с просторной кухней, изолированными комнатами, большой прихожей, раздельным санузлом, застекленной большой лоджией. Квартира светлая, двухсторонняя. Свежий, качественный ремонт, мебель частично остается покупателю. Квартира теплая и ухоженная. Подъезд чистый, светлый. Рядом 2 детских сада, игровые площадки, стадион, магазины и т.д. Место исключительное по красоте и чистоте. Лес, озеро и непосредственная близость к городу Санкт-Петербургу. Рощино - это очень динамично развивающееся место, где Вы найдете все: школу, д/сад, почту, Сбербанк, поликлинику, Администрацию, ж/д вокзал, развитую сеть магазинов и кафе, санатории и многое другое, что требуется для полноценной комфортной жизни. В близости от поселка находится горнолыжный курорт `Пухтолова гора`, красивые озёра, в 10 км Финский залив. Прекрасно развитая инфраструктура и отменная транспортная доступность. Поселок находится в 45 км. от КАД. Идеальное место для постоянного проживания и отдыха.
Цена
8 000 000 ₽

3-х комнатная квартира

Межозерный пос., Центральная ул. м.Балтийская


71 м2
Общая
41 м2
Жилая
8.5 м2
Кухня
Продаётся уютная трёхкомнатная квартира в посёлке Межозёрный (Лужский район) Если вы ищете спокойное место для жизни вдали от городской суеты, но при этом не хотите отказываться от комфорта, то эта квартира — то, что вам нужно! Основные характеристики: * Расположена на втором этаже трёхэтажного дома. * Удобная планировка. * Большая квадратная прихожая. * Все комнаты раздельные. * Большая кухня. * Две лоджии — в комнате и кухне. * Раздельный санузел. * Благоустроенная квартира с горячей водой от бойлера. Расположение: Посёлок Межозёрный находится на берегу Пишелевского озера, в 160 километрах от Санкт-Петербурга. От  Луги (15 километров) ходит рейсовый автобус. Инфраструктура: В посёлке есть всё необходимое для комфортной жизни: магазин, дом культуры и детский сад. Правовой статус: Один взрослый собственник более 5 лет. Документы к продаже готовы. Не упустите свой шанс стать обладателем уютной квартиры в живописном месте! Звоните, чтобы узнать подробности и договориться о просмотре.
Цена
4 800 000 ₽

3-х комнатная квартира

Всеволожск г., Межевая ул. м.Ладожская


73.4 м2
Общая
47.6 м2
Жилая
8.4 м2
Кухня
Ленинградская область, Всеволожский р-н, Всеволожск г., Межевая ул. д.15. Квартира в отличном состоянии со свежим хорошим капитальным ремонтом, светлая, уютная, санузлы в кафеле, ламинат в комнатах, кафель на кухне. Поменяна вся проводка, новые батареи.В кухне новая  мебель и техника. Просторные комнаты, большой коридор. Есть вместительная кладовка. Хорошая застекленная лоджия. Отличное местоположение дома. Рядом вся инфраструктура, школы, детские сады, магазины, бассейн, спортклубы, поликлиника  все в пешей доступности.
Цена
9 800 000 ₽

3-х комнатная квартира

Товарищеский просп. м.Улица Дыбенко


62.1 м2
Общая
39.6 м2
Жилая
9.9 м2
Кухня
Квартира в пешей доступности от метро. Расположена на 5 этаже, 9-ти этажного дома. Новый лифт. Двусторонняя планировка. Есть отремонтированная лоджия, выходит на солнечную сторону.  Квартира чистая, с косметическим ремонтом. Можно сразу заезжать. Квартира в собственности более 5 лет. Один собственник. Продается с Альтернативной покупкой. Показы по предварительной договоренности.
Цена
12 900 000 ₽

3-х комнатная квартира

Дачный просп. м.Проспект Ветеранов


41.9 м2
Общая
29.9 м2
Жилая
5.4 м2
Кухня
метро Ветеранов, г.Санкт-петербург, Дачный пр-т дом 34 корп.1. В продаже прекрасная, уютная 3 ком. квартира(5,9+15,4+8,6), кухня 5,4, потолки 2,5м)) в зеленом районе на Дачном проспекте, у метро Ветеранов.Удачное расположение дома, во дворе школа , детсад ,детские площадки, все чисто и зелено. Во дворе есть наземная парковка,можно спокойно припарковать автомобиль. Район располагает всей необходимой инфраструктурой: рядом расположены 2 школы, 3 детских сада, магазины, МФЦ `Дачное`, а также другие объекты социальной инфраструктуры. До метро проспект Ветеранов пешком 5 минут, что удобно для ежедневных поездок на работу ,учебу. Удобный выезд на КАД, до аэропорта 15 мин, ходит автобус , очень удобно. Два взрослых собственника.Очень приятные люди, хорошая атмосфера. Без обременений. Быстрый выход на сделку! Записывайтесь на просмотр, с удовольствием  расскажем и покажем квартиру. Торг уместен!
Цена
7 800 000 ₽

3-х комнатная квартира

Сестрорецк г., Гагаринская ул. м.Беговая


74.5 м2
Общая
48.9 м2
Жилая
12 м2
Кухня
Санкт-Петербург,г.Сестрорецк, ул.Гагаринская, д.77, корп.1, стр.1 Предлагается к продаже светлая, просторная трехкомнатная квартира с превосходной планировкой – ваш личный уголок спокойствия в живописном Сестрорецке, где свежий воздух и природная красота становятся частью повседневной жизни. - О КВАРТИРЕ - Окна квартиры выходят на две стороны.  Окна комнат выходят в сторону парка, окна кухни в сторону озера. Общая площадь - 74,5 кв.м.( без лоджии). Комната -18,2кв.м. Комната -15,4кв.м. Комната-15,3 кв.м. Кухня -12,0 кв.м. Коридор - 9,4 кв.м.(теплый пол с электроподогревом). Ванная комната -3,0 кв.м(теплый пол с электроподогревом). Сан. узел -1,5 кв.м.(теплый пол с электроподогревом). Лоджия – 5,1 кв.м.(теплый пол электр.)– ваша личная терраса для утреннего кофе . - О ДОМЕ - Современный дом 2017 года постройки–это воплощение комфорта и заботы о жителях. Бесступенчатый вход в парадную с одной стороны дома – удобство для всех, от маломобильных граждан до родителей с колясками и любителей велосипедных прогулок.Придомовая территория ухожена , парадные  чистые. Грузовой лифт – ваш надежный помощник. - Инфраструктура - Дом расположен в развитом районе. Все необходимое для комфортной жизни – в шаговой доступности: сетевые магазины, аптеки, уютные кафе-пекарни, салоны красоты, пункты выдачи интернет-магазинов, поликлиника, школы и детские сады. Во дворе дома детская и спортивная площадки, где ваши дети смогут весело проводить время. В 5 минутах пешком от дома живописная набережная озера Разлив, пляж `Белая горка`. Рядом раскинулся парк с прогулочными зонами и величественными соснами, наполняющими воздух целебным ароматом. - Транспортная доступность - Прекрасная транспортная доступность – еще одно преимущество этого места. До железнодорожной станции – всего 50 метров, до остановки общественного транспорта – 100 метров. До метро ` Беговая` можно добраться на транспорте за 20-25 минут. В собственности более 5 лет. Полная стоимость в договоре купли-продажи. Встречная покупка.
Цена
19 900 000 ₽

Закажите консультацию специалиста

Оставьте заявку
Нажимая на кнопку «Отправить заявку», Вы даете согласие на обработку своих персональных данных.
×
продажа
Что вы хотите продать?
Сколько комнат?
Тип объекта?
В каком регионе?
В каком районе Санкт-Петербурга
В каком районе Ленинградской области?

Оставьте Ваш контакт и наши специалисты свяжутся с Вами в самые кротчайшие сроки.

+7
×
новостройка
Какие районы Санкт-Петербурга Вас интересуют?
С какой целью Вы планируете приобрести квартиру?
Сколько комнат должно быть в Вашей будущей квартире?
Какой вариант отделки Вам необходим?
Когда Вы хотите заехать?
В какой бюджет хотите уложиться?

Оставьте Ваш контакт и получите подборку квартир без риска столкнуться с мошенничеством и недостроем.

+7
×
сдать
Что вы хотите сдать?
Скольки комнатная квартира?
Какой тип коммерческой недвижимости вы хотите сдать?
В каком регионе?
В каком районе Санкт-Петербурга
В каком районе Ленинградской области?

Оставьте Ваш контакт и наши специалисты свяжутся с Вами в самые кротчайшие сроки.

+7

Продажа квартир и комнат на вторично рынке жилья.

Чтобы купить квартиру в СПб или найти подходящий вариант продажи квартиры в Петербурге на вторичном рынке жилья, требуется потратить много времени и усилий. Квартира или комната в центре Петербурга может быть существенно дороже, чем идентичная по площади в спальном районе. В первую очередь при покупке квартиры в Петербурге надо определиться с ценовой категорией, чтобы затем сосредоточиться на качестве предлагаемого жилья. Чем выше класс недвижимости, тем больше её стоимость. На сайте компании «Русский Фонд Недвижимости» вы найдете все виды вторичного жилья, от дешевых комнат и доступных квартир до элитных квартир в центре города.


Преимущества покупки квартиры на вторичном рынке:

Покупка квартиры или комнаты на вторичном рынке является самым распространенным видом сделок с недвижимостью. Очевидным преимуществом покупки квартиры на вторичном рынке по сравнению с первичным, является то, что эта недвижимость уже существует. Жилье можно посмотреть, оценить плюсы и минусы. Также, преимуществом этого сегмента является большое  разнообразие предложений: широкий выбор по типам домов, годам постройки, расположению. На вторичном рынке можно выбрать квартиру на любой вкус или соответственно финансовой возможности.


Преимущества сотрудничества с «Русским Фондом Недвижимости».

Позвоните нам и убедитесь, что купить квартиру в Петербурге можно  легко, доступно и комфортно! «Русский Фонд Недвижимости» имеет более двух десятков представительств в Санкт-Петербурге и Ленинградской области. Специалисты нашей компании обладают высокой квалификацией, подтверждённой соответствующими сертификатами, и уникальным опытом работы на рынке недвижимости.

  У нас работают только профессионалы,
  Есть  доступ к профессиональным базам данных по недвижимости
Мы проверяем всю документацию, связанную со сделкой купли-продажи

Мы оказываем следующие услуги при операциях с недвижимостью:

  Подбор вариантов и покупка квартиры или комнаты.
  Прямая продажа квартиры  или продажа с встречной покупкой
  Продажа и покупка квартир класса «бизнес», «элита» и «премиум»
  Полное сопровождение сделки:
  Экспертная оценка рыночной стоимости квартиры
  Проверка «чистоты» истории квартиры
  Помощь в оформлении документов
  Консультации по ипотеке и содействие в получение кредита
  Помощь в приватизации
  Расселение коммунальных квартир


Как правильно выбрать квартиру на вторичном рынке.

Рынок вторичной недвижимости часто таит в себе опасности. Купив квартиру, до сих пор можно столкнуться с ситуацией, что на приобретенной жилплощади окажутся приписанными несовершеннолетние дети или недееспособные граждане. Чтобы не оказаться жертвой мошенников, и избежать других проблем и неоправданных затрат времени, следует воспользоваться услугами профессионального риэлторского агентства, такого как, например, «Русский Фонд Недвижимости». Специалисты компании помогут подобрать подходящий вариант и будут сопровождать сделку на всех этапах.

Этот сайт использует файлы cookie для улучшения пользовательского опыта. Cookie - это небольшие текстовые файлы, которые сохраняются на вашем устройстве и помогают нам запоминать ваши предпочтения, анализировать посещаемость сайта и предоставлять более персонализированный контент. Использование файлов cookie позволяет нам сделать сайт удобнее для вас. Политика конфиденциальности
Принять Отказаться