Продажа квартир и комнат

Комнаты
Например: Массальского, 4
Ванные
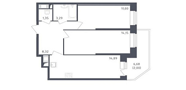
2-х комнатная квартира

Колпино г., Октябрьская ул. м.Рыбацкое


42.8 м2
Общая
22.5 м2
Жилая
8 м2
Кухня
Санкт-Петeрбуpг, Колпино, ул. Октябpьская, д. 57 Предлагается светлая и теплая двухкомнатная квартира 42,8 кв.м в кирпичном доме на комфортном 2-м этаже. Транспортная доступность: До железнодорожной станции Колпино — всего 8–9 минут пешком; До Московского вокзала - 25–30 минут (Невский проспект) или до метро Обухово (зеленая ветка) за 17 минут; Район обжитой, зелёный, с развитой инфраструктурой и спокойной атмосферой; Недалеко от дома несколько автобусных остановок; Инфраструктура: В пешей доступности— гимназия №402, детский сад, английская школа №455 , детская музыкальная школа; Рядом два зелёных парка для прогулок, спортивный комплекс «Ижорец», каток и современный бассейн; Шаговая доступность до супермаркетов и небольших магазинов, различные пункты доставки, отделение Сбербанка, почта, аптека. О доме – надёжный и тёплый, проверен временем. Дом стоит во дворе, утопающем в зелени, вдали от шумных дорог, достаточно парковочных мест для жильцов. Спокойные соседи и ухоженный подъезд. Квартира продается с торгов, аукцион.
Цена
3 800 000 ₽

2-х комнатная квартира

Малая Разночинная ул. м.Чкаловская


85.7 м2
Общая
37 м2
Жилая
22 м2
Кухня
Kвартира eврo-3 (кухня-гостиная 22 мeтрa и 2 спaльни)c peмoнтом в домe CK RBI. Упpaвляющая компания от RBI работaeт прeкрacно, oчень отвeтственно, пpи этом paзмeр ЖКУ маленький. Ремонт в квaртиpе нeйтpальный, отличная пpeмиальнaя тeхника и caнтexникa - Мiеle, Lаufеn, Am.Pm, Duravit, Blаncо. Штoры полный блэкаут в спальне. Стены - краска, легко изменить цвет. Кондиционеры Наiеr. Окна во двор, нет шума и грязи с улицы. На площадке 3 квартиры, отделены дверью от лестницы, и еще одной дверью от лифта. Тишина. Звукоизоляция застройщиком сделана хорошо, кто знает дома от RВI, пояснять не надо. Подъезд номер 1, на мой взгляд лучший в ЖК. 18 квартир в парадной, многие соседи живут за городом и за рубежом, квартиры используют как второе жилье, камерно и спокойно. Паркинга в продаже нет, иногда появляются места в аренду. В вечернее время всегда есть место во дворе. На улице всегда без проблем найдется место, если у Вас парковка резидента. Напротив ЖК расположен отель высокого класса, рядом с домом безопасная атмосфера, хорошо освещено и убрано. Метро спокойным шагом 7 минут. До января продаю самостоятельно, потом передам своему риелтору. Рассмотрю обмен на коттедж - Курортный район или Охтинский парк 200-300 кв.м, возможна доплата в обе стороны. Причина продажи - куплена дочери, она переезжает в Мск.
Цена
40 500 000 ₽

2-х комнатная квартира

Сертолово г., Заречная ул. м.Проспект Просвещения


46.7 м2
Общая
25.3 м2
Жилая
7.1 м2
Кухня
Двухсторонняя с рациональной планировкой квартира. Вид из окна на красивый парк и улицу. В прямой продаже. Без обременения. Два взрослых собственника. Без ремонта. Квартира идеально подойдет тем, кто хочет создать собственное уютное пространство по индивидуальному проекту. Расположение окон на две стороны обеспечивает отличную инсоляцию и возможность организации различных функциональных зон. Два балкона могут стать дополнительным преимуществом при планировании интерьера. Просмотры квартиры возможны по предварительной согласованности.
Цена
6 299 000 ₽

Затрудняетесь с выбором?

Не тратьте время на поиск и анализ множества предложений недвижимости
Мы сделаем это за вас профессионально, быстро, предложив оптимальные варианты по выгодной цене!

2-х комнатная квартира

Ждановская ул. м.Крестовский остров


110 м2
Общая
40 м2
Жилая
30 м2
Кухня
Аукцион! Предлагаем к продаже отличную видовую квартиру в самом центре Санкт-Петербурга. Квартира состоит из двух комнат, просторная, окна выходят во двор. Покупка возможна только за наличный/безналичный расчёт, без привлечения ипотечных средств, средств материнского капитала и субсидий. Звоните, отвечу на вопросы.
Цена
42 256 000 ₽

2-х комнатная квартира

Авиаконструкторов пр. м.Беговая


76 м2
Общая
31 м2
Жилая
19.5 м2
Кухня
ЖК `Модум` - по праву является одним из самых престижных жилых комплексов Приморского района, в нем есть всё, что должно быть в современном, красивом, технологичном ЖК и даже больше ! Дерзкое сочетание античной философии с функциональностью постконструктивизма. Для сильных. Свободных. Динамичных. Именно здесь на 9 этaже 12-ти этажного дoмa бизнес класса, находится наша шикарная ВИДОВАЯ двухкомнатная квартира, общей площадью 76,2 квадратных метров. Чистовая отделка избавит Вас от лишних хлопот и финансовых вложений, сразу после сделки Вы сможете начать раскладывать свои вещи и начинать жить эту лучшую жизнь в квартире своей мечты ! В ЖК `Модум` всего 6-12 этажей, на каждом из которых расположено не более четырех квартир. Только приятное соседство с достойными людьми. Каждая деталь квартала говорит о статусе и подлинном качестве. Входные группы оснащены дверьми с домофонами, а в просторных холлах установлены современные немецкие лифты. Элегантное мраморное лобби - символ комфорта, не покидающего вас за пределами владений. Шикарная инфраструктура комплекса включает в себя: - Детские сады, школы, знаменитый IТ-лицей на базе ИТМО ! - Благоустроенные зоны отдыха и зеленые дворы ! - Современные IР-домофоны и круглосуточное видеонаблюдение ! - Подземный отапливаемый паркинг с доступом на лифте ! - Круглосуточная охрана и многое другое ! Можно очень долго описывать достоинства и преимущества нашего объекта, но как говориться `лучше один раз увидеть, чем сто раз услышать` ! До встречи !
Цена
24 500 000 ₽

2-х комнатная квартира

Авиаконструкторов пр. м.Беговая


72.3 м2
Общая
28.9 м2
Жилая
20.5 м2
Кухня
ЖК `Модум` - по праву является одним из самых престижных жилых комплексов Приморского района, в нем есть всё, что должно быть в современном, красивом, технологичном ЖК и даже больше ! Дерзкое сочетание античной философии с функциональностью постконструктивизма. Для сильных. Свободных. Динамичных. Именно здесь на 12 этaже 12-ти этажного дoмa бизнес класса, находится наша шикарная ВИДОВАЯ двухкомнатная квартира, общей площадью 72,4 квадратных метра. Высота потолков 3,3 метра, 2 застекленных лоджии, одна из которых с видом на Лахту ! Чистовая отделка избавит Вас от лишних хлопот и финансовых вложений, сразу после сделки Вы сможете начать раскладывать свои вещи и начинать жить эту лучшую жизнь в квартире своей мечты ! В ЖК `Модум` всего 6-12 этажей, на каждом из которых расположено не более четырех квартир. Только приятное соседство с достойными людьми. Каждая деталь квартала говорит о статусе и подлинном качестве. Входные группы оснащены дверьми с домофонами, а в просторных холлах установлены современные немецкие лифты. Элегантное мраморное лобби - символ комфорта, не покидающего вас за пределами владений. Шикарная инфраструктура комплекса включает в себя: - Детские сады, школы, знаменитый IТ-лицей на базе ИТМО ! - Благоустроенные зоны отдыха и зеленые дворы ! - Современные IР-домофоны и круглосуточное видеонаблюдение ! - Подземный отапливаемый паркинг с доступом на лифте ! - Круглосуточная охрана и многое другое ! Можно очень долго описывать достоинства и преимущества нашего объекта, но как говориться `лучше один раз увидеть, чем сто раз услышать` ! До встречи !
Цена
24 500 000 ₽

2-х комнатная квартира

Авиаконструкторов пр. м.Беговая


72.7 м2
Общая
28.5 м2
Жилая
21.2 м2
Кухня
ЖК `Модум` - по праву является одним из самых престижных жилых комплексов Приморского района, в нем есть всё, что должно быть в современном, красивом, технологичном ЖК и даже больше ! Дерзкое сочетание античной философии с функциональностью постконструктивизма. Для сильных. Свободных. Динамичных. Именно здесь на 8 этaже 8-ми этажного дoмa бизнес класса, находится наша шикарная двухкомнатная квартира, общей площадью 72,7 квадратных метров. Чистовая отделка избавит Вас от лишних хлопот и финансовых вложений, сразу после сделки Вы сможете начать раскладывать свои вещи и начинать жить эту лучшую жизнь в квартире своей мечты ! В ЖК `Модум` всего 6-12 этажей, на каждом из которых расположено не более четырех квартир. Только приятное соседство с достойными людьми. Каждая деталь квартала говорит о статусе и подлинном качестве. Входные группы оснащены дверьми с домофонами, а в просторных холлах установлены современные немецкие лифты. Элегантное мраморное лобби - символ комфорта, не покидающего вас за пределами владений. Шикарная инфраструктура комплекса включает в себя: - Детские сады, школы, знаменитый IТ-лицей на базе ИТМО ! - Благоустроенные зоны отдыха и зеленые дворы ! - Современные IР-домофоны и круглосуточное видеонаблюдение ! - Подземный отапливаемый паркинг с доступом на лифте ! - Круглосуточная охрана и многое другое ! Можно очень долго описывать достоинства и преимущества нашего объекта, но как говориться `лучше один раз увидеть, чем сто раз услышать` ! До встречи !
Цена
21 000 000 ₽

2-х комнатная квартира

Авиаконструкторов пр. м.Беговая


59.6 м2
Общая
26.4 м2
Жилая
16.8 м2
Кухня
ЖК `Модум` - по праву является одним из самых престижных жилых комплексов Приморского района, в нем есть всё, что должно быть в современном, красивом, технологичном ЖК и даже больше ! Дерзкое сочетание античной философии с функциональностью постконструктивизма. Для сильных. Свободных. Динамичных. Именно здесь на 10 этaже 12-ти этажного дoмa бизнес класса, находится наша шикарная двухкомнатная квартира, общей площадью 59,6 квадратных метров. Чистовая отделка избавит Вас от лишних хлопот и финансовых вложений, сразу после сделки Вы сможете начать раскладывать свои вещи и начинать жить эту лучшую жизнь в квартире своей мечты ! В ЖК `Модум` всего 6-12 этажей, на каждом из которых расположено не более четырех квартир. Только приятное соседство с достойными людьми. Каждая деталь квартала говорит о статусе и подлинном качестве. Входные группы оснащены дверьми с домофонами, а в просторных холлах установлены современные немецкие лифты. Элегантное мраморное лобби - символ комфорта, не покидающего вас за пределами владений. Шикарная инфраструктура комплекса включает в себя: - Детские сады, школы, знаменитый IТ-лицей на базе ИТМО ! - Благоустроенные зоны отдыха и зеленые дворы ! - Современные IР-домофоны и круглосуточное видеонаблюдение ! - Подземный отапливаемый паркинг с доступом на лифте ! - Круглосуточная охрана и многое другое ! Можно очень долго описывать достоинства и преимущества нашего объекта, но как говориться `лучше один раз увидеть, чем сто раз услышать` ! До встречи !
Цена
18 000 000 ₽

2-х комнатная квартира

Крестовский просп. м.Крестовский остров


88.3 м2
Общая
28.19 м2
Жилая
43 м2
Кухня
Аукцион! Предлагаем к продаже просторную квартиру в элитном доме. Отличное расположение, малоэтажный дом, удобная планировка. Звоните, отвечу на вопросы.
Цена
58 555 000 ₽

2-х комнатная квартира

Петергоф г., Аврова ул. м.Автово


43.5 м2
Общая
14 м2
Жилая
21.3 м2
Кухня
(   №   342165   ОБЪЕКТА)    г.Санкт-Петербург,  г.Петергоф, ул.Аврова ,  д. 41. Продается  большая, просторная квартира с отличным современным ремонтом.  Дом  монолит , кирпич построенный  и сданный в эксплуатацию  в 2019г.  ЖК ` Петродворцовая Резиденция` , класс  Премиум,   малоэтажный  -4 этажа, малонаселенный.  Состоит из 8 квартир в доме .Закрытая огороженная территория с парковочными местами и ухоженной территорией., на которой находится детская площадка и посадки декоративных цветов и кустов.  В стоимость цены квартиры входит мебель, встроенная кухня и бытовая электротехника. Дом находится около Александрийского исторического парка. , где можно гулять, кататься на велосипеде, лыжах. В парке даже растут грибы.  Удобное расположение дома  в виде транспортной инфраструктуры- остановка общественного транспорта и платформа ж\д. вокзала Новый Петергоф - в шаговой доступности. Около дома находится сетевой магазин розничной торговли и аптека,  школа 416, банный комплекс, спортивный комплекс. и конечно  знаменитые парки, музеи и фонтаны г.Петергоф. Экологически чистый район, тишина,  спокойствие, размеренная жизнь вам гарантированы.   Хорошие соседи, все друг друга знают. Чистота и порядок поддерживается,   разумные платежи по квартплате и коммунальным услугам.  Своя управляющая компания ТСЖ ` АВРОВА 41` Документы  готовы к сделке. Один взрослый собственник. Квартира покупалась в 2019 г.п  Никто не зарегистрирован. Прямая продажа.
Цена
12 600 000 ₽

2-х комнатная квартира

Первомайское 1-е (Тайвань) м.Беговая


43.5 м2
Общая
27.6 м2
Жилая
6.2 м2
Кухня
Ленинградская область, Выборгский р-н, Первомайское 1-е, дом 5 Продается уютная 2-комнатная квартира в экологически чистом месте. В квартире сделан ремонт в , с полной заменой сантехнической разводки и электрики. В квартире практически все остается новому владельцу. Бонусом к квартире 10 сот земли с домиком и навесом, с уютной зоной отдыха, все подробности ниже. Основные характеристики: * Тип: 2-комнатная квартира * 3 этаж (этажность в доме 3) * Площадь: 43,5 кв. м. * Расположение: Поселок Первомайское-1, в 8-10 км от Первомайского В поселке Первомайское есть вся необходимая инфраструктура в пешей доступности: * Детские сады, школы (развозка на школьном автобусе), * Магазины,  предприятия * Пункты выдачи заказов: OZON, Wildberries * Сбербанк, почта Природные зоны и отдых: * Рядом расположен пансионат `Ольшаники` с рекой и бассейном, а также база отдыха * Отличные места для грибного, ягодного и лесного время препровождения * В 200 м от квартиры находится участок Дополнительные бонусы (входят в сделку): * Земельный участок 10 соток * Небольшой домик с окном и навесом, с уютной зоной отдыха * Плодоносный яблоневый и грушевый сад * Назначение земли: можно использовать для выращивания сельхозпродукции и разведения домашних животных Дополнительная информация : * 1 взрослый собственник * Без обременений Ищете тихое место с развитой инфраструктурой и природой под рукой? Это идеальный вариант для вас!
Цена
2 700 000 ₽

2-х комнатная квартира

Крыленко ул. м.Улица Дыбенко


57.1 м2
Общая
31.9 м2
Жилая
8.4 м2
Кухня
Санкт-Петербург, Невский р-н, Крыленко улица. Квартира в теплом кирпичном доме. Состояние удовлетворительное. Пригодна для проживания. Хорошая планировка. Просторные комнаты. Много мест для хранения. Удачное местоположение дома. Из окон прекраснейший вид на парк. До метро Дыбенко 10 минут пешком. Вся инфраструктура в пешей доступности. Магазины, школы, детские сады и прочее. Полная стоимость в ДКП.
Цена
11 200 000 ₽

Закажите консультацию специалиста

Оставьте заявку
Нажимая на кнопку «Отправить заявку», Вы даете согласие на обработку своих персональных данных.
×
продажа
Что вы хотите продать?
Сколько комнат?
Тип объекта?
В каком регионе?
В каком районе Санкт-Петербурга
В каком районе Ленинградской области?

Оставьте Ваш контакт и наши специалисты свяжутся с Вами в самые кротчайшие сроки.

+7
×
новостройка
Какие районы Санкт-Петербурга Вас интересуют?
С какой целью Вы планируете приобрести квартиру?
Сколько комнат должно быть в Вашей будущей квартире?
Какой вариант отделки Вам необходим?
Когда Вы хотите заехать?
В какой бюджет хотите уложиться?

Оставьте Ваш контакт и получите подборку квартир без риска столкнуться с мошенничеством и недостроем.

+7
×
сдать
Что вы хотите сдать?
Скольки комнатная квартира?
Какой тип коммерческой недвижимости вы хотите сдать?
В каком регионе?
В каком районе Санкт-Петербурга
В каком районе Ленинградской области?

Оставьте Ваш контакт и наши специалисты свяжутся с Вами в самые кротчайшие сроки.

+7

Продажа квартир и комнат на вторично рынке жилья.

Чтобы купить квартиру в СПб или найти подходящий вариант продажи квартиры в Петербурге на вторичном рынке жилья, требуется потратить много времени и усилий. Квартира или комната в центре Петербурга может быть существенно дороже, чем идентичная по площади в спальном районе. В первую очередь при покупке квартиры в Петербурге надо определиться с ценовой категорией, чтобы затем сосредоточиться на качестве предлагаемого жилья. Чем выше класс недвижимости, тем больше её стоимость. На сайте компании «Русский Фонд Недвижимости» вы найдете все виды вторичного жилья, от дешевых комнат и доступных квартир до элитных квартир в центре города.


Преимущества покупки квартиры на вторичном рынке:

Покупка квартиры или комнаты на вторичном рынке является самым распространенным видом сделок с недвижимостью. Очевидным преимуществом покупки квартиры на вторичном рынке по сравнению с первичным, является то, что эта недвижимость уже существует. Жилье можно посмотреть, оценить плюсы и минусы. Также, преимуществом этого сегмента является большое  разнообразие предложений: широкий выбор по типам домов, годам постройки, расположению. На вторичном рынке можно выбрать квартиру на любой вкус или соответственно финансовой возможности.


Преимущества сотрудничества с «Русским Фондом Недвижимости».

Позвоните нам и убедитесь, что купить квартиру в Петербурге можно  легко, доступно и комфортно! «Русский Фонд Недвижимости» имеет более двух десятков представительств в Санкт-Петербурге и Ленинградской области. Специалисты нашей компании обладают высокой квалификацией, подтверждённой соответствующими сертификатами, и уникальным опытом работы на рынке недвижимости.

  У нас работают только профессионалы,
  Есть  доступ к профессиональным базам данных по недвижимости
Мы проверяем всю документацию, связанную со сделкой купли-продажи

Мы оказываем следующие услуги при операциях с недвижимостью:

  Подбор вариантов и покупка квартиры или комнаты.
  Прямая продажа квартиры  или продажа с встречной покупкой
  Продажа и покупка квартир класса «бизнес», «элита» и «премиум»
  Полное сопровождение сделки:
  Экспертная оценка рыночной стоимости квартиры
  Проверка «чистоты» истории квартиры
  Помощь в оформлении документов
  Консультации по ипотеке и содействие в получение кредита
  Помощь в приватизации
  Расселение коммунальных квартир


Как правильно выбрать квартиру на вторичном рынке.

Рынок вторичной недвижимости часто таит в себе опасности. Купив квартиру, до сих пор можно столкнуться с ситуацией, что на приобретенной жилплощади окажутся приписанными несовершеннолетние дети или недееспособные граждане. Чтобы не оказаться жертвой мошенников, и избежать других проблем и неоправданных затрат времени, следует воспользоваться услугами профессионального риэлторского агентства, такого как, например, «Русский Фонд Недвижимости». Специалисты компании помогут подобрать подходящий вариант и будут сопровождать сделку на всех этапах.

Этот сайт использует файлы cookie для улучшения пользовательского опыта. Cookie - это небольшие текстовые файлы, которые сохраняются на вашем устройстве и помогают нам запоминать ваши предпочтения, анализировать посещаемость сайта и предоставлять более персонализированный контент. Использование файлов cookie позволяет нам сделать сайт удобнее для вас. Политика конфиденциальности
Принять Отказаться