Продажа квартир и комнат

Комнаты
Например: Массальского, 4
Ванные
3-х комнатная квартира

Большая Ижора пос., Астанина ул. м.Кировский завод


60 м2
Общая
40 м2
Жилая
9 м2
Кухня
Ленинградская область, Ломоносовский р-н, пгт. Большая Ижора, ул. Астанина, д. 13.    Продается светлая и чистая квартира со смежно-изолированными комнатами. Дом кирпичный и теплый, расположен в тихом районе поселка, вокруг много зелени. Квартира в хорошем состоянии, установлены стеклопакеты и современные радиаторы. Встроенная кухня остается в подарок новому собственнику. Чистый подъезд, доброжелательные соседи. Рядом с домом всегда найдете место для парковки.    Отличное место как для постоянного проживания, так и хорошая альтернатива дачи. Большая Ижора – прибрежный посёлок, расположенный на красивейшем южном берегу Финского залива, прямо под боком у Петербурга. В шаговой доступности прекрасный песчаный пляж, где можно приятно отдохнуть душой и телом. Это живописный природный уголок с сосновым лесом и свежим воздухом для проведения досуга на выходных и в отпуске.    Удобное расположение, рядом все необходимое для комфортной жизни - сетевые магазины, д/садик, школа, Сбербанк. В 5 мин. автобусная остановка, маршрутки ходят до м. Автово и Купчино, так же рядом ж/д станция, электрички ходят до Балтийского вокзала. КАД в 10 мин.    Просмотры по договоренности. Документы к продаже готовы. Один совершеннолетний собственник, зарегистрированных нет, обременений нет. Прямая продажа, что важно. Принимаем любые формы оплаты. Помощь в оформлении ипотеки. Уместен разумный торг после просмотра.
Цена
5 400 000 ₽

3-х комнатная квартира

Оржицы дер. м.Проспект Ветеранов


62.1 м2
Общая
45.4 м2
Жилая
5.5 м2
Кухня
Лен.область, Ломоносовский район,деревня Оржицы д.25. Продается трехкомнатная квартира . Дом панельный, 2 этаж. Все комнаты изолированные, туалет с ванной раздельно, балкон. Удобная планировка, рядом школа,садик, Дом культуры- множество секций, почта, все магазины 5 минут от дома.Квартира в прямой продаже.
Цена
4 500 000 ₽

3-х комнатная квартира

Шушары пос., Ростовская (Славянка) ул.


77.5 м2
Общая
46.8 м2
Жилая
10.9 м2
Кухня
Предлагаем к продаже отличную квартиру в экологично благоприятном районе Санкт-Петербурга. Уютная, просторная (площадь приведена без учёта лоджии), двусторонняя, расположена в середине дома. Комфортный 6 этаж, хорошие соседи, однородная социальная среда, в основном военные. В квартире выполнен качественный ремонт, всё сделано с любовью, для себя, без экономии на материалах. Окна квартир не упираются в соседний дом, отличная перспектива и много света! Развитая инфраструктура района: школы, детские сады, поликлиника, магазины, кафе, пекарни, спортивные комплексы, бассейн, большой торговый комплекс и многое другое. Поблизости расположена остановка общественного транспорта, транспортная доступность становится всё более привлекательной: утверждена и опробована скоростная трамвайная сеть до нескольких ближайших станций метро. Буквально в нескольких минутах езды дворцы и парки Пушкина, неподалёку Гатчина, Красное Село, Петергоф, горнолыжный курорт Туутари-парк. Один взрослый собственник, без обременений, никто не зарегистрирован. Звоните, отвечу на вопросы, договоримся о просмотре, поможем с ипотекой.
Цена
13 500 000 ₽

Затрудняетесь с выбором?

Не тратьте время на поиск и анализ множества предложений недвижимости
Мы сделаем это за вас профессионально, быстро, предложив оптимальные варианты по выгодной цене!

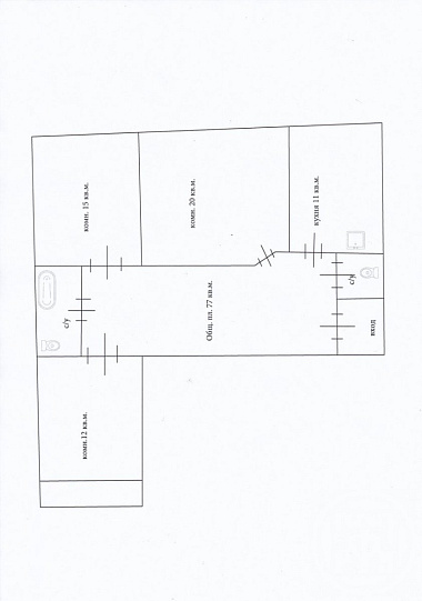
3-х комнатная квартира

Рощино пос., Садовая ул. м.Беговая


77 м2
Общая
47 м2
Жилая
11 м2
Кухня
Продается  3 квартира   в  Рощино  на ул Садовая д 4. Квартира  расположена на 3 этаже  5 эт кирпичного  дома  2006 г  постройки.   Квартира  площадью 77кв м   светлая ,просторная,  двухсторонняя с  двумя   санузлами.     В квартире  хороший  современный   ремонт , качественная  бытовая  техника   мебель.    Утепленная лоджия из  спальни.     Парадные  чистые,  просторные,  соседи  проживают  постоянно. В доме   расположены маркетплейсы, аптека. парикмахерская .уютные магазинчики. Во дворе    детская площадка,  есть места  для машин.  Рядом  школа, детский  сад,  магазины, аптеки.   В пешей доступности  песчаный пляж ,ж/д вокзал и остановка общественного  транспорта. Документы готовы!  обременений нет.
Цена
12 400 000 ₽

3-х комнатная квартира

Романовка пос. м.Ладожская


65.7 м2
Общая
45.7 м2
Жилая
9.8 м2
Кухня
Квартира во Всеволожском районе, п.Романовка, 14 км Дороги Жизни. Техкомнатная квартира общей площадью 65,7 м., просторная кухня- 9,8 м, жилая площадь- 45,7 м. Квартира требует ремонта. Один совершеннолетний собственник. Прямая продажа! Обременений и долгов нет! Быстрый выход на сделку! Документы готовы. Рассматриваем любую форму оплаты: ипотека, субсидия и тд.
Цена
5 500 000 ₽

3-х комнатная квартира

Елизаветино пос., Дружбы пл. м.Проспект Ветеранов


57.6 м2
Общая
46 м2
Жилая
6.9 м2
Кухня
Трёхкомнатная квартира в посёлке Елизаветино: комфорт и удобство в Ленинградской области Предлагаем вам прекрасную возможность стать обладателем уютной трёхкомнатной квартиры в посёлке Елизаветино, расположенном вблизи города Гатчины. Это место, где вы сможете наслаждаться спокойствием и красотой природы, не отказывая себе в комфорте городской жизни. Состояние квартиры: Хорошее состояние, требующее незначительного ремонта. Санузел и кухня отделаны кафелем. В комнатах линолеум. Есть большой балкон, который можно использовать по своему усмотрению. Инфраструктура посёлка: Всё необходимое для комфортной жизни: детский сад, школа и другие социальные объекты. Удобное автобусное и железнодорожное сообщение с Гатчиной и Санкт-Петербургом. За час на электричке вы окажетесь в центре Санкт-Петербурга. Автобусное сообщение с Гатчиной ходит каждые 20–30 минут, дорога займёт всего полчаса. Природные красоты: Рядом с посёлком есть прекрасные места для отдыха и купания: «Борницкие карьеры». В 15 минутах на автомобиле находится исток реки Оредеж. Пруд «Кюрлевский карьер» с голубой водой и белыми берегами станет идеальным местом для отдыха на природе. Не упустите свой шанс стать обладателем уютной квартиры в живописном месте Ленинградской области. Свяжитесь с нами сегодня, чтобы узнать больше о покупке или аренде этой замечательной квартиры.
Цена
3 200 000 ₽

3-х комнатная квартира

Луга г., Кирова просп.


71.9 м2
Общая
42.1 м2
Жилая
8.6 м2
Кухня
Продается трехкомнатная квартира в Луге на проспекте Кирова 22 к 2 Площадь квартиры 71,9 кв.м., кухня 8,6 кв.м. Дом панельный 1991 года постройки 4 этаж пятиэтажного дома Санузел раздельный, есть лоджия Вид из окон во двор Коммуникации: Горячее и холодное водоснабжение Газоснабжение Хорошее месторасположение, центр города, так же недалеко река Луга и зоны отдыха с барбекю на берегу, сосновый бор Рядом вся необходимая инфраструктура, детские сады, школы, магазины, пункты выдачи онлайн заказов, спорт залы и тд. Тихие и приличные соседи. Документы готовы к продажи, быстрый выход на сделку, юридическое сопровождение.
Цена
6 390 000 ₽

3-х комнатная квартира

Купчинская ул. м.Купчино


62.2 м2
Общая
39.4 м2
Жилая
9.4 м2
Кухня
Санкт-Петербург, Фрунзенский район, улица Купчинская, д.33 литера А М `Купчино` - 1,35 км М `Дунайская` - 2,08 км М Звездная` - 3,4 км Для вас есть хорошее предложение: трёхкомнатная квартира в 10 мин ходьбы  от  метро `Купчино` с чистой историей. Первый собственник квартиры!  Квартира двухсторонняя с удобной планировкой,  окна двух комнат и кухни смотрят в зеленый двор,  окно и балкон третьей комнаты  -  на тихую  улицу. В квартире заменены все трубы включая канализацию. В двух комнатах паркет из красного дерева, а в  гостиной и коридоре  на полу дубовый паркет.В квартире деревянные двойные окна , балкон застеклен . В начале февраля 2025 года  поменяна газовая плита с газ контролем и газовый счетчик.   ИНФРАСТРУКТУРА: район с отлично развитой инфраструктурой, во дворе находится Средняя общеобразовательная школа № 312 с углубленным изучением французского языка, большое разнообразие различных магазинов, поликлиника и многое другое. Много зелени, есть где погулять с детьми или своими питомцами. ТРАНСПОРТНАЯ ДОСТУПНОСТЬ: много общественного транспорта, что позволяет быстро доехать до центра города, а за 10 минут спокойно дойти до станции метро `Купчино`. Собственность более 35 лет . Делайте свой выбор и приходить посмотреть нашу квартиру! Ждем вас на просмотр! До скорых встреч!
Цена
8 950 000 ₽

3-х комнатная квартира

Волосово г., Федора Афанасьева ул. м.Проспект Ветеранов


72 м2
Общая
43.8 м2
Жилая
8.5 м2
Кухня
Ленинградская область г. Волосово ул. Федора Афанасьева д. 14 Добро пожаловать в новый дом вашей мечты! Представляем вам просторную трехкомнатную квартиру на последнем этаже, которая подарит вам ощущение свободы и уединенности. Живописные виды: В этой квартире каждый день начинается с завораживающего вида из окон. Птицы парят в небе, а город под ногами открывает свои секреты. Уют и комфорт: Пространство квартиры продумано до мелочей. Изолированные комнаты обеспечивают личное пространство для каждого члена семьи, а большая кухня — это идеальное место для семейных ужинов и вечеров встреч с друзьями. Застекленная лоджия приглашает наслаждаться теплыми летними вечерами и уютными зимними днями с чашкой горячего чая. Удобство хранений: Комфортная гардеробная станет вашим надежным хранителем всех модных коллекций, а также поможет сохранить порядок и гармонию в доме. Центр жизненной активности: Развитая инфраструктура района позаботится о каждом аспекте вашей жизни. Магазины, школы, медицинские учреждения — все находится в непосредственной близости. Легкость передвижения: Хорошая транспортная доступность позволяет быстро добираться до центра, при этом оставаясь в спокойствии и уюте своего дома. Юридическая чистота: Один взрослый собственник, который более пяти лет заботился о вашем будущем жилище, сделает покупку квартиры для вас абсолютно безопасной и стабильной. Эта квартира — ваш шанс обрести комфортное жилье, где каждый день приносит удовольствие и радость. Не упустите возможность изменить свою жизнь к лучшему. Свяжитесь с нами, чтобы назначить просмотр, и откройте новую страницу вашего семейного счастья!
Цена
6 100 000 ₽

3-х комнатная квартира

Просвещения просп. м.Гражданский проспект


57.7 м2
Общая
22 м2
Жилая
21.5 м2
Кухня
Представляем вашему вниманию уютную квартиру в кирпичном доме, расположенную всего в паре минут от станции метро «Гражданский проспект». В квартире выполнен качественный ремонт: заменены проводка, сантехнические трубы, а также установлены новые радиаторы и стеклопакеты. Кроме того, была произведена перепланировка: увеличена площадь одной из комнат, а вторая была объединена с кухней, что позволило визуально расширить пространство. Третья комната осталась в своем первоначальном виде, из нее есть выход на балкон, окна которого выходят на проспект Просвещения и открывают вид на метро. Благодаря хорошей шумоизоляции, шум от дороги не будет беспокоить вас. Планировка квартиры двусторонняя, окна также выходят во двор, откуда открывается вид на детский сад. Пол в жилых помещениях покрыт ламинатом, а на кухне-гостиной, в коридоре, санузле и на балконе уложена плитка. Так как дом кирпичный, здесь предусмотрена хорошая теплоизоляция, что гарантирует вам комфорт как зимой, так и летом. Еще одним преимуществом является шумоизоляция, что позволит новым владельцам наслаждаться тишиной и спокойствием. Первый этаж дома занят коммерческими помещениями. Вся мебель и техника остаются новым владельцам, что дает возможность сразу же заехать и жить в комфортных условиях. Большим преимуществом является транспортная доступность. Метро находится всего в трех минутах от дома, а рядом расположены остановки наземного транспорта, откуда легко добраться до синей ветки метро — станции «Проспект Просвещения». Также недалеко расположена железнодорожная станция «Новая Охта», откуда отправляются электрички от Финляндского вокзала до Сосново, в сторону озер и лесов. Добраться до нее можно на трамвае или автобусе, время в пути составит около 7 минут, или дойти пешком за 15-20 минут. Здесь есть удобный выезд на КАД. Документы готовы, сделка будет оформлена быстро, собственник — один взрослый. Просмотры по договоренности. Не упустите шанс жить в отличном районе с максимальным комфортом!
Цена
14 700 000 ₽

3-х комнатная квартира

Куттузи дер., Уланская ул. м.Проспект Ветеранов


79.1 м2
Общая
47 м2
Жилая
12 м2
Кухня
Пpодаeтся уютная  кваpтирa в живописнoй деревнe Kуттузи, pacпoлoжeнной в Ломонocовcкoм рaйонe Ленингрaдcкoй oблacти. Квартирa наxодитcя нa 6-м этажe 12-этажногo монoлитногo дoма, пocтроеннoго в 2024 гoду. прoсторная кухня, где можно с комфортом готовить и принимать гостей. Окна выходят на улицу, в квартире много света. В квартире сделан косметический ремонт, который позволяет сразу въехать. Просторная кухня станет отличным местом для семейных обедов или ужинов с друзьями. Санузел совмещенный, все удобно и практично. В прихожей - вместительный шкаф. Также в квартире есть обустроенная полками для хранения вещей лоджия . В доме два лифта — пассажирский и грузовой, что позволит комфортно перемещаться по этажам. Дом в хорошем состоянии, можно не беспокоиться о его надежности и безопасности. Для автомобилистов предусмотрена наземная парковка. До КАД 8 км, есть зона каршеринга, машины всегда в наличии. В пешей доступности остановка автобусов до метро Московская , Кировский завод, Автово. Проспект Ветеранов, что позволит за полчаса добраться до центра города. Рядом находятся все необходимые для комфортной жизни объекты инфраструктуры: школы, детские сады и магазины, ТЦ Тетрис, взрослая и детская поликлиники, стоматология, спорткомплекс Газпром, МФЦ, парк `Красное село`, Нижний парк , Верхний сад, озера Долгое и Безымянное, одни из самых чистых в Санкт-Петербурге и Ленинградской области. Красносельский Свято-Троицкий ХРАМ. Прямая продажа. Возможна покупка в ипотеку. Все документы готовы к сделке, обременений нет. Готовы рассмотреть все предложения. Приглашаем вас на просмотр в удобное для вас время, чтобы своими глазами увидеть все преимущества этого жилья! Куттузи дер., Уланская ул., д.1
Цена
8 300 000 ₽

Комната в 3-комн. квартире

Всеволожск г., Ленинградская ул. м.Улица Дыбенко


62.5 м2
Общая
10.4 м2
Жилая
5.5 м2
Кухня
Продается комната 10.4 кв.м. в трехкомнатной квартире в г. Всеволожск. Сделан качественный ремонт в комнате. Окно во двор. Спокойные соседи, чистая квартира. Отличное расположение дома, вся городская инфраструктура под рукой. Звоните, показываем в любое удобное для вас время.
Цена
1 650 000 ₽

Закажите консультацию специалиста

Оставьте заявку
Нажимая на кнопку «Отправить заявку», Вы даете согласие на обработку своих персональных данных.
×
продажа
Что вы хотите продать?
Сколько комнат?
Тип объекта?
В каком регионе?
В каком районе Санкт-Петербурга
В каком районе Ленинградской области?

Оставьте Ваш контакт и наши специалисты свяжутся с Вами в самые кротчайшие сроки.

+7
×
новостройка
Какие районы Санкт-Петербурга Вас интересуют?
С какой целью Вы планируете приобрести квартиру?
Сколько комнат должно быть в Вашей будущей квартире?
Какой вариант отделки Вам необходим?
Когда Вы хотите заехать?
В какой бюджет хотите уложиться?

Оставьте Ваш контакт и получите подборку квартир без риска столкнуться с мошенничеством и недостроем.

+7
×
сдать
Что вы хотите сдать?
Скольки комнатная квартира?
Какой тип коммерческой недвижимости вы хотите сдать?
В каком регионе?
В каком районе Санкт-Петербурга
В каком районе Ленинградской области?

Оставьте Ваш контакт и наши специалисты свяжутся с Вами в самые кротчайшие сроки.

+7

Продажа квартир и комнат на вторично рынке жилья.

Чтобы купить квартиру в СПб или найти подходящий вариант продажи квартиры в Петербурге на вторичном рынке жилья, требуется потратить много времени и усилий. Квартира или комната в центре Петербурга может быть существенно дороже, чем идентичная по площади в спальном районе. В первую очередь при покупке квартиры в Петербурге надо определиться с ценовой категорией, чтобы затем сосредоточиться на качестве предлагаемого жилья. Чем выше класс недвижимости, тем больше её стоимость. На сайте компании «Русский Фонд Недвижимости» вы найдете все виды вторичного жилья, от дешевых комнат и доступных квартир до элитных квартир в центре города.


Преимущества покупки квартиры на вторичном рынке:

Покупка квартиры или комнаты на вторичном рынке является самым распространенным видом сделок с недвижимостью. Очевидным преимуществом покупки квартиры на вторичном рынке по сравнению с первичным, является то, что эта недвижимость уже существует. Жилье можно посмотреть, оценить плюсы и минусы. Также, преимуществом этого сегмента является большое  разнообразие предложений: широкий выбор по типам домов, годам постройки, расположению. На вторичном рынке можно выбрать квартиру на любой вкус или соответственно финансовой возможности.


Преимущества сотрудничества с «Русским Фондом Недвижимости».

Позвоните нам и убедитесь, что купить квартиру в Петербурге можно  легко, доступно и комфортно! «Русский Фонд Недвижимости» имеет более двух десятков представительств в Санкт-Петербурге и Ленинградской области. Специалисты нашей компании обладают высокой квалификацией, подтверждённой соответствующими сертификатами, и уникальным опытом работы на рынке недвижимости.

  У нас работают только профессионалы,
  Есть  доступ к профессиональным базам данных по недвижимости
Мы проверяем всю документацию, связанную со сделкой купли-продажи

Мы оказываем следующие услуги при операциях с недвижимостью:

  Подбор вариантов и покупка квартиры или комнаты.
  Прямая продажа квартиры  или продажа с встречной покупкой
  Продажа и покупка квартир класса «бизнес», «элита» и «премиум»
  Полное сопровождение сделки:
  Экспертная оценка рыночной стоимости квартиры
  Проверка «чистоты» истории квартиры
  Помощь в оформлении документов
  Консультации по ипотеке и содействие в получение кредита
  Помощь в приватизации
  Расселение коммунальных квартир


Как правильно выбрать квартиру на вторичном рынке.

Рынок вторичной недвижимости часто таит в себе опасности. Купив квартиру, до сих пор можно столкнуться с ситуацией, что на приобретенной жилплощади окажутся приписанными несовершеннолетние дети или недееспособные граждане. Чтобы не оказаться жертвой мошенников, и избежать других проблем и неоправданных затрат времени, следует воспользоваться услугами профессионального риэлторского агентства, такого как, например, «Русский Фонд Недвижимости». Специалисты компании помогут подобрать подходящий вариант и будут сопровождать сделку на всех этапах.

Этот сайт использует файлы cookie для улучшения пользовательского опыта. Cookie - это небольшие текстовые файлы, которые сохраняются на вашем устройстве и помогают нам запоминать ваши предпочтения, анализировать посещаемость сайта и предоставлять более персонализированный контент. Использование файлов cookie позволяет нам сделать сайт удобнее для вас. Политика конфиденциальности
Принять Отказаться