Продажа квартир и комнат

Комнаты
Например: Массальского, 4
Ванные
3-х комнатная квартира

Первомайское пос., Ленина ул. м.Беговая


60.2 м2
Общая
43.3 м2
Жилая
6.3 м2
Кухня
Продается просторная светлая 3-комнатная квартира в 5-ти этажном панельном доме 1987 года постройки  в п. Первомайское Выборгского р-на, ЛО. Общая полезная площадь 60.2 кв. м, жилая 43.2 кв. м.(17,9+13,6+11,8). Все комнаты изолированные, санузел раздельный. Площадь кухни 6.3 кв. м. Высота потолков 2.60 м. Окна выходят на две стороны дома, квартира расположена на 2-ом этаже, удобном для пожилых людей и семей с маленькими детьми. Есть застекленная лоджия. В квартире никто не прописан, один собственник, без долгов и обременений, в аренду никогда не сдавалась, ремонт косметический. Поселок Первомайское  располагается в 60 км от СПб и 75 км от Выборга, рядом г. Зеленогорск и п. Рощино, в 5 минутах трасса Скандинавия, вокруг сосновый лес и озера, грибные и ягодные места. Магазины, школа, детский садик, остановка общественного транспорта, больница, почта и сбербанк все в шаговой доступности. Есть шикарный Дворец культуры, где проходят разные мероприятия, различные кружки для детей и взрослых, тренажерный зал, библиотека, филиал МФЦ и стадион. Администрация поселка очень внимательно относится к ветеранам и пожилым жителям, есть пансионат в п. Ольшаники в 15 минутах езды на автобусе. Автобусы и маршрутки ходят регулярно. Продажа из-за смены работы собственника и переезда в другой регион. Можем рассмотреть вариант обмена на Санкт-Петербург с доплатой с нашей стороны.
Цена
5 500 000 ₽

3-х комнатная квартира

Лесколово пос., Красноборская ул. м.Девяткино


67.6 м2
Общая
45.9 м2
Жилая
8.2 м2
Кухня
Лесколово.Продаётся 3 комнатная квартира с удачной планировкой на 2 этаже 5 этажного дома. Квартира большая,просторная,светлая. Окна степлопакеты,СУР(всё в кафеле),новая сантехника. Все центральные коммуникации. При продаже остаётся встроенная кухня,остальная мебель по желанию.ВП,документы готовы. В посёлке развитая инфраструктура,удобное транспортное сообщение с СПБ. Просмотр квартиры возможен по согласованию.
Цена
6 300 000 ₽

Комната в 3-комн. квартире

Свердловская наб. м.Площадь Ленина


65.8 м2
Общая
11.3 м2
Жилая
7.1 м2
Кухня
Санкт-Петербург, Калининский р-н, Свердловская наб., д.14/2 ЭКСКЛЮЗИВНАЯ ЛОКАЦИЯ С ВИДОМ НА СМОЛЬНЫЙ СОБОР и НАБЕРЕЖНУЮ НЕВЫ, перед окнами никогда и ничего не построят, вид на все праздничные салюты города. Продается комната 11,3 кв.м. в 3-х комнатной квартире. Комната с высокими потолками 3,8 метра, есть возможность сделать полноценный второй этаж. Вся мебель и техника остается. Прекрасный вид из окна. Квартира очень теплая, т.к. у дома своя котельная. Двор закрытый и благоустроенный, доступ во двор только у собственников недвижимости, поэтому парковка будет всегда и машина. Для гостей парковка перед домом - открытая. Во дворе новая детская площадка. Комната прекрасно сдается в аренду, т.к. рядом много предприятий, либо можно сдавать посуточно, если есть время этим заниматься. Один взрослый собственник, более 5 лет, документы готовы, обременений и долгов нет. Быстрый выход на сделку.
Цена
4 300 000 ₽

Затрудняетесь с выбором?

Не тратьте время на поиск и анализ множества предложений недвижимости
Мы сделаем это за вас профессионально, быстро, предложив оптимальные варианты по выгодной цене!

3-х комнатная квартира

Лесколово пос., Красноборская ул. м.Девяткино


67.8 м2
Общая
46.2 м2
Жилая
11.8 м2
Кухня
Продается просторная трехкомнатная квартира площадью 67,8  квадратных метров в деревне Лесколово. Квартира находится на 4 этаже 5 этажного дома, расположенного в тихом и спокойном месте. В квартире выполнен качественный ремонт, установлены пластиковые окна, новые радиаторы отопления, межкомнатные двери и сантехника. Также имеется просторная кухня с газовой плитой,  3 комнаты, балкон,СУР. Деревня Лесколово находится в 20 минутах езды от Санкт-Петербурга, что делает ее идеальным местом для тех, кто хочет жить в тихом и уютном районе, но при этом иметь доступ к городской инфраструктуре. В деревне есть магазины, школа, детский сад,поликлиника и многое другое. Рядом с домом расположен лес,спортивный стадион где можно прогуляться или заняться спортом. Квартира продаётся со встроенной кухней. Если вы хотите купить квартиру в деревне Лехколово и наслаждаться жизнью за городом, не упустите свой шанс! Документы готовы. В собственности более 5 лет. Прямая продажа. Возможен торг.Звоните!!!
Цена
6 700 000 ₽

3-х комнатная квартира

Сестрорецк г., Дубковское шос. м.Беговая


101.9 м2
Общая
61.7 м2
Жилая
16.1 м2
Кухня
Сестрорецк, Дубковское шоссе дом 9 В одном из лучших домов Сестрорецка продается просторная 3 ком.квартира 101,9 кв.м. Квартира имеет три изолированных комнаты, два сан.узла, кухню 16 кв.м, утепленные лоджия и балкон. При желании можно сделать 4 отдельных комнаты, т.к. в большой комнате 3 окна. Окна выходят на три стороны, что делает квартиру очень светлой. Высокие потолки 2,85 м. В квартире установлены фильтры на воду, бойлеры. Кирпичный теплый дом 2002 года постройки, чистая парадная, 2 лифта, консьерж, красивый холл  во входной группе с пандусом для колясок и зоной отдыха.  Есть кладовая и отдельные помещения для хранения велосипедов. Видеонаблюдение, закрытая территория, есть парковка и можно отдельно приобрести подземный паркинг. Уникальное расположение дома - знаменитый  парк Дубки в 400 метрах, ж.д станция Сестрорецк в 300 метрах, рядом все магазины, аптеки, пекарня. Во дворе школа и детский сад. В пешей доступности пляжи и прогулочные зоны вдоль Финского залива. Квартира без перепланировок,  без обременений, подходит под ипотеку любого банка, в собственности более 15 лет. Помогаем с одобрением ипотеки. Гарантируем юридическую чистоту сделки.
Цена
25 400 000 ₽

Комната в 3-комн. квартире

Семиозерье пос., Лесная ул. м.Беговая


52.4 м2
Общая
10.8 м2
Жилая
6.4 м2
Кухня
Семиозерье.Отдельная комната в домике.Все удобства.
Цена
640 000 ₽

3-х комнатная квартира

Сясьстрой г., Космонавтов ул.


61 м2
Общая
45 м2
Жилая
5.5 м2
Кухня
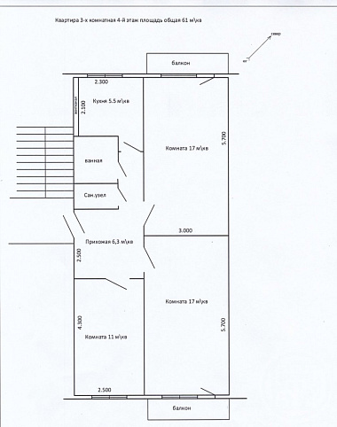
Ленинградская область, Волховский  район, г. Сясьстрой, ул. Космонавтов д. 7 Продам 3-х комнатную квартиру площадью 61 м.кв, на 4/5этаже.  Три изолированные  комнаты 17; 17 и 11 м.кв., кухня 5,5 м.кв., санузел раздельный, 2 балкона. Квартира двухсторонняя.Окна стеклопакеты. В шаговой доступности вся городская инфраструктура: сетевые магазины, банки, поликлиника,.школа, д/сад. Подходит для постоянного проживания и загородного отдыха. Благоустроенный песчаный пляж на реке Сясь в сосновом бору. Долгов по оплате нет. Два взрослых  собственника. Прямая продажа.Указываем полную цену. Просмотры по предварительной договоренности.
Цена
3 700 000 ₽

3-х комнатная квартира

Сестрорецк г., Токарева ул. м.Беговая


61.4 м2
Общая
34.7 м2
Жилая
8.4 м2
Кухня
СПб, г. Сестрорецк, ул.Токарева, д.15. Продаётся 3-х комнатная квартира, общ.пл.61,4 кв.м с отличной планировкой. Квартира двусторонняя, светлая, очень тёплая. Комнаты изолированные. Просторная прихожая с 3-я встроенными шкафами. Звоните, отвечу на все, интересующие Вас вопросы
Цена
12 450 000 ₽

3-х комнатная квартира

Победа пос., Мира ул. м.Беговая


72.5 м2
Общая
42.8 м2
Жилая
8.3 м2
Кухня
192 Предлагается к продаже большая 3 комнатная квартира Лен.обл. Выборгский р-он п.Победа ул.Мира д.4 на пятом этаже пятиэтажного панельного дома г.п.1991.Общ. 72,5 кв.м. планировка двухсторонняя- изолированная 12,8+12,9+17,1+застекленная лоджия. Кухня 8,3 кв.м, большая прихожая 14,7 кв.м, с/у раздельный ,есть большая кладовка 2,1кв.м и две 0,3+0,4 кв.м. Частично оставляем мебель. Квартира расположена в середине дома ,очень теплая. Требует косметического ремонта. В поселке хорошо развита инфраструктура. Есть школа, детский сад, медицинский кабинет, сетевые магазины` Пятерочка`, ` Магнит`, мини- Лента. До ж/д Каннельярви, 5 минут на автобусе. До СПб ходят электрички повышенной комфортности `Ласточка` - 35 мин. Вокруг лес, озеро. Летом грибы, ягоды. Три взрослых собственника. Подходит под ипотеку. Встречная покупка 2 к.кв. в п.Победа ул.Мира первый или второй этаж. Просмотры по предварительной договоренности.
Цена
5 200 000 ₽

3-х комнатная квартира

Рощино пос., Советская ул. м.Удельная


72 м2
Общая
46 м2
Жилая
8.5 м2
Кухня
Просторная  квартира с прекрасной планировкой в центре г.п.Рощино.Сделан свежий евро ремонт, заменены все трубы, электрика,везде стеклопакеты,в подарок остается встроенная мебель на кухне. Большая прихожая, кухня и жилые комнаты, застекленная лоджия, кладовая и стенной шкаф.Поселок с развитой инфраструктурой, рядом школа, детский сад, игровые площадки, школьный стадион,  магазины и т.д. В шаговой доступности озеро(разлив реки Рощинки) с песчаными  пляжами и парковая зона поселка.С Санкт-Петербургом сообщение отличное. Недалеко расположен горнолыжный курорт `Пухтолова гора`, сосновый лес  и много озер. Приветствуется любая форма оплаты,  Продажа  с побором  встречного  варианта.
Цена
9 450 000 ₽

3-х комнатная квартира

Всеволожск г., Ленинградская ул. м.Улица Дыбенко


64.1 м2
Общая
47.5 м2
Жилая
6.4 м2
Кухня
Ленинградская обл.,Всеволожский р-н, г. Всеволожск, ул. Ленинградская,д.21,к.2 В продаже светлая, уютная  3-х комнатная кв. на 5-м этаже 9-ти этажного панельного дома  площадью 64,1 кв.м., комнаты изолированные 13,0+17,0+17,5кв.м., кухня 6,4;кв.м,  застекленная лоджия, прихожая 6,0кв.м..сан.узел раздельный. Ванна и туалет отделаны кафелем. Квартира в отличном состоянии. Окна стеклопакеты, выходят на южную и северо-восточную стороны, пол- линолеум.  Установлена металлическая входная дверь.В квартире поменяны трубы хол. и гор. воды, стоят счетчики. Квартира очень теплая Удобное место расположения дома- в 5 мин. пешком- 3 дет.сада, 2 школы, физико-математ. лицей. Для старшеклассников 9 или 11 классов-неплохой вариант получения специальностей во Всеволожском агропромышленном техникуме (находится в 15 мин. пешком от дома) таких, как  электрификация и автоматизация с/х; экономика, бух. учет; техническое обслуживание и ремонт двигателей, систем и агрегатов авто, землеустройство; мастер по ремонту и обслуживании авто.; эксплуатация и ремонт с/х техники и оборудования; правоохранительная деятельность; тракторист-машинист с/х производства. В 10 мин. пешком- поликлиника. В 1-м  км. от дома-  Румболовский парк `Песчанка``с прогулочными,велосипедными дорожками, детскими,игровыми и спорт. площадками, культурно-развлекательной зоной.Рядом лесные озера, ягодные и грибные места. Удобное сообщение с СПБ- в 200 м. от дома остановка общественного и коммерческого транспорта, следующего до м. Ладожская ,до ж/д станции Всеволожская-5мин. транспортом, откуда без пробок за 30 минут можно доехать до СПб. Квартира более 5-ти лет в собственности. Возможно использование мат. капитала, ипотеки, жилищных субсидий.   Документы готовы. Прямая продажа.
Цена
7 200 000 ₽

3-х комнатная квартира

Красное Село г., Гатчинское шос. м.Проспект Ветеранов


70.1 м2
Общая
48.5 м2
Жилая
6.4 м2
Кухня
192 Предлагается к продаже 3 к.квартира г.СПб Красносельский р-н, Красное Село г., Гатчинское шос д.60 к (по границе пос.Виллози) расположенная на 5-ом этаже пятиэтажного панельного дома г.п.1984. Общ.70,1 кв.м, кухня 6,4 кв.м, комнаты смежно-изолированные, с/у разд. Окна стеклопакеты. Квартира в отличном состоянии, светлая-просторная. Есть застеклённая лоджия. Все центральные коммуникации: центральное отопление, горячая вода, плита-газовая и тд. Удобное место расположение до центра Красного села 2 км, 10 мин. на транспорте до Гатчины, 30-40 мин.тр. до метро пр-кт Ветеранов, 10 мин. пешком до ж/д ст. Можайская. В поселке есть вся инфраструктура : Амбулатория, дет. сад., школа, дом культуры, почта, магазины, спорт зал, каток, спортивные и детские площадки, Дудергофские высоты и озеро все в пешей доступности. Горнолыжный курорт Туутари парк 10мин. транспортом. Экологически чистый район. Один взрослый собственник. Собственность от 2017г.Подходит под ипотеку. Встречная покупка 1 к.кв г.Красное Село. Просмотры по предварительной договоренности.
Цена
7 700 000 ₽

Закажите консультацию специалиста

Оставьте заявку
Нажимая на кнопку «Отправить заявку», Вы даете согласие на обработку своих персональных данных.
×
продажа
Что вы хотите продать?
Сколько комнат?
Тип объекта?
В каком регионе?
В каком районе Санкт-Петербурга
В каком районе Ленинградской области?

Оставьте Ваш контакт и наши специалисты свяжутся с Вами в самые кротчайшие сроки.

+7
×
новостройка
Какие районы Санкт-Петербурга Вас интересуют?
С какой целью Вы планируете приобрести квартиру?
Сколько комнат должно быть в Вашей будущей квартире?
Какой вариант отделки Вам необходим?
Когда Вы хотите заехать?
В какой бюджет хотите уложиться?

Оставьте Ваш контакт и получите подборку квартир без риска столкнуться с мошенничеством и недостроем.

+7
×
сдать
Что вы хотите сдать?
Скольки комнатная квартира?
Какой тип коммерческой недвижимости вы хотите сдать?
В каком регионе?
В каком районе Санкт-Петербурга
В каком районе Ленинградской области?

Оставьте Ваш контакт и наши специалисты свяжутся с Вами в самые кротчайшие сроки.

+7

Продажа квартир и комнат на вторично рынке жилья.

Чтобы купить квартиру в СПб или найти подходящий вариант продажи квартиры в Петербурге на вторичном рынке жилья, требуется потратить много времени и усилий. Квартира или комната в центре Петербурга может быть существенно дороже, чем идентичная по площади в спальном районе. В первую очередь при покупке квартиры в Петербурге надо определиться с ценовой категорией, чтобы затем сосредоточиться на качестве предлагаемого жилья. Чем выше класс недвижимости, тем больше её стоимость. На сайте компании «Русский Фонд Недвижимости» вы найдете все виды вторичного жилья, от дешевых комнат и доступных квартир до элитных квартир в центре города.


Преимущества покупки квартиры на вторичном рынке:

Покупка квартиры или комнаты на вторичном рынке является самым распространенным видом сделок с недвижимостью. Очевидным преимуществом покупки квартиры на вторичном рынке по сравнению с первичным, является то, что эта недвижимость уже существует. Жилье можно посмотреть, оценить плюсы и минусы. Также, преимуществом этого сегмента является большое  разнообразие предложений: широкий выбор по типам домов, годам постройки, расположению. На вторичном рынке можно выбрать квартиру на любой вкус или соответственно финансовой возможности.


Преимущества сотрудничества с «Русским Фондом Недвижимости».

Позвоните нам и убедитесь, что купить квартиру в Петербурге можно  легко, доступно и комфортно! «Русский Фонд Недвижимости» имеет более двух десятков представительств в Санкт-Петербурге и Ленинградской области. Специалисты нашей компании обладают высокой квалификацией, подтверждённой соответствующими сертификатами, и уникальным опытом работы на рынке недвижимости.

  У нас работают только профессионалы,
  Есть  доступ к профессиональным базам данных по недвижимости
Мы проверяем всю документацию, связанную со сделкой купли-продажи

Мы оказываем следующие услуги при операциях с недвижимостью:

  Подбор вариантов и покупка квартиры или комнаты.
  Прямая продажа квартиры  или продажа с встречной покупкой
  Продажа и покупка квартир класса «бизнес», «элита» и «премиум»
  Полное сопровождение сделки:
  Экспертная оценка рыночной стоимости квартиры
  Проверка «чистоты» истории квартиры
  Помощь в оформлении документов
  Консультации по ипотеке и содействие в получение кредита
  Помощь в приватизации
  Расселение коммунальных квартир


Как правильно выбрать квартиру на вторичном рынке.

Рынок вторичной недвижимости часто таит в себе опасности. Купив квартиру, до сих пор можно столкнуться с ситуацией, что на приобретенной жилплощади окажутся приписанными несовершеннолетние дети или недееспособные граждане. Чтобы не оказаться жертвой мошенников, и избежать других проблем и неоправданных затрат времени, следует воспользоваться услугами профессионального риэлторского агентства, такого как, например, «Русский Фонд Недвижимости». Специалисты компании помогут подобрать подходящий вариант и будут сопровождать сделку на всех этапах.

Этот сайт использует файлы cookie для улучшения пользовательского опыта. Cookie - это небольшие текстовые файлы, которые сохраняются на вашем устройстве и помогают нам запоминать ваши предпочтения, анализировать посещаемость сайта и предоставлять более персонализированный контент. Использование файлов cookie позволяет нам сделать сайт удобнее для вас. Политика конфиденциальности
Принять Отказаться