Продажа квартир и комнат

Комнаты
Например: Массальского, 4
Ванные
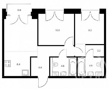
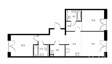
2-х комнатная квартира

Обводного канала наб. м.Балтийская


72.8 м2
Общая
33.2 м2
Жилая
23.6 м2
Кухня
Продаётся светлая  2 кв( 3E) -квартира общей площадью 72,8м2. с просторной кухней -гостиной. Квартира находится в Адмиралтейском районе Санкт-Петербурга. Квартира в малоэтажном доме бизнес-класса расположена близко к центру. 5 минут  пешком до метро Балтийская, 15 минут до метро Фрунзенская,  вечером можно прогуляться до Мариинского театра, а так же вдоль  Фонтанки и Обводного канала. Во дворе камеры и зеленый парк. Предусмотрен подземный паркинг со станциями для зарядки электромобилей . В квартире 2 санузла по 4,3м2+ 4,1 м2 Кухня-гостиная 16,0 м2. Прихожая 10,0 м2. Смарт - спальня+ гардеробная 8,5 м2 Три балкона, что дает возможность увеличение света в квартире. Постирочная 3,6 м2 Предусмотрено зонирование кухни и гостиной комнаты. Высокие потолки 3м2. Окна в пол. Квартира двухсторонняя, окна во двор и на улицу. Квартира с ПОДЧИСТОВОЙ отделкой White box (предчистовая отделка) - выполнены все черновые работы, что сэкономит ваше время и деньги на ремонт. В жилом комплексе , в  каждой квартире предусмотрены специальные корзины под кондиционеры на фасаде дома. Инфраструктура развита, поблизости расположены школы, детские сады, магазины, кафе, салоны красоты, медицинские учреждения.  В пешей доступности Мариинский театр, Польский сад, набережная реки Фонтанки и Обводного канала. Доступ в парадные осуществляется с помощью распознавания лиц IP-домофоном или ключ-картой. На территории  функционирует лицей с бассейном . Здание было отреставрировано, ранее в нем находилось кавалерийское  училище , в котором учился М.Ю Лермонтов. Недалеко от дома находится Юсуповский дворец, парк Екатерингоф, на машине можно доехать до острова Новая Голландия и Мариинского театра. Современный дом с фасадами из темного клинкерного кирпича, просторными лобби и бесшумными лифтами, вход в парадную по системе распознавания лиц сделает Вашу жизнь намного комфортнее. Квартира готова к продаже, возможна ипотека, в том числе и семейная.   Не упустите свой шанс! Звоните, ждем Вас на просмотр!
Цена
29 100 000 ₽

2-х комнатная квартира

Обводного канала наб. м.Балтийская


54.5 м2
Общая
18.2 м2
Жилая
20 м2
Кухня
Продаётся новая светлая, уютная  2 кв( 3E) -квартира общей площадью 54,5 м2. с просторной кухней -гостиной. Квартира находится в Адмиралтейском районе Санкт-Петербурга. Квартира в малоэтажном доме бизнес-класса расположена юлизко к центру. 5 минут  пешком до метро Балтийская, 15 минут до метро Фрунзенская,  вечером можно прогуляться до Мариинского театра, а так же вдоль  Фонтанки и Обводного канала. Жилой комплекс находится под круглосуточным видеонаблюдением и имеет собственный зеленый парк во дворе. Предусмотрен подземный паркинг со станциями для зарядки электромобилей . В квартире 2 санузла по 4,6м2+ 4,6 м2 Кухня-гостиная 20,0 м2.; Прихожая 6,8 м2. Три балкона, что дает возможность увеличение света в квартире. Предусмотрено зонирование кухни и гостиной комнаты. Высокие потолки 3м2, окна в пол. Окна во двор. Квартира с ПОДЧИСТОВОЙ отделкой White box (предчистовая отделка) - выполнены все черновые работы, что сэкономит ваше время и деньги на ремонт. В жилом комплексе , в  каждой квартире предусмотрены специальные корзины под кондиционеры на фасаде дома. Инфраструктура развита, поблизости расположены школы, детские сады, магазины, кафе, салоны красоты, медицинские учреждения.  В пешей доступности Мариинский театр, Польский сад, набережная реки Фонтанки и Обводного канала. Доступ в парадные осуществляется с помощью распознавания лиц IP-домофоном или ключ-картой. На территории ЖК функционирует лицей с бассейном . Здание было отреставрировано, ранее в нем находилось кавалерийское  училище , в котором учился М.Ю Лермонтов. Современный дом с фасадами из темного клинкерного кирпича, просторными лобби и бесшумными лифтами, вход в парадную по системе распознавания лиц сделает Вашу жизнь намного комфортнее. Квартира готова к продаже, возможна ипотека, в том числе и семейная.   Не упустите свой шанс! Звоните, ждем Вас на просмотр!
Цена
24 335 000 ₽

2-х комнатная квартира

Энгельса пр. м.Удельная


55.3 м2
Общая
33.6 м2
Жилая
8.3 м2
Кухня
Санкт-Петербург, Выборгский район, пр.Энгельса, д.36. Продается стильная 2-х комнатная квартира на проспекте Энгельса, в трех минутах ходьбы от Удельного парка. В квартире выполнен капитальный ремонт: заменены все инженерные сети ( электрика, сантехника, отопление). Выполнена новая штукатурка стен известковым составом. Напольное покрытие - штучная паркетная доска Khärs (Швеция) Установлена приточно- вытяжная вентиляция с рекуперацией воздуха. Имеются коммуникации для установки кондиционера. Окна - с дополнительной защитой от шума. Установлены мраморные подоконники. В квартире имеется сауна и просторная душевая с тропическим душем. Вся сантехника немецкого производства. Теплые полы на кухне, в коридоре и санузле. На кухне - встраиваемый холодильник, варочная панель, посудомойка. Буфетный шкаф с подсветкой и вместительный пенал для хранения. Имеется балкон. Входная дверь металлическая с замком Abloy ( Финляндия) Всегда есть свободные парковочные места во дворе. Спокойные соседи.
Цена
16 900 000 ₽

Затрудняетесь с выбором?

Не тратьте время на поиск и анализ множества предложений недвижимости
Мы сделаем это за вас профессионально, быстро, предложив оптимальные варианты по выгодной цене!

2-х комнатная квартира

Мурино г., Оборонная ул. м.Девяткино


57 м2
Общая
31.3 м2
Жилая
8.1 м2
Кухня
Мурино,продается 2-х комнатная квартира на третьем этаже десятиэтажного панельного дома 1997 г.п.,общ.пл.57 м.кв.,комнаты пл. 17,5 м.кв .с выходом на остекленную лоджию пл.3,4 м.кв.и пл. 13,8 м.кв.,кухня 8,1 м.кв,прихожая 11,5 м.кв.,кладовая пл.2,1 м.кв. Светлая, чистая квартира, с окнами во двор, электрическая плита, счетчики на горячую и холодную воду, кабельное телевидение и интернет. У дома автобусная остановка, транспорт до метро ` Девяткино` -5 минут, рядом продовольственные супермаркеты ` Лента`,`Пятерочка`,`Магнит`, встречная покупка однокомнатной квартиры.
Цена
7 300 000 ₽

2-х комнатная квартира

Сестрорецк г., Токарева ул. м.Беговая


36 м2
Общая
26.9 м2
Жилая
2 м2
Кухня
Продаётся квартира-блок в Курортном районе, г. Сестрорецк, ул. Токарева, д. 15 - 4 этаж. Расположение: Дом расположен рядом с жд/станцией Сестрорецк, отличное транспортное сообщение на электричке до  Санкт-Петербурга (направление метро Беговая, Старая деревня, Черная речка, Финляндский вокзал); автобусная остановка в пешей доступности. Квартира в блок-секции с индивидуальными удобствами: Галерейный кирпичный дом, в парадной 2 лифта; Две изолированные комнаты — 13,6 м² и 13,3 м² со встроенными шкафами; прихожая — 4 м²; На кухне электроплита; Раздельные санузел и душевая. Дополнительно: Соседи на этаже давно между собой договорились, кто чем пользуется — у нас в пользовании застеклённая лоджия, и при продаже она остаётся за новым владельцем. Документы: Два взрослых собственника с 2013 года Легкая встречная покупка в Купчино.
Цена
5 770 000 ₽

2-х комнатная квартира

Обводного канала наб. м.Балтийская


65.2 м2
Общая
25.7 м2
Жилая
16 м2
Кухня
Продаётся светлая  2 кв( 3E) -квартира общей площадью 65,2м2. с просторной кухней -гостиной. Квартира находится в Адмиралтейском районе Санкт-Петербурга. Квартира в малоэтажном доме бизнес-класса расположена юлизко к центру. 5 минут  пешком до метро Балтийская, 15 минут до метро Фрунзенская,  вечером можно прогуляться до Мариинского театра, а так же вдоль  Фонтанки и Обводного канала. Жилой комплекс находится под круглосуточным видеонаблюдением и имеет собственный зеленый парк во дворе. Предусмотрен подземный паркинг со станциями для зарядки электромобилей . В квартире 2 санузла по 4,2м2+ 4,1 м2 Кухня-гостиная 16,0 м2. Прихожая 3,8 м2. Три балкона, что дает возможность увеличение света в квартире. Постирочная 3,6 м2 Предусмотрено зонирование кухни и гостиной комнаты. Высокие потолки 3м2. Окна в пол. Окна на улицу. Квартира с ПОДЧИСТОВОЙ отделкой White box (предчистовая отделка) - выполнены все черновые работы, что сэкономит ваше время и деньги на ремонт. В жилом комплексе , в  каждой квартире предусмотрены специальные корзины под кондиционеры на фасаде дома. Инфраструктура развита, поблизости расположены школы, детские сады, магазины, кафе, салоны красоты, медицинские учреждения.  В пешей доступности Мариинский театр, Польский сад, набережная реки Фонтанки и Обводного канала. Доступ в парадные осуществляется с помощью распознавания лиц IP-домофоном или ключ-картой. На территории ЖК функционирует лицей с бассейном . Здание было отреставрировано, ранее в нем находилось кавалерийское  училище , в котором учился М.Ю Лермонтов. Недалеко от дома находится Юсуповский дворец, парк Екатерингоф, на машине можно доехать до острова Новая Голландия и Мариинского театра. Современный дом с фасадами из темного клинкерного кирпича, просторными лобби и бесшумными лифтами, вход в парадную по системе распознавания лиц сделает Вашу жизнь намного комфортнее. Квартира готова к продаже, возможна ипотека, в том числе и семейная.   Не упустите свой шанс! Звоните, ждем Вас на просмотр!
Цена
29 095 000 ₽

2-х комнатная квартира

Обводного канала наб. м.Балтийская


54 м2
Общая
20.9 м2
Жилая
19.1 м2
Кухня
Продаётся светлая , уютная  2 кв. ( 3E) -квартира общей площадью 54,0 м2. с просторной кухней -гостиной. Квартира находится в Адмиралтейском районе Санкт-Петербурга. Квартира в малоэтажном доме бизнес-класса в непосредственной близости к центру города. За  5 минут можно дойти пешком до метро Балтийская, 15 минут до метро Фрунзенская,  вечером можно прогуляться до Мариинского театра, а так же вдоль  Фонтанки и Обводного канала. Жилой комплекс находится под круглосуточным видеонаблюдением и имеет собственный зеленый парк во дворе. Для автовладельцев предусмотрен подземный паркинг со станциями для зарядки электромобилей . В квартире 2 санузла по 4,3 м2 . Кухня-гостиная 19,1 м2. Прихожая 3,6 м2. Три балкона, что дает возможность увеличение света в квартире. Предусмотрено зонирование кухни и гостиной комнаты. Высокие потолки 3м2. Окна в пол. Окна на улицу. Квартира с ПОДЧИСТОВОЙ отделкой White box (предчистовая отделка) - выполнены все черновые работы, что сэкономит ваше время и деньги на ремонт. В жилом комплексе , в  каждой квартире предусмотрены специальные корзины под кондиционеры на фасаде дома. Инфраструктура развита, поблизости расположены школы, детские сады, магазины, кафе, салоны красоты, медицинские учреждения.  В пешей доступности Мариинский театр, Польский сад, набережная реки Фонтанки и Обводного канала. Доступ в парадные осуществляется с помощью распознавания лиц IP-домофоном или ключ-картой. На территории ЖК функционирует лицей с бассейном . Здание было отреставрировано, ранее в нем находилось кавалерийское  училище , в котором учился М.Ю Лермонтов. Современный дом с фасадами из темного клинкерного кирпича, просторными лобби и бесшумными лифтами, вход в парадную по системе распознавания лиц сделает Вашу жизнь намного комфортнее. Квартира готова к продаже, возможна ипотека, в том числе и семейная.   Не упустите свой шанс! Звоните, ждем Вас на просмотр!
Цена
24 559 000 ₽

2-х комнатная квартира

Рощино пос., Садовая ул. м.Беговая


48.6 м2
Общая
32 м2
Жилая
6 м2
Кухня
Ипотека ПАО Сбербанк, внесен залог. Предлагается к продаже двухкомнатная квартира в центре п. Рощино Выборгского района Ленинградской области Карельскского перешейка. Квартира тёплая, расположена на две стороны. Общая площадь квартиры 48,6 кв.м. квартира подходит как для постоянного проживания, так и для летнего отдыха. В шаговой доступности все сетевые магазины, места водного отдыха (река Родинка).  Удобная транспортная доступность : электрички, в том числе Ласточка, 40 минут и вы в Питере.
Цена
4 500 000 ₽

2-х комнатная квартира

Луга г., Кирова просп.


40.9 м2
Общая
24 м2
Жилая
8 м2
Кухня
Продается двухкомнатная квартира по адресу: Г. Луга, проспект Кирова, дом 23.     Площадь квартиры 41 кв.м. Квартира находится на третьем этаже пятиэтажного дома. Дом кирпичный, перекрытия железобетонные. Год постройки 1966. Санузел совмещенный. В доме есть все необходимые коммуникации, горячие водоснабжение – бойлер. Отличное месторасположение: Во дворе детская спортивная площадка. Рядом находится детский сад и школа. Вся необходимая инфраструктура в шаговой доступности: сетевые магазины, пункты выдачи онлайн заказов, остановки в разные направления, аптеки, детские центры и т.д. В городе Луга очень развитая инфраструктура, но при этом рядом природа, сосновый бор, смешанные леса, река Луга с набережной и песочным пляжем, различные озёра с чистой водой местами для купания и рыбалки. Документ в порядке, быстрый выход на сделку, юридическое сопровождение.
Цена
4 400 000 ₽

2-х комнатная квартира

Ильюшина ул. м.Комендантский проспект


49.8 м2
Общая
29.4 м2
Жилая
8.1 м2
Кухня
Продается 2-комнатная  квартира по отличной цене по адресу ул. Ильюшина 15 к.1  (Приморский район) Квартира универсальная подходит для всего: инвестиций, для одного человека или семьи! - Просторная, светлая, уютная с отличной планировкой и позитивной атмосферой и энергетикой:). Просторный квадратный коридор-холл, хорошая кухня, комнаты правильной формы - все можно легко зонировать как Вам надо! Коридор удобный и вместительный , тут поместятся все ваши вещи. Светлая  кухня на которой Вы с удовольствием будете собираться всей семьёй. О доме Современный кирпичный дом. Благоустроенная придомовая территория, есть современная детская площадка. Рядом находится несколько школ и детских садов - удобно для семей с детьми. Много парковочных мест - у вас всегда будет место для автомобиля. Расположение и инфраструктура. Рядом, в 15 минутах пешком, метро - Комендантский проспект, 20 мин транспортом м. Пионерская. Рядом с домом. множество остановок общественного транспорта. Выезд на КАД в 10 минутах. Это позволит вам быстро и без усилий доехать в любую точку города. Поблизости есть торговый комплекс, строительные и мебельные магазины, различные центры развлечений (кинотеатры, рестораны), гипермаркеты, спортивные и продуктовые магазины. Приходите и покупайте квартиру мечты!!!!
Цена
9 700 000 ₽

2-х комнатная квартира

Луга г., Кирова просп.


42 м2
Общая
30 м2
Жилая
6 м2
Кухня
Продам 2 комнатную квартиру в городе Луга. 2 комнаты,кухня ,СУС,балкон.Остается вся мебель и техника. Рядом вся необходимая инфраструктура:магазины,школа,детский сад.В пешей доступности река,лес,родник,рынок ,вокзал.
Цена
4 400 000 ₽

2-х комнатная квартира

Шостаковича ул. м.Проспект Просвещения


60 м2
Общая
32.8 м2
Жилая
11 м2
Кухня
Продается просторная двухкомнатная  квартира 60 кв.м. на  комфортном третьем   этаже  в Выборгском районе Санкт-Петербурга,  ул. Шостаковича, д.5 корпус 2. Дом 2007 года постройки, расположен в тихом зеленом дворе, где  всегда есть место для парковки автомобиля. Квартира двусторонняя. Комнаты светлые изолированные(16кв.м+17кв.м), кухня прямоугольной формы (11кв.м), с/ у раздельный, большая застекленная лоджия. Чистый подъезд, доброжелательные соседи, контейнеры для мусора находятся  внизу, на первом этаже. Остановка общественного транспорта в трех   минутах ходьбы от дома. В пешей доступности вся инфраструктура (школы, детские сады, парк,  поликлиника  для детей и взрослых, детские площадки, торговые центры  Норд, Гранд-Каньон, Клуб 154, ПВЗ  маркетплейсов,  сетевые магазины , аптеки).  Отличная транспортная доступность. До КАД- 3 минуты  на машине. До метро пр. Просвещения`-6 минут спокойным шагом, `Парнас` 25 минут, Озерки -7 минут на транспорте. Квартира без обременений, без задолженностей, в собственности более 5 лет у одного взрослого собственника.   Полная стоимость в договоре. Прописка СПб. Встречная покупка легкая. Подходит под любую ипотеку, субсидии, материнский капитал. Приглашаем  на просмотр!
Цена
12 799 000 ₽

Закажите консультацию специалиста

Оставьте заявку
Нажимая на кнопку «Отправить заявку», Вы даете согласие на обработку своих персональных данных.
×
продажа
Что вы хотите продать?
Сколько комнат?
Тип объекта?
В каком регионе?
В каком районе Санкт-Петербурга
В каком районе Ленинградской области?

Оставьте Ваш контакт и наши специалисты свяжутся с Вами в самые кротчайшие сроки.

+7
×
новостройка
Какие районы Санкт-Петербурга Вас интересуют?
С какой целью Вы планируете приобрести квартиру?
Сколько комнат должно быть в Вашей будущей квартире?
Какой вариант отделки Вам необходим?
Когда Вы хотите заехать?
В какой бюджет хотите уложиться?

Оставьте Ваш контакт и получите подборку квартир без риска столкнуться с мошенничеством и недостроем.

+7
×
сдать
Что вы хотите сдать?
Скольки комнатная квартира?
Какой тип коммерческой недвижимости вы хотите сдать?
В каком регионе?
В каком районе Санкт-Петербурга
В каком районе Ленинградской области?

Оставьте Ваш контакт и наши специалисты свяжутся с Вами в самые кротчайшие сроки.

+7

Продажа квартир и комнат на вторично рынке жилья.

Чтобы купить квартиру в СПб или найти подходящий вариант продажи квартиры в Петербурге на вторичном рынке жилья, требуется потратить много времени и усилий. Квартира или комната в центре Петербурга может быть существенно дороже, чем идентичная по площади в спальном районе. В первую очередь при покупке квартиры в Петербурге надо определиться с ценовой категорией, чтобы затем сосредоточиться на качестве предлагаемого жилья. Чем выше класс недвижимости, тем больше её стоимость. На сайте компании «Русский Фонд Недвижимости» вы найдете все виды вторичного жилья, от дешевых комнат и доступных квартир до элитных квартир в центре города.


Преимущества покупки квартиры на вторичном рынке:

Покупка квартиры или комнаты на вторичном рынке является самым распространенным видом сделок с недвижимостью. Очевидным преимуществом покупки квартиры на вторичном рынке по сравнению с первичным, является то, что эта недвижимость уже существует. Жилье можно посмотреть, оценить плюсы и минусы. Также, преимуществом этого сегмента является большое  разнообразие предложений: широкий выбор по типам домов, годам постройки, расположению. На вторичном рынке можно выбрать квартиру на любой вкус или соответственно финансовой возможности.


Преимущества сотрудничества с «Русским Фондом Недвижимости».

Позвоните нам и убедитесь, что купить квартиру в Петербурге можно  легко, доступно и комфортно! «Русский Фонд Недвижимости» имеет более двух десятков представительств в Санкт-Петербурге и Ленинградской области. Специалисты нашей компании обладают высокой квалификацией, подтверждённой соответствующими сертификатами, и уникальным опытом работы на рынке недвижимости.

  У нас работают только профессионалы,
  Есть  доступ к профессиональным базам данных по недвижимости
Мы проверяем всю документацию, связанную со сделкой купли-продажи

Мы оказываем следующие услуги при операциях с недвижимостью:

  Подбор вариантов и покупка квартиры или комнаты.
  Прямая продажа квартиры  или продажа с встречной покупкой
  Продажа и покупка квартир класса «бизнес», «элита» и «премиум»
  Полное сопровождение сделки:
  Экспертная оценка рыночной стоимости квартиры
  Проверка «чистоты» истории квартиры
  Помощь в оформлении документов
  Консультации по ипотеке и содействие в получение кредита
  Помощь в приватизации
  Расселение коммунальных квартир


Как правильно выбрать квартиру на вторичном рынке.

Рынок вторичной недвижимости часто таит в себе опасности. Купив квартиру, до сих пор можно столкнуться с ситуацией, что на приобретенной жилплощади окажутся приписанными несовершеннолетние дети или недееспособные граждане. Чтобы не оказаться жертвой мошенников, и избежать других проблем и неоправданных затрат времени, следует воспользоваться услугами профессионального риэлторского агентства, такого как, например, «Русский Фонд Недвижимости». Специалисты компании помогут подобрать подходящий вариант и будут сопровождать сделку на всех этапах.

Этот сайт использует файлы cookie для улучшения пользовательского опыта. Cookie - это небольшие текстовые файлы, которые сохраняются на вашем устройстве и помогают нам запоминать ваши предпочтения, анализировать посещаемость сайта и предоставлять более персонализированный контент. Использование файлов cookie позволяет нам сделать сайт удобнее для вас. Политика конфиденциальности
Принять Отказаться