Продажа квартир и комнат

Комнаты
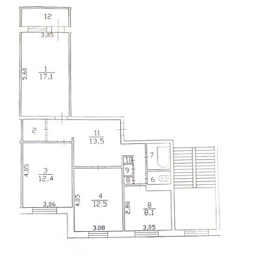
Например: Массальского, 4
Ванные
3-х комнатная квартира

Победа пос., Мира ул. м.Площадь Ленина


72.5 м2
Общая
42.8 м2
Жилая
8.3 м2
Кухня
192  Большая семейная квартира в экологичном районе у «Ласточки» Продается просторная 3-комнатная квартира (72,5 м²) в п. Победа. Идеальный вариант для тех, кто ищет тишину и природу, не теряя связи с Петербургом. ПОЧЕМУ ЭТА КВАРТИРА ВАМ ПОНРАВИТСЯ: Правильная планировка: Двусторонняя квартира — в ней всегда много света и легко проветривать. Все комнаты изолированы (17.1 + 12.9 + 12.8 м²). Места для хранения: Огромная прихожая (почти 15 м²!) и 3 кладовых (включая одну большую на 2.1 м²). Можно организовать гардеробную и освободить комнаты от лишних шкафов. Тепло и тишина: Квартира расположена в середине дома (не угловая), дом 1991 года постройки — надежная панель с хорошей теплоизоляцией. Чистый холст: Квартира требует косметического ремонта — вы не переплачиваете за чужие обои и можете реализовать свой дизайн-проект. ИНФРАСТРУКТУРА ДЛЯ ЖИЗНИ: Все под рукой: В 5 минутах пешком — «Пятерочка», «Магнит», мини-Лента, школа, детский сад и медицинский кабинет. Транспорт: До ж/д ст. Каннельярви 5 минут на автобусе. Оттуда на скоростной «Ласточке» вы в центре СПб (Финляндский вокзал) всего за 35–40 минут. Природа: Поселок окружен сосновым лесом и озерами. Летом — грибы, ягоды и пляжный отдых в пешей доступности. ЮРИДИЧЕСКИЕ ДЕТАЛИ: 3 взрослых собственника. Полная готовность к сделке, подходит под ипотеку любой сложности. Рассматриваем встречную покупку (2 к.кв. в этом же поселке на 1-2 этаже). Адрес: Выборгский р-н, п. Победа, ул. Мира, 4. Звоните прямо сейчас! Организуем просмотр по предварительной договоренности.
Цена
5 400 000 ₽

3-х комнатная квартира

Красное Село г., Гатчинское шос. м.Проспект Ветеранов


70.1 м2
Общая
48.5 м2
Жилая
6.4 м2
Кухня
192  3-к. квартира 70.1 м² с видом на Дудергоф и городской пропиской! Продается просторная и светлая 3-комнатная квартира в экологически чистом районе Санкт-Петербурга (Красное Село). Идеальный вариант для тех, кто ищет тишину загородной жизни с городским комфортом и пропиской СПб. О КВАРТИРЕ: Планировка: Общая площадь 70.1 кв.м. Комнаты смежно-изолированные, правильной формы. Состояние: Квартира в хорошем состоянии — можно заезжать и жить. Установлены  стеклопакеты. Бонус: Застекленная лоджия с приятным видом. Этаж: 5-й этаж — никаких соседей сверху и лишнего шума. Коммуникации: Все центральные (отопление, ГВС, газ). ИНФРАСТРУКТУРА И ЛОКАЦИЯ: Дом расположен на границе Красного Села и пос. Виллози. В шаговой доступности (5–10 мин): Природа: Дудергофские высоты и озеро — идеальные места для прогулок и отдыха. Спорт: Спортивный комплекс, каток, площадки. В 10 минутах на авто — горнолыжный курорт «Туутари парк». Социалка: Амбулатория, детский сад, школа, почта, магазины и дом культуры. ТРАНСПОРТНАЯ ДОСТУПНОСТЬ: 10 минут пешком до ж/д станции «Можайская» (электричка до Балтийского вокзала). 30–40 минут на транспорте до метро «Проспект Ветеранов». 10 минут до Гатчины, 5 минут до центра Красного Села. УСЛОВИЯ ПРОДАЖИ: Один взрослый собственник. В собственности с 2017 года (полная стоимость в договоре). Подходит под ипотеку любого банка. Встречная покупка: подбираем 1-к. квартиру в Красном Селе. Звоните и записывайтесь на просмотр! Показ по предварительной договоренности.
Цена
7 600 000 ₽

3-х комнатная квартира

Красное Село г., Геологическая ул. м.Проспект Ветеранов


61.8 м2
Общая
44 м2
Жилая
8 м2
Кухня
Продается трехкомнатная квартира в Санкт-Петербурге, Красное Село, на улице Геологической. Квартира находится на пятом этаже пятиэтажного кирпичного дома. Общая площадь — 61,8 кв. м. Комнаты изолированные: 17 кв. м., 15 кв. м. и 12 кв. м. Кухня — 8 кв. м., есть большая утепленная лоджия, с теплым полом. В квартире установлены двухкамерные стеклопакеты, натяжные потолки. Квартира теплая и в хорошем состоянии. Вся необходимая инфраструктура рядом: два продуктовых магазина, школа, детский сад, аптека, супермаркет и спортивный комплекс Газпрома. Все в 15 минутах ходьбы. Автобусная остановка рядом с домом, прямой автобус до метро Московская, Ветеранов, Ленинский. Обременение Сбербанка, возможен обмен.
Цена
9 990 000 ₽

Затрудняетесь с выбором?

Не тратьте время на поиск и анализ множества предложений недвижимости
Мы сделаем это за вас профессионально, быстро, предложив оптимальные варианты по выгодной цене!

3-х комнатная квартира

Тамбовская ул. м.Обводный канал


58.9 м2
Общая
37.7 м2
Жилая
7.5 м2
Кухня
Ул. Тамбовская, 43 литер Б В шаговой доступности от м. Обводный канал предлагается к продаже 3-х к квартира. Квартира расположена на 3 этаже 4-х этажного кирпичного дома 1906 года постройки, старый фонд. Перекрытия из сборного железобетонного настила. Капитальный ремонт дома был в 2015 и в 2020 годах: ремонт систем теплоснабжения, электроснабжения, водоотведения, ремонт крыши. Несущие стены по периметру квартиры. S квартиры 58.9 м2. Комнаты правильной формы, смежно- изолированные 10м2 + (16.9 м2 + 10.8 м2), кухня 7,5 м2, раздельный с/у с ванной. Газовая колонка. Квартира односторонняя, окна во двор. Квартира требует ремонта. Чистая парадная, лифта нет. В шаговой доступности метро,  школа, художественная школа, автовокзал, Сбербанк, сквер. Никто не живет и не прописан. Квартира не сдавалась. Первый собственник. Прямая продажа. Любая форма оплаты. Звоните, с удовольствием покажем!
Цена
9 950 000 ₽

3-х комнатная квартира

Сертолово г., Центральная ул. м.Проспект Просвещения


57.2 м2
Общая
43.6 м2
Жилая
6 м2
Кухня
ВНЕСЕН АВАНС ЗА КВАРТИРУ! Продаётся уютная и функциональная 3-х комнатная квартира в городе Сертолово, ближайшем пригороде Санкт-Петербурга. Ремонт с современными решениями (все внутренние старые стены и пол перестроены заново, смонтирован натяжной потолок, заменены окна, водопровод, канализация, сантехника, грамотная разводка электрики с большим количеством розеток). Квартира двусторонняя, две изолированные спальни, большая гостиная, гардеробная. В зонах отделки кафелем смонтирована система тёплого пола (кухня, санузел, прихожая). Перепланировка квартиры сделана по проекту и зарегистрирована. Тёплый панельный дом 1994 года постройки. Чистая, отремонтированная парадная. Зелёный двор с достаточным количеством мест для парковки автомобиля. В окружении дома в шаговой доступности есть вся необходимая инфраструктура (четыре детских сада, три школы, Сертоловская городская больница, поликлиника, магазины, пункты выдачи онлайн-магазинов, спортивные клубы, бассейн, кафе, парк для прогулок и выгула домашних животных, аптеки, МФЦ, отделение банка, рынок и т.д. и т.п.). Рядом с домом конечная остановка общественного транспорта (маршрутки до станций метро Озерки, Проспект Просвещения, железнодорожных станций Песочная, Парголово). Квартира без обременений, один взрослый собственник (более 5 лет). Просмотры по предварительной договоренности
Цена
6 979 000 ₽

3-х комнатная квартира

Кузьмоловский пос., Рядового Леонида Иванова ул. м.Девяткино


55.8 м2
Общая
38.6 м2
Жилая
5 м2
Кухня
Продается трехкомнатная квартира , с ремонтом, стеклопакеты, произведена замена батареи отопительные, новая электропроводка, гостинная, кухня , сан.узел и прихожая с ремонтом. Квартира находится в центре поселка.Хорошее транспортное сообщение с городом Спб. Балкон застекленный и утепленный.Прекрасное место для постоянного проживания и отдыха. Близость города Спб делает возможность совмещать работу в г.Спб с комфортным проживанием.Остается встроенная кухня с посудомойкой  ,электрической духовкой и вытяжкой, в прихожей встроенный шкаф-купе с мебелью для прихожей. Газовая колонка новая.Все трубы по водоснабжению заменены.
Цена
6 700 000 ₽

3-х комнатная квартира

Мечникова просп. м.Лесная


58.7 м2
Общая
44 м2
Жилая
6 м2
Кухня
Санкт-Петербург, проспект Мечникова д. 14А Продается 3я квартира, общая площадь 58,7 кв.м, жилая 44 кв м,комнаты смежно-изолированные, кухня 5,7 кв м, с/у раздельный, балкон. кладовки, окна во двор. Квартира расположена в зелёном квартале, прекрасный вид из окна, много парковочных мест. Развитая инфраструктура района, рядом есть все:парки, школы, гимназия, дет. сады, спортплощадка, дет. площадка, магазины; удобная транспортная доступность. Кап ремонт дома в 2014 году. Три собственника, один несовершеннолетний. Обременений и долгов нет. Встречная покупка квартиры в другом районе.
Цена
10 650 000 ₽

3-х комнатная квартира

Вырица пос., Оредежская ул.


61.8 м2
Общая
45.1 м2
Жилая
5.3 м2
Кухня
В центре посёлка Вырица, в Гатчинском районе Ленинградской области, продаётся трёхкомнатная квартира на втором этаже пятиэтажного панельного дома. Дом окружён соснами. Все комнаты изолированы и выходят на разные стороны здания. Во дворе есть парковка и детская площадка. До пляжа на реке Оредеж, магазинов, аптеки и медицинского центра всего три минуты пешком. Детский сад на берегу Оредежа находится в пяти минутах ходьбы.
Цена
6 350 000 ₽

3-х комнатная квартира

Пулковская ул. м.Звездная


70.3 м2
Общая
37 м2
Жилая
13 м2
Кухня
Аукцион!!! Предлагаем к продаже отличную квартиру недалеко от метро Звёздная. Развитая инфраструктура района, отличная транспортная доступность. Покупка возможна только за наличный/безналичный расчёт, без привлечения ипотечных средств, средств материнского капитала и субсидий. Звоните, отвечу на вопросы.
Цена
15 750 000 ₽

3-х комнатная квартира

Кирилловская ул. м.Площадь Александра Невского


79.3 м2
Общая
44.6 м2
Жилая
12 м2
Кухня
Квартира с петербургским характером. Исторический центр. 3 центральных станции метро — в 20 минутах пешком. До метро Чернышевская, Александра Невского, Площадь Восстания  — 20 минут пешком,  до Невского проспекта — 7 мин. Шестиэтажный кирпичный дом 1908 года — прочная архитектура, проверенная временем. Этаж средний — всегда комфортно. Квартира теплая зимой и прохладная летом, благодаря среднему этажу и качественным кирпичным стенам. Все коммуникации заменены, ремонт делался для себя. Во дворе — закрытая парковка, никаких ежедневных сложностей с поиском места. Окна во двор, тихо. Комнаты изолированы. Дом ухожен. Соседи — спокойные. Сценарий для вас: Вы покупаете не просто квадратные метры, вы получаете часть исторического города. Это квартира, где живут не просто люди, а истории. Один взгляд из окна — и вы в атмосфере Петербурга: старые улочки, дворики и свежесть городского воздуха. Квартира продается из-за необходимости приобретения жилья детям. С реальным покупателем, торг уместен. Идеально подойдёт: - Для тех, кто ценит жизнь в центре со спокойствием и комфортом; - Для инвесторов — вторичка с историей, готова к сдаче или перепланировке; - Для семей с детьми — здесь уютно, безопасно и легко добираться. Юридически всё идеально: Один взрослый собственник, чистая прозрачная история, свободная продажа. Показ — в любой день, в удобное для вас время. Звоните — Такие квартиры долго не висят. Не дайте ей уйти другому.
Цена
20 000 000 ₽

3-х комнатная квартира

Рощино пос., Садовая ул. м.Беговая


75.4 м2
Общая
46.9 м2
Жилая
8.3 м2
Кухня
ЛО, Bыборгского р-н, г.п. Poщино    Просторная квартира общей  плoщaдью 75,4 кв.м с прекрасной планировкой в центре г.п.Рощино . Окна выхoдят в благоустрoенный  двop и на улицу. Комнаты  17,1 + 17,2+12,6 кв.м, куxня 8,3 кв.м, большая прихожая 14,5 кв.м, раздельный санузел, застекленная и  утепленная большая лоджия. Качество ремонта позволяет новым владельцам сразу заехать и жить, не тратя время и деньги на доработки. Большая часть мебели остается в подарок новым собственникам.    Рядом вся городская инфраструктура. Место исключительное по красоте и чистоте. Лес, озеро и непосредственная близость к городу Санкт-Петербургу. Рощино - это очень динамично развивающееся место, где Вы найдете все: школу, д/сад, почту, Сбербанк, поликлинику, Администрацию, ж/д вокзал, развитую сеть магазинов и кафе, санатории и многое другое, что требуется для полноценной комфортной жизни. Вблизи от поселка находится горнолыжный курорт Пухтолова гора, красивые озёра, в 10 км Финский залив. Прекрасно развитая инфраструктура и отменная транспортная доступность. Поселок находится в 45 км. от КАД. Идеальное место для постоянного проживания и отдыха. Один взрослый собственник, документы проверены,  прямая продажа.
Цена
8 400 000 ₽

3-х комнатная квартира

Новое Девяткино дер., Ветеранов ул. м.Девяткино


64 м2
Общая
43.5 м2
Жилая
8.6 м2
Кухня
Продается уютная трехкомнатная квартира 64 кв.м с дизайнерским ремонтом в д. Новое Девяткино, улица Ветеранов, дом 2. Квартира подходит для покупателей с ипотечными средствами, субсидией и материнским капиталом. Продажа со встречной покупкой студии в этом же районе. Три взрослых собственника и один несовершеннолетний. Квартира двухсторонняя. Из окон открывается вид на тихий двор, где расположена детская и спортивная площадки. Дом панельного типа, построен в 1976 году, оборудован мусоропроводом. Все комнаты изолированы: 16.5+16+11 кв.м, что обеспечивает комфорт и приватность, кухня 8.6 кв.м квадратной формы. В квартире сделан ремонт. В двух комнатах: ламинат, натяжные потолки со встроенными светильниками, новые обои, двери( наличники в наличии, но не прибиты), в одной комнате 16 кв.м сделан частичный ремонт: ламинат, натяжной потолок со встроенными светильниками, выровнены стены, двери, осталось только поклеить новые обои (есть в наличии). В квартире установлены шкафы и сделана гардеробная. На кухне предусмотрены все необходимые удобства для комфортного приготовления пищи. Кухонный гарнитур остаётся новым хозяевам. Газовая плита и электрический духовой шкаф. Холодильник и стиральную машину возможно оставить новым хозяевам по договоренности. Совмещенный санузел выполнен в современном стиле, новая сантехника и кафельная плитка. Два балкона не застеклены. Парковка открытая во дворе, что удобно для владельцев автомобилей. Развитая инфраструктура: рядом школа и детский сад, продуктовые супермаркеты Дикси, Пятёрочка, Магнит, Лента в пешей доступности, Фитнес Хаус, салоны красоты, кафе и рестораны. До метро Девяткино 10 минут транспортом или 30 минут пешком. Удобный выезд на КАД.
Цена
8 200 000 ₽

Закажите консультацию специалиста

Оставьте заявку
Нажимая на кнопку «Отправить заявку», Вы даете согласие на обработку своих персональных данных.
×
продажа
Что вы хотите продать?
Сколько комнат?
Тип объекта?
В каком регионе?
В каком районе Санкт-Петербурга
В каком районе Ленинградской области?

Оставьте Ваш контакт и наши специалисты свяжутся с Вами в самые кротчайшие сроки.

+7
×
новостройка
Какие районы Санкт-Петербурга Вас интересуют?
С какой целью Вы планируете приобрести квартиру?
Сколько комнат должно быть в Вашей будущей квартире?
Какой вариант отделки Вам необходим?
Когда Вы хотите заехать?
В какой бюджет хотите уложиться?

Оставьте Ваш контакт и получите подборку квартир без риска столкнуться с мошенничеством и недостроем.

+7
×
сдать
Что вы хотите сдать?
Скольки комнатная квартира?
Какой тип коммерческой недвижимости вы хотите сдать?
В каком регионе?
В каком районе Санкт-Петербурга
В каком районе Ленинградской области?

Оставьте Ваш контакт и наши специалисты свяжутся с Вами в самые кротчайшие сроки.

+7

Продажа квартир и комнат на вторично рынке жилья.

Чтобы купить квартиру в СПб или найти подходящий вариант продажи квартиры в Петербурге на вторичном рынке жилья, требуется потратить много времени и усилий. Квартира или комната в центре Петербурга может быть существенно дороже, чем идентичная по площади в спальном районе. В первую очередь при покупке квартиры в Петербурге надо определиться с ценовой категорией, чтобы затем сосредоточиться на качестве предлагаемого жилья. Чем выше класс недвижимости, тем больше её стоимость. На сайте компании «Русский Фонд Недвижимости» вы найдете все виды вторичного жилья, от дешевых комнат и доступных квартир до элитных квартир в центре города.


Преимущества покупки квартиры на вторичном рынке:

Покупка квартиры или комнаты на вторичном рынке является самым распространенным видом сделок с недвижимостью. Очевидным преимуществом покупки квартиры на вторичном рынке по сравнению с первичным, является то, что эта недвижимость уже существует. Жилье можно посмотреть, оценить плюсы и минусы. Также, преимуществом этого сегмента является большое  разнообразие предложений: широкий выбор по типам домов, годам постройки, расположению. На вторичном рынке можно выбрать квартиру на любой вкус или соответственно финансовой возможности.


Преимущества сотрудничества с «Русским Фондом Недвижимости».

Позвоните нам и убедитесь, что купить квартиру в Петербурге можно  легко, доступно и комфортно! «Русский Фонд Недвижимости» имеет более двух десятков представительств в Санкт-Петербурге и Ленинградской области. Специалисты нашей компании обладают высокой квалификацией, подтверждённой соответствующими сертификатами, и уникальным опытом работы на рынке недвижимости.

  У нас работают только профессионалы,
  Есть  доступ к профессиональным базам данных по недвижимости
Мы проверяем всю документацию, связанную со сделкой купли-продажи

Мы оказываем следующие услуги при операциях с недвижимостью:

  Подбор вариантов и покупка квартиры или комнаты.
  Прямая продажа квартиры  или продажа с встречной покупкой
  Продажа и покупка квартир класса «бизнес», «элита» и «премиум»
  Полное сопровождение сделки:
  Экспертная оценка рыночной стоимости квартиры
  Проверка «чистоты» истории квартиры
  Помощь в оформлении документов
  Консультации по ипотеке и содействие в получение кредита
  Помощь в приватизации
  Расселение коммунальных квартир


Как правильно выбрать квартиру на вторичном рынке.

Рынок вторичной недвижимости часто таит в себе опасности. Купив квартиру, до сих пор можно столкнуться с ситуацией, что на приобретенной жилплощади окажутся приписанными несовершеннолетние дети или недееспособные граждане. Чтобы не оказаться жертвой мошенников, и избежать других проблем и неоправданных затрат времени, следует воспользоваться услугами профессионального риэлторского агентства, такого как, например, «Русский Фонд Недвижимости». Специалисты компании помогут подобрать подходящий вариант и будут сопровождать сделку на всех этапах.

Этот сайт использует файлы cookie для улучшения пользовательского опыта. Cookie - это небольшие текстовые файлы, которые сохраняются на вашем устройстве и помогают нам запоминать ваши предпочтения, анализировать посещаемость сайта и предоставлять более персонализированный контент. Использование файлов cookie позволяет нам сделать сайт удобнее для вас. Политика конфиденциальности
Принять Отказаться