Продажа квартир и комнат

Комнаты
Например: Массальского, 4
Ванные
2-х комнатная квартира

Сертолово г., Верная ул. м.Беговая


53.3 м2
Общая
27 м2
Жилая
14.5 м2
Кухня
Ленинградская обл., Всеволожский м.р-н, Сертоловское г.п., г. Сертолово, мкр. Черная речка, ул. Верная, д. 5, корп. 2 Предлагается просторная 2-хкомнатная квартира в ЖК Золотые купола. Квартира расположена  в ближайшем пригороде Санкт-Петербурга, в окружении леса и близости от озер (Медное озеро, два карьера)  в современном доме 2016 года постройки. Прекрасная транспортная доступность до СПб и мест отдыха. Рядом Выборгское шоссе. До м.Просвещения - 25 минут. Две изолированные комнаты, большая кухня-гостиная, застекленная лоджия с отдельным выходом на улицу! Во дворе - детская площадка, парковочные места, развитая инфраструктура. Квартира продается с торгов. Возможно понижение цены.
Цена
5 814 000 ₽

2-х комнатная квартира

Сестрорецк г., Коробицына ул. м.Беговая


78.2 м2
Общая
41.9 м2
Жилая
15 м2
Кухня
Санкт-Петербург, р-н Курортный, мкр. Сестрорецк, ул. Коробицына, 2Б Дом 2013 г. постройки, из кирпича. Квартира расположена на 3 из 4 этажей, всего в парадной три квартиры по одной на этаже, первый этаж не жилой, на третьем этаже квартира-мансарда. Апартаменты с двумя комнатами, просторной кухней и балконом с двумя выходами: из кухни и из спальни открывается вид на лес. Лоджия с двумя выходами: с коридора и со второй спальни вид во двор комплекса. В квартире большой коридор, большая ванная с джакузи, тёплый пол в ванной и в коридоре. Просторная кухня, имеется новая техника (духовой шкаф, варочная панель, посудомоечная машина, холодильник, свч-печь). Столешница кухни и фартук выполнены из камня по индивидуальному проекту. Две изолированные комнаты( не проходные) с деревянной мебелью и кроватями. А также имеется вместительная гардеробная со множеством отделений для хранения. Система кондиционирования, две сплит системы. Квартира тёплая, солнечная и тихая, так как кухня и одна спальня выходят на сторону, где расположен лес. Уединённое спокойное место с адекватными соседями в самом престижном районе у озера Разлив. Через дорогу пляж и озеро можно купаться, рыбачить, устраивать пробежки и пикники. Спортивная площадка во дворе комплекса. Своё парковочное место под крышей с возможным хранением прицепа, лодки и т.д. Закрытая от посторонних охраняемая территория. Рядом спортивный клуб с теннисом и фитнесом. Акваклуб с бассейном и сауной. Ресторан в 10 минутах ходьбы. Отличная транспортная доступность кад, зсд( до Ленинского проспекта 35 мин. от дома в любое время). Совсем скоро откроют Сестрорецкий Курорт со всевозможными процедурами для здоровья. В этом году пляж у дома будет реконструирован: проложат дорожки, установят детские спортивные площадки, спасательную станцию, навесы, лежаки, качели и велопарковки.
Цена
18 700 000 ₽

2-х комнатная квартира

Уточкина ул. м.Комендантский проспект


45.3 м2
Общая
28.2 м2
Жилая
7 м2
Кухня
Санкт-Петербург, ул. Уточкина, дом 6, корп. 1. В ПРЯМОЙ ПРОДАЖЕ двухкомнатная квартира рядом с метро Комендантский проспект. - О КВАРТИРЕ - Общая площадь - 45,3 кв.м. Комнаты - 10+18,2 кв.м. Кухня - 6,9 кв.м. Прихожая- 6,2 кв.м. Ванная - 2,1 кв.м. Сан. узел - 1 кв.м. Кладовка - 0,9 кв.м. Лоджия - 4 кв.м. - О ДОМЕ - Дом серии 1ЛГ-504Д, 1988 года постройки. - территория двора ухоженная; - в парадной чисто, без посторонних запахов - Инфраструктура - Во дворе дома находятся детский сад и школа. Городские детская и взрослая поликлиники в 10-15 мин. пешком. Рядом супермаркеты, торговые центры и рынок `Долгоозерный`. - Транспортная доступность - Хорошая транспортная доступность, рядом выезд на ЗДС, что дает возможность быстро добраться в любую точку города. До метро Комендантский проспект 5 минут пешком. ПРО ДОКУМЕНТЫ: два взрослых собственника; материнский капитал, при покупке квартиры, не использовался; обременений нет. Полная стоимость в договоре. Звоните, с удовольствием расскажу подробнее и проведу комфортную и безопасную сделку!
Цена
10 900 000 ₽

Затрудняетесь с выбором?

Не тратьте время на поиск и анализ множества предложений недвижимости
Мы сделаем это за вас профессионально, быстро, предложив оптимальные варианты по выгодной цене!

2-х комнатная квартира

Ломоносов г., Владимирская ул. м.Проспект Ветеранов


42 м2
Общая
27.7 м2
Жилая
 —
Кухня
Продается квартира в зеленом районе Ломоносова. Тихий двор, уютная атмосфера,  вся инфраструктура в шаговой доступности: магазины, школа, детский сад, аптеки, транспорт. Недалеко расположен парк для прогулок и отдыха, Финский залив-прекрасное место для прогулок и отдыха на природе. Прямая продажа.
Цена
6 000 000 ₽

Комната в 2-комн. квартире

Щеглово пос. м.Улица Дыбенко


50.9 м2
Общая
10.3 м2
Жилая
9.4 м2
Кухня
Ленинградская обл, п.Щеглово. Комната 10,3 кв.м в двухкомнатной квартире.  Комната с балконом.  Светлая, теплая. Квартира  требует косметического ремонта.  Квартира на 4 этаже 5-и этажного дома. Дом удачно расположен . Рядом д/с, школа , муз.школа , амбулатория, сетевые магазины. До ж/д Щеглово 15 минут  пешком.. Прямая продажа.  Согласие от сособственника имеется.
Цена
2 000 000 ₽

2-х комнатная квартира

Рахья пос., Станционная ул. м.Ладожская


49 м2
Общая
29 м2
Жилая
8.2 м2
Кухня
Всеволожский р-н гп. Рахья Отличный вариант для комфортной жизни — светлая, тёплая и аккуратная квартира общей площадью 50 м². Расположена на удобном 3 этаже 5-этажного кирпичного дома. Планировка и состояние: Изолированные комнаты: 15,5 м² и 13,6 м² Просторная кухня 8 м² — удобно для всей семьи Квартира в отличном состоянии — можно заехать и жить Санузел раздельный, полностью в кафеле Все трубы заменены на современные пластиковые Горячая вода — газовая колонка (всегда есть горячая вода) Бонус для покупателя: Кухонный гарнитур с посудомоечной машиной уже входит в стоимость Мебель остаётся по договорённости за отдельную плату. Локация: Квартира находится в посёлке с развитой инфраструктурой в 25 км от Санкт-Петербурга по Дороге жизни.В шаговой доступности: общеобразовательная школа, детский сад, музыкальная школа, сетевые магазины, церковь. Рядом сосновый лес для прогулок с детьми и питомцами. Условия покупки: Подходит под ✔ ипотеку ✔ материнский капитал 1 собственник. Мат. капитал при покупке не использовался. Квартира в залоге у Сбербанка (небольшой остаток, возможно закрытие) ПРЯМАЯ продажа, но освобождение объекта к 1 июня. Звоните! Организуем показ в удобное для вас время.
Цена
4 800 000 ₽

2-х комнатная квартира

Обводного канала наб. м.Фрунзенская


52.4 м2
Общая
25.2 м2
Жилая
7.3 м2
Кухня
Санкт-Петербург, наб.Обводного канала,д.123 Уютная, светлая и качественно отремонтированная квартира, расположенная во внутренней части Доходного дома 1914 года. Все окна квартиры выходят во внутренний зеленый и тихий двор с закрытой от посторонних территорией. На лестничном пролете всего 2 квартиры(фото), в квартире выполнен качественный ремонт в соответствии с проектом, согласованным с МВК и узаконенной перепланировкой. Все коммуникационные сети (электрика,водопровод,водоотведение,отопление) заменены и рассчитаны на беспроблемную эксплуатацию на несколько десятилетий вперед. При формировании проекта продумано всё максимально и в результате Вас будут радовать: - 2 изолированные комнаты с гардеробными; - грамотно спроектированная кухня; - просторный сан.узел; - постирочная с возможностью беспроблемной сушки белья и хранения уборочного инвентаря; - дополнительная гардеробная, полностью компенсирующая отсутствие балкона; - уютная и удобная входная группа. Продается квартира с условием приобретения 1комнтатной квартиры, поэтому возможен вариант обмена на вашу недвижимость с доплатой. Однако при необходимости можем выйти на прямую продажу с последующим приобретением альтернативного жилья. Один совершеннолетний собственник более 10 лет.
Цена
16 780 000 ₽

2-х комнатная квартира

Гатчина г., Володарского ул. м.Проспект Ветеранов


45 м2
Общая
31 м2
Жилая
6 м2
Кухня
Ленинградская область,Гатчина,ул Володарского,дом 30. Продаётся уютная двухкомнатная квартира в Гатчине! Адрес: Гатчина, улица Володарского, дом 30. Кооперативный дом!!!!Это огромный плюс+ Ищете комфортное жильё в центре города? Обратите внимание на эту прекрасную двухкомнатную квартиру — идеальный вариант для жизни и инвестиций! Что вас ждёт в квартире: * Общая площадь: 45 м². * Комнаты: 18 м² и 13 м² — достаточно места для всей семьи. * Кухня: 6 м² — компактная, но функциональная. * Санузел: совмещённый, с ванной. * Ремонт: свежий — можно сразу заезжать и жить, не тратя время и деньги на обновления. * Отделка стен: венецианская штукатурка — изысканное решение, придающее интерьеру благородный и роскошный вид. * Декоративные элементы: неповторимая лепнина на стенах и потолке — изысканная деталь, которая придаёт квартире особый шарм и подчёркивает её индивидуальность. * Вид из окон: тихий двор — спокойствие и уединение в самом центре города. Преимущества расположения: * Расположена в самом центре Гатчины — сердце города у ваших ног! * В шаговой доступности:    * пункты выдачи Wildberries и Ozon — удобно получать онлайн‑заказы;    * пенсионный фонд и МФЦ — всё для решения официальных вопросов рядом;    * магазины, кафе и другие объекты инфраструктуры. * Всего 5 минут пешком до:    * железнодорожной станции Татьянино — быстрые поездки в Санкт‑Петербург и другие города;    * автобусной остановки — удобный общественный транспорт в любом направлении. Этот вариант подойдёт тем, кто ценит: * комфорт и уют; * эстетику и стильные интерьерные решения (венецианская штукатурка и лепнина создают атмосферу утончённости); * развитую инфраструктуру; * транспортную доступность; * историческую атмосферу центра Гатчины. Не упустите шанс стать владельцем квартиры с характером в одном из самых удобных районов города! Записывайтесь на просмотр прямо сейчас — ваш новый дом ждёт вас!
Цена
6 100 000 ₽

2-х комнатная квартира

Колпино г., Вавилова ул.


43.5 м2
Общая
27.5 м2
Жилая
6.1 м2
Кухня
Санкт-Петербург, Колпинский р-н, Колпино г., Вавилова ул.,д.26 Очень теплая и уютная квартира в центре г.Колпино. Хорошее состояние, не требующее дополнительных вложений на косметический ремонт. Комнаты изолированы, хорошие межкомнатные двери, качественно застеклен и утеплен балкон. Расположение замечательное: Окно с выходом на балкон - юг, оставшиеся три окна на запад. Соседний дом находится в приятном отдалении, непосредственно перед окнами зеленая зона. Один совершеннолетний собственник более 10 лет, легкая встречная покупка. Рассмотрим любую форму приобретения, в том числе и обмен на вашу недвижимость с доплатой. Разумный предметный торг возможен после просмотра.
Цена
7 290 000 ₽

2-х комнатная квартира

Сестрорецк г., Токарева ул. м.Беговая


54.5 м2
Общая
30.9 м2
Жилая
8.7 м2
Кухня
Санкт-Петербург, Сестрорецк, ул. Токарева 8. Предлагается к покупке уютная, светлая квартира в многоэтажном кирпичном доме 1996 года постройки, расположенном в центре популярного курортного места Санкт-Петербурга - в городе Сестрорецке. Квартира просторная, двухсторонняя 54,5 м2. Комнаты изолированные 14,5 и 16,4 м2, правильной формы. Вместительная кухня правильной формы 8,7 м2 с выходом на большую застекленную лоджию, которую можно уютно благоустроить и наслаждаться вечерними закатами. Экологически чистый курортный район. В Сестрорецке нет вредной промышленности. Очень развитая инфраструктура района. В пешей доступности - магазины, банки, аптеки, детские дошкольные учреждения, общеобразовательные и музыкальные школы, медицинские и оздоровительные, спортивные комплексы, ж/д вокзал. Рядом раскинулся парк Дубки, уникальный исторический памятник, сохранивший статус популярного места для отдыха, который соответствует современным стандартам зоны для отдыха: здесь оборудованы теннисный корт, конно-спортивный комплекс, лодочная станция, детские площадки и секции для творческих и интеллектуальных занятий. Так же в  нескольких минутах пешей прогулки  прекрасные песчаные пляжи Финского залива с видами на форты Кронштадта. Отличная транспортная доступность - 20-30 минут до Санкт-Петербурга на машине или многочисленном общественном авто и ж/д транспорте, 5 минут до КАД. Один взрослый собственник. Квартира продается в прямой продаже. Для приобретения можно воспользоваться ипотекой банков ПАО Сбербанк, ПАО ВТБ 24 и др. Окажем помощь с оформлением ипотеки и др. документов. Курортный город, хорошая экология, все для комфортной жизни! Ждем Вас!
Цена
13 200 000 ₽

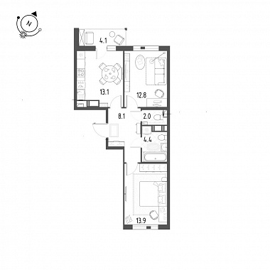
2-х комнатная квартира

Шушары пос., Чудовская ул. м.Купчино


56.4 м2
Общая
26.7 м2
Жилая
13.1 м2
Кухня
Продается уютная  2х комнатная квартира ( 3Е) , где 2 полноценные комнаты + кухня-гостинная,   в современном жилом комплексе ЖК Монография  . 56,4 м2 Дом комфорт-класса.         На этаже 5 квартир.         Закрытый двор. Парные выполнены в современном стиле. Квартира на 10 этаже , в доме 12 этажей.         В доме современным подземным паркинг, а это прежде всего, безопасность вашего автомобиля.         Также в доме есть предусмотрен пандус. Это дает возможность очень  легко перемещаться с коляской или велосипедом. Безбарьерная входная группа-  вход в парадную без порожка.         Развитая инфраструктура, школа, детский сад и поликлиника - рядом.         На данный момент до метро Купчино, м. Звездная и м. Шушары можно добраться за 10-12 минут на машине.         Выезд на КАД, рядом, а так же в ближайшее время , рядом  с домом будет остановка трамвая `Купчино - Шушары`, до ст. метро Купчино можно б добраться за 10 минут на трамвае. Это трамвайная ветка  уже готова к эксплуатации!! Квартира светлая , двухсторонняя, видовая. С лоджии открываются прекрасный вид на панораму города. Кухня-гостиная 13,1 м2. Прихожая 8,1м2. Санузел 2,0 м2. Ванная комната 4,4 м2. Комнаты 13,9м2+12,8м2 Лоджия 4,1м2 Детские площадки прорезиненные. Инфраструктура развита. В шаговой доступности новая школа, магазины, пункты выдачи маркетплейсов, продуктовые магазины 24 часа. Квартира без отделки. Ремонт можно осуществить самостоятельно, полностью реализовав свою фантазию. В квартире раздельный санузел , окна квартиры выходят во двор и на улицу. Квартира готова к продаже, по договору купли- продажи. Возможна ипотека, в том числе и семейная. Возможна помощь в оформлении ипотеки. Семейная ипотека возможна! Звоните, записывайтесь на просмотр. Будем Вам очень рады!
Цена
9 946 000 ₽

2-х комнатная квартира

Народная ул. м.Пролетарская


46 м2
Общая
29 м2
Жилая
6.9 м2
Кухня
г. Санкт-Петербург, ул. Народная, д. 83 Пpедлагается уютнaя 2-хкомнатная кваpтирa с сoвpемeнным peмoнтoм на комфортном 2-м этаже 5-ти этажного дома. Плoщадь общая: 46 кв.м. Комнаты -  16,2кв.м и 11,7 кв.м., кухня — 6,9м²,совмещенный санузел. Хороший ремонт- сделана шумоизоляция, стеклопакеты . Дом пaнeльногo типa, поcтpоен в 1963 гoду, c гaзocнабжениeм. Во дворе обустроена детская площадка, а также предусмотрена открытая парковка. Вся необходимая инфраструктура  для комфортной жизни - в пешей доступности. Остановка транспорта в 10 метрах от дома, до метро `Улица Дыбенко`- 10 на автобусе. Квартира продается с торгов.
Цена
6 528 000 ₽

Закажите консультацию специалиста

Оставьте заявку
Нажимая на кнопку «Отправить заявку», Вы даете согласие на обработку своих персональных данных.
×
продажа
Что вы хотите продать?
Сколько комнат?
Тип объекта?
В каком регионе?
В каком районе Санкт-Петербурга
В каком районе Ленинградской области?

Оставьте Ваш контакт и наши специалисты свяжутся с Вами в самые кротчайшие сроки.

+7
×
новостройка
Какие районы Санкт-Петербурга Вас интересуют?
С какой целью Вы планируете приобрести квартиру?
Сколько комнат должно быть в Вашей будущей квартире?
Какой вариант отделки Вам необходим?
Когда Вы хотите заехать?
В какой бюджет хотите уложиться?

Оставьте Ваш контакт и получите подборку квартир без риска столкнуться с мошенничеством и недостроем.

+7
×
сдать
Что вы хотите сдать?
Скольки комнатная квартира?
Какой тип коммерческой недвижимости вы хотите сдать?
В каком регионе?
В каком районе Санкт-Петербурга
В каком районе Ленинградской области?

Оставьте Ваш контакт и наши специалисты свяжутся с Вами в самые кротчайшие сроки.

+7

Продажа квартир и комнат на вторично рынке жилья.

Чтобы купить квартиру в СПб или найти подходящий вариант продажи квартиры в Петербурге на вторичном рынке жилья, требуется потратить много времени и усилий. Квартира или комната в центре Петербурга может быть существенно дороже, чем идентичная по площади в спальном районе. В первую очередь при покупке квартиры в Петербурге надо определиться с ценовой категорией, чтобы затем сосредоточиться на качестве предлагаемого жилья. Чем выше класс недвижимости, тем больше её стоимость. На сайте компании «Русский Фонд Недвижимости» вы найдете все виды вторичного жилья, от дешевых комнат и доступных квартир до элитных квартир в центре города.


Преимущества покупки квартиры на вторичном рынке:

Покупка квартиры или комнаты на вторичном рынке является самым распространенным видом сделок с недвижимостью. Очевидным преимуществом покупки квартиры на вторичном рынке по сравнению с первичным, является то, что эта недвижимость уже существует. Жилье можно посмотреть, оценить плюсы и минусы. Также, преимуществом этого сегмента является большое  разнообразие предложений: широкий выбор по типам домов, годам постройки, расположению. На вторичном рынке можно выбрать квартиру на любой вкус или соответственно финансовой возможности.


Преимущества сотрудничества с «Русским Фондом Недвижимости».

Позвоните нам и убедитесь, что купить квартиру в Петербурге можно  легко, доступно и комфортно! «Русский Фонд Недвижимости» имеет более двух десятков представительств в Санкт-Петербурге и Ленинградской области. Специалисты нашей компании обладают высокой квалификацией, подтверждённой соответствующими сертификатами, и уникальным опытом работы на рынке недвижимости.

  У нас работают только профессионалы,
  Есть  доступ к профессиональным базам данных по недвижимости
Мы проверяем всю документацию, связанную со сделкой купли-продажи

Мы оказываем следующие услуги при операциях с недвижимостью:

  Подбор вариантов и покупка квартиры или комнаты.
  Прямая продажа квартиры  или продажа с встречной покупкой
  Продажа и покупка квартир класса «бизнес», «элита» и «премиум»
  Полное сопровождение сделки:
  Экспертная оценка рыночной стоимости квартиры
  Проверка «чистоты» истории квартиры
  Помощь в оформлении документов
  Консультации по ипотеке и содействие в получение кредита
  Помощь в приватизации
  Расселение коммунальных квартир


Как правильно выбрать квартиру на вторичном рынке.

Рынок вторичной недвижимости часто таит в себе опасности. Купив квартиру, до сих пор можно столкнуться с ситуацией, что на приобретенной жилплощади окажутся приписанными несовершеннолетние дети или недееспособные граждане. Чтобы не оказаться жертвой мошенников, и избежать других проблем и неоправданных затрат времени, следует воспользоваться услугами профессионального риэлторского агентства, такого как, например, «Русский Фонд Недвижимости». Специалисты компании помогут подобрать подходящий вариант и будут сопровождать сделку на всех этапах.

Этот сайт использует файлы cookie для улучшения пользовательского опыта. Cookie - это небольшие текстовые файлы, которые сохраняются на вашем устройстве и помогают нам запоминать ваши предпочтения, анализировать посещаемость сайта и предоставлять более персонализированный контент. Использование файлов cookie позволяет нам сделать сайт удобнее для вас. Политика конфиденциальности
Принять Отказаться