Жилой дом

ЛО, Выборгский, Тарасово пос.   Посмотреть на карте

Номер объекта: 330947
Цена на м2: 88 785

Время работы Call Центра:

ПН-ПТ с 9-30 до 22-00

СБ-ВС с 10-00 до 22-00

Нажимая на кнопку «Позвонить мне», Вы даете согласие на обработку своих персональных данных.

Описание

Ленинградская обл., Выборгский р-н, Полянское сельское поселение, пос. Тарасово, Школьная ул.
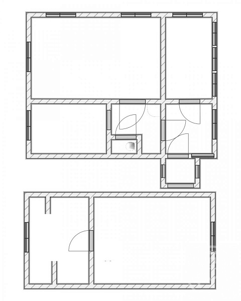
Вашему вниманию предлагается 2-х этажный жилой дом 1997 г. постройки 8.2х9 м. общей площадью 107 м2 в пос. Тарасово. Наружные стены – брус. Фундамент - бетонные блоки. Крыша – шифер.
На первом этаже прихожая (6 м2), общая комната (10 м2), кухня (12 м2), гостиная (25 м2), комната (12 м2), туалет и душевая кабина.
На втором этаже спальня (21,5 м2) и помещение общего назначения (10 м2).
В доме центральное паровое отопление, водопровод, канализация, горячая вода – 2 бойлера. Один для кухни, второй для душевой кабины. Газ – баллоны.
Есть возможность подключения к центральному газопроводу, проходит вдоль участка.
Помимо центрального отопления в доме есть дровяная печь с плитой.
Газовая плита,  холодильник,  стиральная машина и мебель остаются в доме.
На участке расположены: русская баня, дровяник, хозяйственная пристройка (мастерская), теплица, плодовые деревья и ягодные кустарники.
Пос. Тарасово расположен в 79 км от Санкт-Петербурга в экологически чистой зоне Карельского перешейка, на восточном берегу озера Подгорное на территории старинного парка, заложенного в XIX веке отцом личного доктора Николая II., Сергеем Петровичем Боткиным. Отличное место для проживания и активного отдыха. Рядом расположены загородная база «Олимпийские надежды», Пансионат «Дубки».
В поселке есть продуктовый магазин. До г. Санкт-Петербурга можно доехать на автобусе №827.
В доме никто не прописан, один собственник.

Расположение

Адрес
Тарасово пос.
Метро
Беговая
Район
Выборгский
Расстояние от СПб
77
Город
Тарасово
Регион
Ленинградская область

Площади, м2

Жилая площадь
68.5
Общая площадь
107
Площадь кухни
12
Площадь участка
13 сот.

Параметры

Комнат
4
Санузел
В доме
Состояние
Хорошее
Этажей
2
Ипотека
Нет
Отопление
Центральное
Электрификация
Есть
Канализация
Локальная канал.
Водоснабжение
Центр. водопровод
Стены
Брус
Крыша
Шифер
Подъездные пути
Асфальт
Размер дома
9х8,2
Фундамент
Ленточный
Разрешенное использование
ИЖС
Участок
Собственность

Узнайте больше об объекте

Получите консультацию специалиста

Нажимая на кнопку «Отправить заявку», Вы даете согласие на обработку своих персональных данных.

Объект на карте

Похожие объекты

Этот сайт использует файлы cookie для улучшения пользовательского опыта. Cookie - это небольшие текстовые файлы, которые сохраняются на вашем устройстве и помогают нам запоминать ваши предпочтения, анализировать посещаемость сайта и предоставлять более персонализированный контент. Использование файлов cookie позволяет нам сделать сайт удобнее для вас. Политика конфиденциальности
Принять Отказаться