Жилой дом

ЛО, Выборгский, Приветнинское пос.   Посмотреть на карте

Номер объекта: 342562
Цена на м2: 111 019

Время работы Call Центра:

ПН-ПТ с 9-30 до 22-00

СБ-ВС с 10-00 до 22-00

Нажимая на кнопку «Позвонить мне», Вы даете согласие на обработку своих персональных данных.

Описание

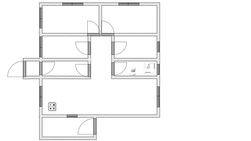
(168) В тихом уединенном месте в КП Лесной Форт рядом с пос. Приветнинское Выборгского р-она Ленинградской области предлагается новый зимний жилой дом площадью 108 кв.м. на земельном участке в 11,7
соток. Дом 2024 г.п., при строительстве которого использовались инновационные технологии, в результате чего получился высокотехнологичный и энергоэффективный дом. На 1 этаже дома расположена кухня - гостиная 40,5 кв.м., спальня 11 + 11 +7,7 кв. м, котельная и просторный совмещенный с/у. Дорогие отделочные материалы. Высота потолка 3 м. Закрытая терраса. Дом будет передан покупателю в предчистовой отделке. Фундамент - ж/б сваи. Стены - наружная отделка имитация бруса, утеплитель  изоспан 150 мм. Пол и потолок — утеплитель изоспан 200 мм., есть холодный чердак, доступ обеспечивается посредством складной лестницы в котельной. Крыша — фальцевая кровля. Электричество 10 кВт, вода — скважина, канализация — септик, отопление электрический котел (радиаторный тип отопления). Интернет — оптоволокно и исключительная возможность  жить на природе и работать удаленно. Подъезд - грунтовая хорошая дорога. Изумительное по красоте место! Хвойный лес вокруг Вашего дома. С одной стороны хорошо развитая инфраструктура и транспортная доступность: 15 мин до школы, д/сада и больницы, 30 мин до электрички, сетевые магазины и аптеки — 7 мин на автомобиле, магазины с продуктами первой необходимости — 5 мин пешком, рестораны, кафе, спортивный комплекс с бассейном — 10 минут на авто, 30 минут на автомобиле от КАД. С другой стороны непередаваемая красота и свежесть хвойного леса, грибы, ягоды, экотропа для любителей активного отдыха. Финский залив — 4 км. Администрация КП отвечает за все жилищно — коммунальные вопросы (дороги, охрана, вывоз мусора). Чистый воздух, тишина, уединение и демократичная стоимость — это фантастическое сочетание. Превосходный вариант для постоянного места проживания либо для загородного отдыха. Участок и дом в собственности. Чистая прозрачная сделка. 

Расположение

Адрес
Приветнинское пос.
Метро
Беговая
Район
Выборгский
Расстояние от СПб
65.38
Город
Приветнинское
Регион
Ленинградская область

Площади, м2

Жилая площадь
29.7
Общая площадь
108
Площадь кухни
40.5
Площадь участка
11.7 сот.

Параметры

Комнат
3
Санузел
В доме
Состояние
Хорошее
Этажей
1
Ипотека
Да
Отопление
Электрическое
Электрификация
Есть
Водоснабжение
Скважина
Стены
Каркас
Крыша
Металл
Подъездные пути
Асфальт
Разрешенное использование
Садоводство
Участок
Собственность

Узнайте больше об объекте

Получите консультацию специалиста

Нажимая на кнопку «Отправить заявку», Вы даете согласие на обработку своих персональных данных.

Объект на карте

Похожие объекты

Этот сайт использует файлы cookie для улучшения пользовательского опыта. Cookie - это небольшие текстовые файлы, которые сохраняются на вашем устройстве и помогают нам запоминать ваши предпочтения, анализировать посещаемость сайта и предоставлять более персонализированный контент. Использование файлов cookie позволяет нам сделать сайт удобнее для вас. Политика конфиденциальности
Принять Отказаться