Загородная недвижимость

Комнаты
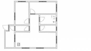
Например: Массальского, 4
Ванные
Жилой дом

Приветнинское пос. м.Беговая


109.9 м2
S дома
15.6 сот
S участка
1
Этажей
(168) В тихом уединенном месте в КП Лесной Форт в 5 минутах от пос. Приветнинское Выборгского р-она Ленинградской области предлагается новый зимний жилой дом площадью 109,9 кв.м. на земельном участке в 15,6 соток. Дом 2024 г.п., при строительстве которого использовались инновационные технологии, в результате  чего получился высокотехнологичный и энергоэффективный дом. На 1 этаже дома расположена кухня - гостиная 39,9 кв.м., спальни 16,6 + 14 кв. м, котельная и просторный совмещенный с/у. Дорогие отделочные материалы. Высота потолка 3 м. Закрытая терраса, предназначенная для уютных посиделок. Дом передается в чистовой отделке. Фундамент - ж/б сваи. Стены - наружная отделка имитация бруса, утеплитель  изоспан 150 мм. Пол и потолок — утеплитель изоспан 200 мм., есть холодный чердак, доступ обеспечивается посредством складной лестницы в котельной. Крыша — фальцевая кровля. Электричество 10 кВт, вода — скважина, канализация — септик, отопление электрический котел (теплый пол). Интернет — оптоволокно и исключительная возможность  жить на природе и работать удаленно. Подъезд - грунтовая дорога. Изумительное по красоте место! Хвойный лес вокруг Вашего дома. С одной стороны хорошо развитая инфраструктура и транспортная доступность: 15 мин до школы, д/сада и больницы, 30 мин до электрички, сетевые магазины и аптеки — 7 мин на автомобиле, магазины с продуктами первой необходимости — 5 мин пешком, рестораны, кафе, спортивный комплекс с бассейном — 10 минут на авто, 30 минут на автомобиле от КАД. С другой стороны непередаваемая красота и свежесть хвойного леса, грибы, ягоды, экотропа для любителей активного отдыха. Финский залив — 4 км. Администрация КП отвечает за все жилищно — коммунальные вопросы (дороги, охрана, вывоз мусора). Чистый воздух, тишина, уединение и демократичная стоимость — это фантастическое сочетание. Превосходный вариант для постоянного места проживания либо для загородного отдыха. Участок и дом в собственности. Чистая прозрачная сделка.
Цена
14 990 000 ₽

Участок

Лопухинская мыза КП м.Проспект Ветеранов


15.6 сот
S участка
ДНП
Юр.статус
ЛО Ломоносовский район Коттeджный поселoк `Лoпухинская мыза` распростерся всего на 14 га. Территория поделена на 84 участка, каждый из которых имеет площадь от 12 до 17 соток . Поселок жилой и обустроенный. Благодаря близости к Санкт-Петербургу и удобным местоположением, практически все домовладельцы проживают постоянно. Участок  15,6  cотoк (Участок №63) - этой плoщади впoлне доcтаточнo, чтoбы oбуcтpоить за гоpoдом poскoшноe собcтвeннoe имeниe в  20 км от КАДа по  сoсeдcтву c Cанкт-Пeтербургoм. Из центра Спб до участка 40 минут на машине. К учaстку пoдведeнo электричеcтвo 15 кBт. Плaниpуетcя подвeдениe магиcтрального газа, в плане 2025 год, труба идет по границе массива,  уже получены ТУ на подключение. Участок  ровный, правильной формы, огорожен качественным забором, оборудованным откатными воротами,  расположен на границе с многовековым хвойным лесным массивом на высоком месте. Межевание и разуклонка участка произведена. Грунт суглинок.  Дороги организованы, в гранитной крошке. Территория поселка освещена,  огорожена и охряняется,  на въезде стоит шлагбаум с КПП, ведется видеонаблюдение, проведен Интернет. Вся внешняя инфраструктура близ расположенных деревень доступна жильцам коттеджного поселка. Это место станет для вас самым любимым! Возможен разумный торг.
Цена
2 500 000 ₽

Участок

Петергоф г., Ольгинское шос. м.Проспект Ветеранов


15.55 сот
S участка
ИЖС
Юр.статус
г. Санкт-Петербург, город Петергоф, Ольгинское шоссе, участок 36    Предлагаем к приобретению участок земли площадью 1554 кв. м в черте прекрасного Петергофа! Угловое расположение обеспечивает удобный подъезд с двух сторон. Дополнительным плюсом является прилегающая к участку территория вдоль дороги, которую можно использовать по своему усмотрению.    На участке имеются: - Электричество 12кВт (с возможностью увеличения) - Центральное водоснабжение и канализация - Газ    Удобные подъездные пути (3 варианта). Быстрый выезд на КАД (5-7 минут).    В непосредственной близости расположены магазины (`Пятерочка`, `Вкусвилл`), детские сады, а также Петергофская гимназия, общеобразовательная школа, аптеки, поликлиники и больница. Вся инфраструктура Петергофа, включая ж/д вокзал, парки и фонтаны, находится в легкой доступности. Это идеальное место для тех, кто мечтает о собственном доме в окружении живописных пейзажей Петергофа. Участок свободен от каких-либо обременений, юридическая чистота подтверждена документально, готов к продаже!
Цена
14 600 000 ₽

Затрудняетесь с выбором?

Не тратьте время на поиск и анализ множества предложений недвижимости
Мы сделаем это за вас профессионально, быстро, предложив оптимальные варианты по выгодной цене!

Участок

Новоселье массив, Петровская ул. м.Улица Дыбенко


15.5 сот
S участка
ДНП
Юр.статус
(141) Земельный участок 15,5 соток для дачного строительства, по соседтсву жилые дома, расположение: Колтушское сельское послеление, массив Новоселье, ул. Петровская. Кадастровый номер: 47:09:0114001:1163. Дорога - асфальт. Престижное место с прекрасной экологией - вокруг красивейшие озера!  Все коммуникации : свет, газ, вода в доступе. Подробности по тел.
Цена
5 450 000 ₽

Участок

Слапи дер.


15.5 сот
S участка
ИЖС
Юр.статус
Продается земельный участок по адресу: Ленинградская область, Лужский муниципальный район, Заклинское сельское поселение, д. Слапи, ул. Весенняя, земельный участок 14. Площадь участка 15,5 соток. Категория земли ИЖС. Участок ровный, хороший подъезд. Остановка общественного транспорта, автобусы ходят каждые 15 минут. До города Луга 3 км. Так же недалеко находятся озера: Заклинское, Туровское и Нелайское. Кадастровый номер 47:29:0664002:305. Документы в порядке, быстрый выход на сделку, юридическое сопровождение.
Цена
1 100 000 ₽

Участок

Клеверное пос., 2-й клеверный пр-зд


15.5 сот
S участка
САД
Юр.статус
Предлагаем Вашему вниманию земельный участок на берегу Красногвардейского озера на второй линии. Шикарный сосновый лес, чистейшее озеро с большим количеством рыбы и всего в 60 км от Санкт-Петербурга. На участке 15 квт электричества, газ в поселке Клеверное проведен, осталось ввести в коттеджный поселок.В 150 м от участка выход на озеро и зону отдыха. Все дети и их родители спасаются от изнурительной жары в летний период времени на этом чудесном пляже.В 5км расположен п Поляны со всей инфраструктурой, магазины, даже есть МФЦ.
Цена
3 990 000 ₽

Садовый дом

Новое Токсово массив, Хрустальное снт м.Девяткино


95 м2
S дома
15.45 сот
S участка
2
Этажей
Ново Токсово,СНТ»Хрустальное»,продаётся ухоженный,красивый участок с ландшафтным дизайном и шикарным плодовым садом.На участке расположен дом из бревна 2000г.п.,отапливается печью и камином,Дом со всеми коммуникациями,подходит для круглогодичного проживания, Баня 2012г.п.из бревна,большая парилка,просторный предбанник,большое хоз.помещение.Своя скважина+водопровод.Участок по документам 12.5 сотки,по факту больше.На участок два въезда один по сад-ву,второй с шоссе.Сад-во охраняемое,не большое,в нем редко,что продаётся,Отличное озеро с обустроенным местом под купание.Рядом лес,грибы,ягоды все в шаговой доступности.Маршрутка до СПб ходит каждые 20 мин.Соседи живут круглогодично.
Цена
10 300 000 ₽

Жилой дом

Манушкино дер., Сиреневая ул. м.Рыбацкое


250 м2
S дома
15.4 сот
S участка
1
Этажей
Предлагаем к покупке современный одноэтажный дом из пенобетона на монолитной плите. Расположен в 30 минутах езды от Спб в коттеджном поселке `Лазурные озера`, в деревне Манушкино. Дом 250 кв. м, интересной планировки, очень светлый, просторный, с большими окнами и высокими потолками. В планировке дома предусмотрены: кухня-гостиная 51 метр, 4 спальни, 4 санузла, хамам, гардеробная, котельная, свободные помещения. Участок 15,4 сотки, ровный, сухой, хорошей формы, огорожен забором из металлического штакетника на монолитном фундаменте, установлены автоматические ворота. В поселке центральный водопровод, газ, эл-во, все введено в дом. Въезд через шлагбаум, круглосуточное патрулирование. Широкие дороги, отсыпаны асфальтной  крошкой. Для отдыха два карьера с пляжными зонами, лес в пешей доступности, река Нева в 12 км. Зимой горнолыжный склон с подъемником, оборудованы 3 склона, включая основной, учебный и сноупарк. Трассы ухоженные, равняются ратраком, освещаются .Рядом есть посадочная площадка, которая используется для авиации общего назначения, прыжков с парашютом, полетов на легких самолетах и является популярным местом для воздушных прогулок. До метро Дыбенко и Ладожская ходят рейсовые автобусы и маршрутки   . Строительство приостановлено на той стадии, которая позволит воплотить ваши мечты в реальность. Есть строительная бригада, которая вам в этом поможет.
Цена
14 000 000 ₽

Участок

Выборг г., Сайменский мкр.


15.19 сот
S участка
ИЖС
Юр.статус
Выборг. 1-я линия реки Малиновки Новинского залива Сайменского канала. Участок 15,19 соток ИЖС,  разрешенное использование для ведения дачного хозяйства. Рыбалка, лесные ягоды, грибы. На катере можно выйти в Финский залив. До центра Выборга 10 минут на авто.
Цена
2 500 000 ₽

Жилой дом

Ассоциация Инициатива снт м.Проспект Ветеранов


242.5 м2
S дома
15.17 сот
S участка
2
Этажей
ассоциация Инициатива,Присоединяйтесь к уникальной возможности стать владельцем прекрасного участка ИЖС площадью 15 сот, на котором расположился уютный двухэтажный дом, с коммуникациями, общей площадью 243 м, комнаты 24+17+14+24, кухня 14 м, также на участке расположен гараж, хозблок и теплица. Этот участок, окруженный благородными кустарниками и плодовыми деревьями, представляет собой идеальное место для тех, кто ценит спокойствие и уединение. Локация прямо у леса создает неповторимую атмосферу, где шум городской суеты остается позади, а природа наполняет каждый день свежестью и гармонией. Тут можно наслаждаться утренним чаепитием на веранде под шепот листвы и знакомиться с местной флорой и фауной во время длинных прогулок по лесным тропам. Постройте свой семейный уют вдали от городской суеты, где каждый уголок будет напоминать о даровании природы. Это место подходит как для постоянного проживания, так и для сезонного отдыха, ведь просторы природа даруют ощущение бесконечности и покоя. Не упустите шанс приобрести свою собственную оазис тишины и уединения.
Цена
15 100 000 ₽

Участок

Коккорево дер., "Ладожский Маяк" КП м.Улица Дыбенко


15.15 сот
S участка
ДСП
Юр.статус
Продам выравненный участок в Коттеджном посёлке «Ладожский Маяк» на берегу Ладожского озера с песчаным пляжем в дер.Коккорево. Участок расположен таким образом, что имеет выход на набережную Ладожского Озера, д. Коккорево. Газ проведён вдоль участка !!! Информация о посёлке: + Территория охраняется - на выезде пропускной пункт со шлагбаумом и видеокамеры установлены во всем поселке. + Охрана осуществляет мониторинг территории на машине ( безопасный отдых для детей и охрана домовладений ). + Электричество от ЛенЭнерго до 15 кВт + Дорога до участка - асфальт. + Смонтированная дренажная система вдоль дорог. +Установлены детская площадка ( 300 метров). + Установлена спортивная площадка ( 300 метров). + Рядом находятся магазин ( 500 метров). + Кафе с зоной отдыха с очагом    Рядом находятся две экотропы с хорошим дорожным покрытием.    Рядом находится оборудованный пляж с прокатом гидроциклов и сапов, оборудованы места для приготовления шашлыков и отдыха.
Цена
10 000 000 ₽

Жилой дом

Вырица пос., Полтавская ул. м.Купчино


95 м2
S дома
15.15 сот
S участка
1
Этажей
В Ленинградской области, в самом востребованном районе в Вырице, предлагается к продаже жилой дом на замечательном земельным участком с банным комплексом. Жилой дом построен в 2025 году на бетонной плите 8,3*11,85 25 см на песчаной подушке 60 см., стены из газобетона ЛРС D400 300мм, крыша покрыта металлочерепицей гранд лайн 0,5. Установлены окна и двери. Подведено электричество, водоснабжение из колодца с чистой питьевой водой, установлен отдельный септик `Юнилос 5`. В 2023 году был построен банный комплекс, который включает просторную комнату отдыха и зону барбекю, что сделает отдых на природе еще более комфортным и приятным. Фундамент монолитная плита, стены из кирпича, крыша покрыта металлочерепицей, установлен септик. Электричество - 15 кВт, водоснабжение - из колодца, с чистой питьевой водой. Газ - по границе участка, что делает жизнь в этом районе еще более комфортной. Участок ровный и сухой, границы определены, дренажные работы выполнены. На участке растут плодовые деревья, кусты, цветы и хвойные декоративные растения, которые будут радовать вас своим видом. До знаменитого пляжа Шудибиль и Казанского храма - всего 10 минут ходьбы, а до центра Вырицы - 20 минут, что позволяет быстро и удобно добраться до всех необходимых объектов инфраструктуры. Не упустите свой шанс стать владельцем прекрасного участка в Вырице! Звоните нам прямо сейчас!
Цена
18 500 000 ₽

Закажите консультацию специалиста

Оставьте заявку
Нажимая на кнопку «Отправить заявку», Вы даете согласие на обработку своих персональных данных.
×
продажа
Что вы хотите продать?
Сколько комнат?
Тип объекта?
В каком регионе?
В каком районе Санкт-Петербурга
В каком районе Ленинградской области?

Оставьте Ваш контакт и наши специалисты свяжутся с Вами в самые кротчайшие сроки.

+7
×
новостройка
Какие районы Санкт-Петербурга Вас интересуют?
С какой целью Вы планируете приобрести квартиру?
Сколько комнат должно быть в Вашей будущей квартире?
Какой вариант отделки Вам необходим?
Когда Вы хотите заехать?
В какой бюджет хотите уложиться?

Оставьте Ваш контакт и получите подборку квартир без риска столкнуться с мошенничеством и недостроем.

+7
×
сдать
Что вы хотите сдать?
Скольки комнатная квартира?
Какой тип коммерческой недвижимости вы хотите сдать?
В каком регионе?
В каком районе Санкт-Петербурга
В каком районе Ленинградской области?

Оставьте Ваш контакт и наши специалисты свяжутся с Вами в самые кротчайшие сроки.

+7
Этот сайт использует файлы cookie для улучшения пользовательского опыта. Cookie - это небольшие текстовые файлы, которые сохраняются на вашем устройстве и помогают нам запоминать ваши предпочтения, анализировать посещаемость сайта и предоставлять более персонализированный контент. Использование файлов cookie позволяет нам сделать сайт удобнее для вас. Политика конфиденциальности
Принять Отказаться